1130 Waverley Ln, Cullman, AL 35055
Local realty services provided by:CENTURY 21 Clement Realty, Inc.
1130 Waverley Ln,Cullman, AL 35055
$309,900
- 5 Beds
- 3 Baths
- 2,511 sq. ft.
- Single family
- Pending
Listed by: michelle wisner
Office: dhi realty of alabama
MLS#:525166
Source:AL_SMLSA
Price summary
- Price:$309,900
- Price per sq. ft.:$123.42
About this home
CULLMAN CITY SCHOOL DISTRICT
Ask about our interest rates, paid closing cost and easily added options.
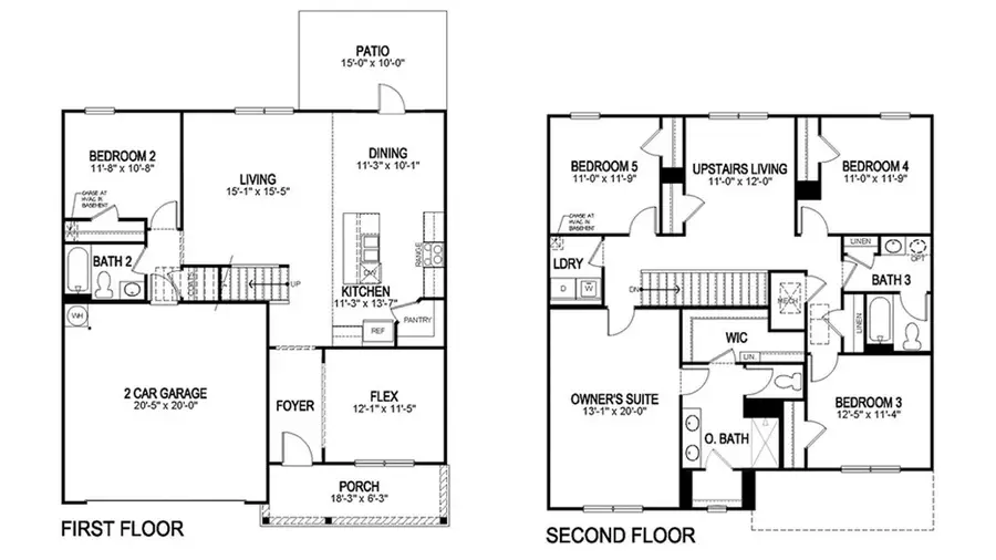
The Hayden is a spacious two-story plan with 5 bedrooms and 3 bathrooms, covering 2,511 square feet. On the main level, you'll find a versatile flex room near the foyer, perfect for a formal dining area or a convenient home office. The gourmet kitchen boasts an expansive island for added seating, stunning granite countertops, stainless steel appliances, and a generous pantry. It seamlessly connects to the dining space and a roomy living area. Completing the main level is a bedroom with a full bathroom, providing flexibility and convenience for guests or family members. Upstairs, the Primary Bedroom awaits, offering a lavish bath with a shower, private bathroom, double vanities with marble counters, and a spacious walk-in closet. Additionally, the second level comprises three more bedrooms, a full bathroom, a walk-in laundry room, and a loft-style
Contact an agent
Home facts
- Year built:2025
- Listing ID #:525166
- Added:83 day(s) ago
- Updated:January 22, 2026 at 08:36 AM
Rooms and interior
- Bedrooms:5
- Total bathrooms:3
- Full bathrooms:3
- Living area:2,511 sq. ft.
Structure and exterior
- Year built:2025
- Building area:2,511 sq. ft.
- Lot area:0.28 Acres
Schools
- High school:Cullman
- Middle school:Cullman Middle
- Elementary school:Cullman
Utilities
- Sewer:Public Sewer
Finances and disclosures
- Price:$309,900
- Price per sq. ft.:$123.42
- Tax amount:$1,200
New listings near 1130 Waverley Ln
- New
$159,000Active3 beds 2 baths840 sq. ft.60 Co Rd 1635, Cullman, AL 35058
MLS# 526725Listed by: WEICHERT REALTORS CULLMAN - New
$210,000Active3 beds 2 baths1,402 sq. ft.32 Orion Dr, Cullman, AL 35055
MLS# 526722Listed by: LENNAR HOMES - New
$227,000Active3 beds 2 baths1,420 sq. ft.1714 Amber Ave, Cullman, AL 35055
MLS# 526716Listed by: LENNAR HOMES COASTAL REALTY LLC - New
$253,800Active4 beds 3 baths1,955 sq. ft.1718 Amber Ave, Cullman, AL 35055
MLS# 526717Listed by: LENNAR HOMES COASTAL REALTY LLC - New
$699,000Active1 beds 3 baths3,729 sq. ft.100 Waterford Pl, Cullman, AL 35056
MLS# 526719Listed by: ALABAMA REALTY GROUP - New
$217,500Active3 beds 2 baths1,355 sq. ft.1716 Amber Ave, Cullman, AL 35055
MLS# 526715Listed by: LENNAR HOMES COASTAL REALTY LLC - New
$212,300Active3 beds 2 baths1,209 sq. ft.1710 Amber Ave, Cullman, AL 35055
MLS# 526703Listed by: LENNAR HOMES COASTAL REALTY LLC - New
$239,900Active3 beds 2 baths1,386 sq. ft.117 White Oak Loop, Cullman, AL 35057
MLS# 526705Listed by: WEICHERT REALTORS CULLMAN - New
$217,500Active3 beds 2 baths1,355 sq. ft.1712 Amber Ave, Cullman, AL 35055
MLS# 526706Listed by: LENNAR HOMES COASTAL REALTY LLC - New
$409,900Active4 beds 3 baths2,725 sq. ft.106 Co Rd 404, Cullman, AL 35057
MLS# 526694Listed by: MARMAC - CULLMAN