Lot 7 NW D Street, Bentonville, AR 72712
Local realty services provided by:CENTURY 21 Action Realty
Listed by: jan holland
Office: coldwell banker harris mchaney & faucette-bentonvi
MLS#:1332305
Source:AR_NWAR
Price summary
- Price:$495,000
About this home
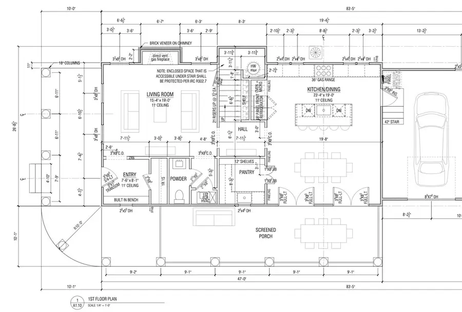
Presenting the Ellie Grace at Park Springs. A to-be-built luxury home on one of the last remaining lots adjacent to Park Springs Park. This listing includes the lot and full architectural plans; construction contract with Mark Russell Homes to be executed separately, with completion anticipated late 2026. The Ellie Grace is a 2,300 SF residence with 3 bedrooms, 2.5 baths, and an attached three-car garage—designed specifically for this site and neighborhood. Thoughtful customization is available for qualified buyers. The design draws on classic proportions: 11-foot ceilings on the main level, 10-foot ceilings upstairs, a columned wraparound porch, and a south-facing screened porch off the kitchen for three-season living. Interior finishes include aluminum-clad wood windows, SubZero and Wolf appliances, custom millwork throughout, and wide plank white oak flooring. Morning coffee on the porch. Evening walks to the Square. This is the lot—and the home—you've been waiting for.
Contact an agent
Home facts
- Listing ID #:1332305
- Added:92 day(s) ago
- Updated:May 01, 2026 at 02:18 PM
Structure and exterior
- Lot area:0.17 Acres
- Lot Features:City Lot, Cleared, Level
Utilities
- Water:Public
- Sewer:Public Sewer
Finances and disclosures
- Price:$495,000
- Tax amount:$650
New listings near Lot 7 NW D Street
- Open Sat, 11am to 1pmNew
$635,000Active4 beds 3 baths2,549 sq. ft.1309 Barberry Lane, Bentonville, AR 72712
MLS# 1344585Listed by: KELLER WILLIAMS MARKET PRO REALTY BRANCH OFFICE - New
$989,500Active3 beds 3 baths2,716 sq. ft.13246 Loganberry Lane, Bentonville, AR 72712
MLS# 1344523Listed by: SUDAR GROUP - New
$1,200,000Active4 beds 4 baths2,395 sq. ft.404 H Street, Bentonville, AR 72712
MLS# 1344692Listed by: NO PLACE LIKE HOME REALTY CO - Open Sun, 2 to 4pmNew
$719,000Active4 beds 4 baths3,558 sq. ft.4203 NE Kenton Avenue, Bentonville, AR 72712
MLS# 1344754Listed by: SMITH AND ASSOCIATES REAL ESTATE SERVICES - New
$468,000Active4 beds 3 baths2,100 sq. ft.1401 Sessile Oak Way, Bentonville, AR 72713
MLS# 1343470Listed by: WEICHERT REALTORS - THE GRIFFIN COMPANY SPRINGDALE - Open Sat, 3 to 5pmNew
$825,000Active4 beds 3 baths3,275 sq. ft.4701 SW Newcastle Road, Bentonville, AR 72713
MLS# 1343491Listed by: KELLER WILLIAMS MARKET PRO REALTY - New
$272,700Active3 beds 3 baths1,430 sq. ft.6612 SW Memphis Avenue, Bentonville, AR 72713
MLS# 1344797Listed by: RAUSCH COLEMAN REALTY GROUP, LLC - New
$267,700Active3 beds 3 baths1,430 sq. ft.6614 SW Memphis Avenue, Bentonville, AR 72713
MLS# 1344799Listed by: RAUSCH COLEMAN REALTY GROUP, LLC - New
$350,000Active3 beds 1 baths1,371 sq. ft.2301 Beth Lane, Bentonville, AR 72712
MLS# 1344802Listed by: LINDSEY & ASSOC INC BRANCH - New
$274,400Active3 beds 3 baths1,599 sq. ft.6807 SW Devotion Avenue, Bentonville, AR 72713
MLS# 1344803Listed by: RAUSCH COLEMAN REALTY GROUP, LLC