405 & 407 E Center Street, Jacksonville, AR 72076
Local realty services provided by:CENTURY 21 H.S.V. Realty
405 & 407 E Center Street,Jacksonville, AR 72076
$435,000
- - Beds
- - Baths
- 3,334 sq. ft.
- Multi-family
- Active
Listed by: miekka maile
Office: fathom realty central
MLS#:26014347
Source:AR_CARMLS
Price summary
- Price:$435,000
- Price per sq. ft.:$130.47
About this home
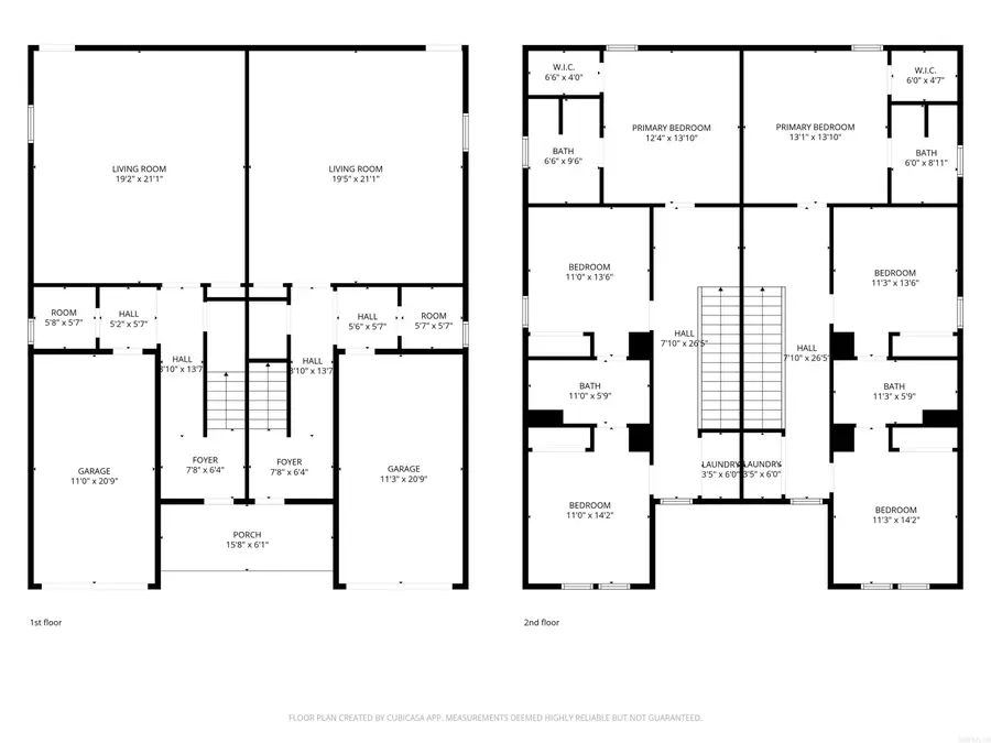
Investment Powerhouse right down the road from Little Rock Air Force Base and a 15 min drive from downtown Little Rock! ALL BRICK/stone NEW CONSTRUCTION DUPLEXES in the heart of Jacksonville! Each unit is 3bed/2 1/2 bath! One car garage opens into the downstairs spacious living area with a half bath for convenience. Upstairs contains primary bedroom at the back with its own bathroom and walk-in closet. The two additional bedrooms have a Jack-and-Jill bathroom between them. Hall laundry makes for the ultimate in convenience! Luxury vinyl throughout and beautiful finishes make this renter-ready! ESTIMATED COMPLETION May 2026. These would be great also for an owner-occupant! SEE AGENT REMARKS!
Contact an agent
Home facts
- Year built:2026
- Listing ID #:26014347
- Added:10 day(s) ago
- Updated:April 22, 2026 at 02:23 PM
Rooms and interior
- Flooring:Luxury Vinyl
- Dining Description:Breakfast Bar
- Living area:3,334 sq. ft.
Heating and cooling
- Cooling:Central Cool-Electric
- Heating:Central Heat-Electric
Structure and exterior
- Roof:Architectural Shingle
- Year built:2026
- Building area:3,334 sq. ft.
- Lot area:0.15 Acres
- Lot Features:Cleared, Level
- Architectural Style:Traditional
- Construction Materials:Brick, Stone
- Exterior Features:Covered, Guttering, Porch
- Foundation Description:Slab
- Levels:2 Stories
Schools
- High school:Jacksonville
- Middle school:Jacksonville
- Elementary school:Jacksonville
Utilities
- Water:Hot Water Heater-Electric, Water-Public
- Sewer:Sewer-Public
Finances and disclosures
- Price:$435,000
- Price per sq. ft.:$130.47
- Tax amount:$14 (2025)
Features and amenities
- Laundry features:Dryer Connection-Electric, Washer Connection
- Amenities:Closet - Walk In, Smoke Detector, Window Treatments
Parking
- Parking description:Garage, One Car
New listings near 405 & 407 E Center Street
- New
$110,000Active3 beds 1 baths1,026 sq. ft.116 North Avenue, Jacksonville, AR 72076
MLS# 26015982Listed by: SIMPLI HOM - New
$132,000Active8.16 AcresLouise Street, Jacksonville, AR 72076
MLS# 26015952Listed by: MICHELE PHILLIPS & CO. REALTORS - New
$135,000Active3 beds 2 baths1,500 sq. ft.215-217 Willow Street, Jacksonville, AR 72076
MLS# 26015924Listed by: RE/MAX ENCORE - New
$569,400Active4 beds 3 baths2,920 sq. ft.1015 Black Bass Court, Jacksonville, AR 72076
MLS# 26015866Listed by: MICHELE PHILLIPS & CO. REALTORS - New
$119,900Active3 beds 2 baths1,216 sq. ft.1404 Stamps Street, Jacksonville, AR 72076
MLS# 26015808Listed by: SIGNATURE HOMES REAL ESTATE - New
$125,000Active2 beds 1 baths747 sq. ft.1417 S Bailey St, Jacksonville, AR 72076
MLS# 26015719Listed by: PORCHLIGHT REALTY - New
$129,900Active3 beds 1 baths1,152 sq. ft.104 Stevenson St, Jacksonville, AR 72076
MLS# 26015410Listed by: HOMEWARD REALTY - New
$199,900Active3 beds 2 baths1,411 sq. ft.601 Harpole Street, Jacksonville, AR 72076
MLS# 26015413Listed by: CAPITAL REAL ESTATE ADVISORS - New
$855,000Active5 beds 4 baths3,843 sq. ft.1609 Hunters Chase Rd, Jacksonville, AR 72076
MLS# 26015243Listed by: BACK PORCH REALTY - New
$215,000Active3 beds 2 baths1,454 sq. ft.235 Briarpatch Ln, Jacksonville, AR 72076
MLS# 26015230Listed by: COLLIER & ASSOCIATES