101 N Dogwood Street, Siloam Springs, AR 72761
Local realty services provided by:CENTURY 21 Action Realty
101 N Dogwood Street,Siloam Springs, AR 72761
$599,000
- 4 Beds
- 4 Baths
- 3,314 sq. ft.
- Single family
- Pending
Listed by: ryan blackstone
Office: blackstone & company
MLS#:1332518
Source:AR_NWAR
Price summary
- Price:$599,000
- Price per sq. ft.:$180.75
About this home
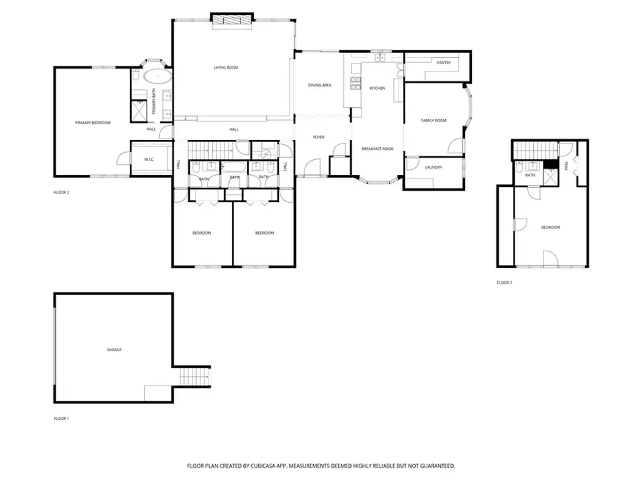
Situated on a premium lot with exceptional privacy, 101 North Dogwood offers a beautifully renovated home perfect for entertaining. Recent updates include new wood floors, quartz countertops, modern appliances, updated hardware, plumbing, and lighting packages. The thoughtful layout features a custom pantry with outlets and shelving, formal and informal dining areas, living room, and den. The main level includes two bedrooms sharing a Jack and Jill bathroom, while upstairs offers a fourth bedroom with closet, private balcony, and full bath. The secluded primary bedroom is exceptionally spacious with windows on multiple sides and a huge walk-in closet. Additional highlights include ceiling fans throughout, generous laundry room, and a brand new roof. With 3.5 bathrooms total, this home combines modern comfort with flexible living spaces, and all within walking distance of John Brown University and Downtown Siloam Springs.
Contact an agent
Home facts
- Year built:1979
- Listing ID #:1332518
- Added:213 day(s) ago
- Updated:April 25, 2026 at 07:46 AM
Rooms and interior
- Bedrooms:4
- Total bathrooms:4
- Full bathrooms:3
- Half bathrooms:1
- Flooring:Carpet, Tile, Wood
- Kitchen Description:Dishwasher, Gas Oven, Gas Water Heater, Microwave, Pantry
- Basement:Yes
- Basement Description:Crawl Space
- Living area:3,314 sq. ft.
Heating and cooling
- Cooling:Central Air, Electric
- Heating:Central, Gas
- Central air:Yes
Structure and exterior
- Roof:Architectural, Shingle
- Year built:1979
- Building area:3,314 sq. ft.
- Lot area:1.15 Acres
- Lot Features:City Lot, Near Park
- Architectural Style:European
- Construction Materials:Cedar, Rock
- Exterior Features:Deck
- Foundation Description:Crawlspace
- Levels:3 Story
Utilities
- Water:Public, Water Available
Finances and disclosures
- Price:$599,000
- Price per sq. ft.:$180.75
- Tax amount:$3,214
Features and amenities
- Appliances:Dishwasher, Gas Cooktop, Gas Oven, Gas Water Heater, Microwave
- Laundry features:Dryer Hookup, Washer Hookup
- Amenities:Ceiling Fans, Double Pane Windows, Pantry, Programmable Thermostat, Quartz Counters, Smoke Detectors, Walk-In Closets, Wood Frames
Parking
- Parking description:Attached, Concrete Driveway, Garage, Garage Door Opener
- Garage:Yes
New listings near 101 N Dogwood Street
- New
$240,000Active3 beds 2 baths1,934 sq. ft.407 S Britt Street, Siloam Springs, AR 72761
MLS# 1344209Listed by: KELLER WILLIAMS MARKET PRO REALTY - SILOAM SPRINGS - New
$220,000Active3 beds 2 baths1,285 sq. ft.15514 Airport Road, Siloam Springs, AR 72761
MLS# 1344193Listed by: CHUCK FAWCETT REALTY, INC. - New
$264,900Active3 beds 3 baths1,642 sq. ft.320 Country Club Road, Siloam Springs, AR 72761
MLS# 1343270Listed by: CRYE-LEIKE REALTORS, SPRINGDALE - Open Sat, 11am to 2pmNew
$379,000Active4 beds 3 baths3,174 sq. ft.510 N Mount Olive Street, Siloam Springs, AR 72761
MLS# 1343773Listed by: EXIT REALTY HARPER CARLTON GROUP - Open Sun, 2 to 4pmNew
$250,000Active3 beds 2 baths1,420 sq. ft.3905 E Wax Wing Drive, Siloam Springs, AR 72761
MLS# 1343831Listed by: KELLER WILLIAMS MARKET PRO REALTY - ROGERS BRANCH
$647,000Pending3 beds 5 baths2,720 sq. ft.22849 Lawlis Road, Siloam Springs, AR 72761
MLS# 1342983Listed by: COLDWELL BANKER HARRIS MCHANEY & FAUCETTE -FAYETTE- Open Sat, 9am to 5pmNew
$325,000Active4 beds 2 baths1,844 sq. ft.468 Sunset Lane, Siloam Springs, AR 72761
MLS# 1343248Listed by: ENCOMPASS REAL ESTATE - New
$375,000Active3 beds 2 baths1,926 sq. ft.2204 Lincoln Street, Siloam Springs, AR 72761
MLS# 1343940Listed by: REALTY MART - New
$318,000Active3 beds 3 baths1,771 sq. ft.613 W Cattleman Court, Siloam Springs, AR 72761
MLS# 1343217Listed by: COLDWELL BANKER HARRIS MCHANEY & FAUCETTE -FAYETTE - New
$650,000Active3 beds 2 baths2,356 sq. ft.20864 Ar-16, Siloam Springs, AR 72761
MLS# 1343552Listed by: RE/MAX ASSOCIATES, LLC