209 N Dahlia Drive, Anaheim, CA 92801

Local realty services provided by:CENTURY 21 Village Realty
209 N Dahlia Drive,Anaheim, CA 92801
$875,000
  • 3 Beds
  • 1 Baths
  • 998 sq. ft.
  • Single family
  • Active
Listed by: kacey taormina, aspen labrador
Office: compass
MLS#:NP26012991
Source:CRMLS

Price summary

  • Price:$875,000
  • Price per sq. ft.:$876.75

About this home

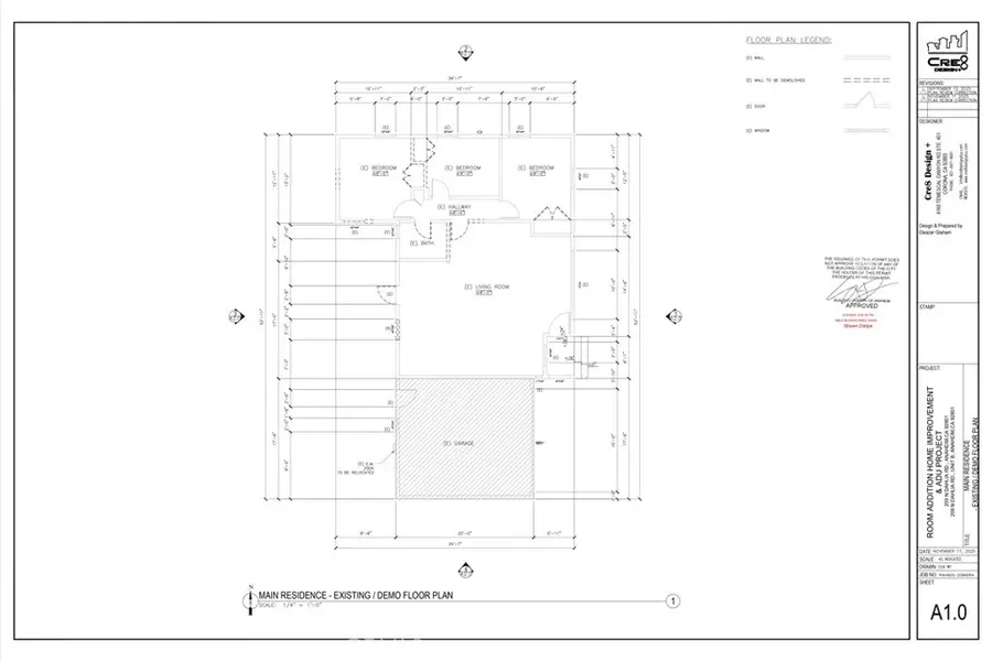
209 N Dahlia Dr offers a rare opportunity to step into a thoughtfully planned project where approximately seven months of design, engineering, and permitting have already been completed by the seller. Approved plans and active permits are in place to transform the main residence into a 3 bedroom and 2 bathroom home with a dedicated laundry room. The home has been taken down to framing, creating a clean slate for the next phase of construction. Underground sewer, water, and gas work has been completed, inspected and signed off by the city at the rough stage. The plans also include a detached ADU, approximately 795 sq ft, designed as a 2 bedroom, 1 bathroom unit. The ADU plans are fully approved by the City of Anaheim and the foundation is prepped and ready for concrete pour. This property allows a buyer to take over at a stage where the vision is approved, the groundwork is underway, and the remaining construction can be completed to their own preferences and

Contact an agent

contact an agent

Yes, I would like more information. Please use and/or share my information with an independent agent affiliated with the CENTURY 21®  brand to contact me about my real estate needs. By clicking Send message, I request to be contacted by phone or text message and consent to being contacted by automated means. I understand that my consent to receive calls or texts is not a condition of purchasing any property, goods, or services. Alternatively, I understand that I can access real estate services by email or I can contact the agent myself.

If an independent agent affiliated with the CENTURY 21®  brand is not available in the area where I need assistance, I agree to be contacted by a real estate agent affiliated with another brand owned or licensed by Anywhere Real Estate (BHGRE® , Coldwell Banker® , Corcoran® , ERA® , Sotheby's International Realty® ).
 I acknowledge that I have read and agree to theTerms of useandPrivacy notice

Home facts

  • Year built:1953
  • Listing ID #:NP26012991
  • Added:1 day(s) ago
  • Updated:January 25, 2026 at 11:31 AM

Rooms and interior

  • Bedrooms:3
  • Total bathrooms:1
  • Full bathrooms:1
  • Living area:998 sq. ft.

Structure and exterior

  • Year built:1953
  • Building area:998 sq. ft.
  • Lot area:0.17 Acres

Utilities

  • Water:Public
  • Sewer:Public Sewer

Finances and disclosures

  • Price:$875,000
  • Price per sq. ft.:$876.75
The information being provided by California Regional MLS (Southern California) is for the consumer's personal, non-commercial use and may not be used for any purpose other than to identify prospective properties consumer may be interested in purchasing. Any information relating to real estate for sale referenced on this web site comes from the Internet Data Exchange (IDX) program of the California Regional MLS (Southern California). CENTURY 21 Village Realty is not a Multiple Listing Service (MLS), nor does it offer MLS access. This website is a service of CENTURY 21 Village Realty, a broker participant of California Regional MLS (Southern California). This web site may reference real estate listing(s) held by a brokerage firm other than the broker and/or agent who owns this web site. The accuracy of all information, regardless of source, including but not limited to open house information, square footages and lot sizes, is deemed reliable but not guaranteed and should be personally verified through personal inspection by and/or with the appropriate professionals. The data contained herein is copyrighted by California Regional MLS (Southern California) and is protected by all applicable copyright laws. Any unauthorized dissemination of this information is in violation of copyright laws and is strictly prohibited. Copyright 2021 California Regional MLS (Southern California). All rights reserved.