503 N Elm Drive, Beverly Hills, CA 90210
Local realty services provided by:CENTURY 21 Wildwood Properties, Inc.
503 N Elm Drive,Beverly Hills, CA 90210
$7,500,000
- 0.26 Acres
- Lots / Land
- Active
Listed by: matthew raanan
Office: matthew raanan
MLS#:CL25599731
Source:CA_BRIDGEMLS
Price summary
- Price:$7,500,000
About this home
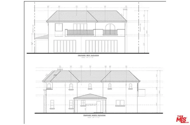
A rare Mediterranean estate opportunity awaits in the prestigious Beverly Hills Flats. Situated on one of the most desirable tree-lined streets, this exceptional parcel is being offered with approved plans and permits, allowing for the immediate construction of a timeless 9,506sqft residence. The proposed design showcases the elegance of Mediterranean architecture, blending classic sophistication with modern amenities. The estate features grand formal living and dining rooms, expansive family spaces, and walls of glass that open to showcase indoor-outdoor living at its finest. Plans call for resort-style amenities, including a pool, spa, outdoor kitchen, multiple terraces, and generous entertaining spaces throughout. With every detail thoughtfully conceived, from a custom wine cellar and chef's kitchen to seamless indoor/outdoor transitions, this home promises a lifestyle of luxury and refinement. Just moments from world-class shopping and dining on Rodeo Drive and Canon Drive, the property offers both prestige and convenience. This is a land-only sale with plans and permits included, an opportunity to save years of time and expense while creating a distinguished Mediterranean dream estate in Beverly Hills' most sought-after neighborhood.
Contact an agent
Home facts
- Listing ID #:CL25599731
- Added:79 day(s) ago
- Updated:December 18, 2025 at 03:28 PM
Structure and exterior
- Lot area:0.26 Acres
Finances and disclosures
- Price:$7,500,000
New listings near 503 N Elm Drive
- New
$4,600,000Active4 beds 8 baths6,000 sq. ft.136 S Roxbury Drive, Beverly Hills, CA 90212
MLS# 25629581Listed by: CB RICHARD ELLIS, INC. - Open Sun, 1 to 4pmNew
$11,495,000Active5 beds 8 baths5,097 sq. ft.803 N Rexford Drive, Beverly Hills, CA 90210
MLS# 25622967Listed by: HILTON & HYLAND - Open Sat, 11am to 2pmNew
$2,900,000Active3 beds 2 baths2,089 sq. ft.341 S La Peer Drive, Beverly Hills, CA 90211
MLS# 25628305Listed by: BEVERLY HILLS REALTY - Open Sat, 1 to 4pmNew
$4,495,000Active5 beds 5 baths2,720 sq. ft.216 S Almont Drive, Beverly Hills, CA 90211
MLS# 25628199Listed by: KELLER WILLIAMS BEVERLY HILLS - New
$19,995,000Active5 beds 8 baths1335 Carla Lane, Beverly Hills, CA 90210
MLS# 25626023Listed by: THE BEVERLY HILLS ESTATES - New
$2,995,000Active4 beds 4 baths2,676 sq. ft.9767 Apricot Lane, Beverly Hills, CA 90210
MLS# 25626227Listed by: COMPASS - New
$11,995,000Active4 beds 5 baths4,381 sq. ft.1740 Carla, Beverly Hills, CA 90210
MLS# CL25619159Listed by: KELLER WILLIAMS BEVERLY HILLS
$3,800,000Active4 beds 3 baths2,425 sq. ft.113 N Doheny, Beverly Hills, CA 90211
MLS# OC25272352Listed by: LOYAL PROPERTY
$2,290,000Active3 beds 3 baths2,096 sq. ft.2717 Ellison Drive, Beverly Hills, CA 90210
MLS# 25581141Listed by: RODEO REALTY
$2,895,000Active10 beds 8 baths7,100 sq. ft.344 S Doheny Drive, Beverly Hills, CA 90211
MLS# 25625665Listed by: DOUGLAS ELLIMAN