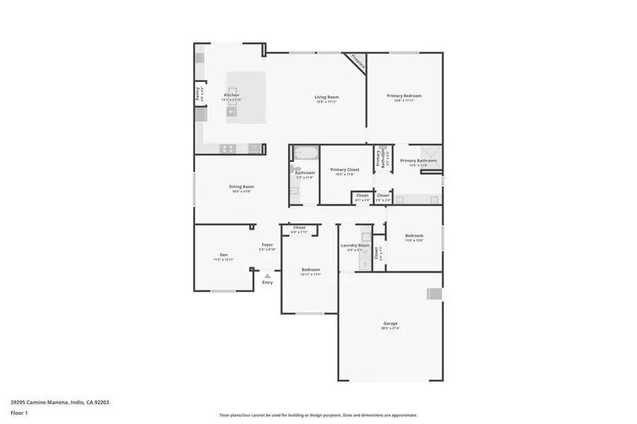
39295 Camino Manena, Indio, CA 92203
Local realty services provided by:CENTURY 21 Valley Properties
39295 Camino Manena,Indio, CA 92203
$699,000
- 3 Beds
- 2 Baths
- 2,370 sq. ft.
- Single family
- Active
Listed by: scott jones
Office: compass
MLS#:219135588DA
Source:CRMLS
Price summary
- Price:$699,000
- Price per sq. ft.:$294.94
- Monthly HOA dues:$369
About this home
Prepare to be wowed! This is truly one of the most spectacular, extensively upgraded homes you'll find in all of Sun City Shadow Hills. This coveted Merida floor plan boasts three bedrooms, a spacious den, two baths, and nearly 2,400 square feet of pure luxury--meticulously remodeled with the finest materials and designer touches at every turn. From the moment you step inside, you're welcomed by the gleam of elegant custom Italian tile flowing effortlessly throughout the living areas. The formal dining room, large enough to host the entire family for holidays and celebrations, sets the stage for the warmth and sophistication that fill every inch of this home. At the heart of it all lies the ultimate chef's dream kitchen--an open-concept masterpiece featuring dazzling natural quartzite countertops, a double-slab extended island perfect for entertaining, custom cabinetry, under-cabinet lighting, a stylish coffee bar, and high-end KitchenAid appliances. Just steps away, the living room invites you to gather around a dramatic stacked stone fireplace that radiates comfort and charm. Privacy and comfort are perfectly balanced here. The guest bedrooms and bath are thoughtfully tucked away, each dressed in plush Berber carpet, complete with king-size accommodations and custom wood shutters. The primary suite is a sanctuary all its own--offering room for designer furnishings and a spa-like bath you'll never want to leave. Indulge in the oversized walk-in shower with seamless glass, the matching quartzite countertops, exquisite lighting, and a walk-in closet that will stop you in your tracks. And the upgrades? They just keep coming--full-home water filtration, freshly painted exterior, a brand-new 16 SEER A/C system, and even an air-conditioned garage to beat the summer heat. Every detail has been designed for beauty, comfort, and ease. The backyard boasts an exteded patio space with Alumawood covering, quaint built-in gas fire pit and all wrapped in the serene privacy of a lush, beautifully maintained natural oasis! This isn't just a home--it's a statement. A showpiece. A place where luxury meets everyday living. Opportunities like this don't come around often, so act fast--your dream home is waiting!
Contact an agent
Home facts
- Year built:2009
- Listing ID #:219135588DA
- Added:122 day(s) ago
- Updated:December 19, 2025 at 12:14 PM
Rooms and interior
- Bedrooms:3
- Total bathrooms:2
- Full bathrooms:2
- Living area:2,370 sq. ft.
Heating and cooling
- Cooling:Central Air
- Heating:Central
Structure and exterior
- Roof:Tile
- Year built:2009
- Building area:2,370 sq. ft.
- Lot area:0.18 Acres
Finances and disclosures
- Price:$699,000
- Price per sq. ft.:$294.94
New listings near 39295 Camino Manena
- New
$655,000Active3 beds 2 baths2,002 sq. ft.85011 Stazzano Place, Indio, CA 92203
MLS# 219141687DAListed by: BERKSHIRE HATHAWAY HOMESERVICES CALIFORNIA PROPERTIES - New
$525,000Active4 beds 3 baths2,043 sq. ft.79598 Winsford Drive, Indio, CA 92203
MLS# 26636313Listed by: VIP PREMIER REALTY CORP - New
$749,000Active3 beds 2 baths2,012 sq. ft.42681 Dell Lago Court, Indio, CA 92203
MLS# GD26012820Listed by: ENGEL & VOLKERS BURBANK - New
$1,850,000Active4 beds 4 baths4,056 sq. ft.49474 Jordan Street, Indio, CA 92201
MLS# 219141668DAListed by: COLDWELL BANKER REALTY - New
$249,000Active0.27 Acres0 Monroe Street, Indio, CA 92201
MLS# 219141652PSListed by: SPEKTERRA - New
$547,900Active4 beds 3 baths2,156 sq. ft.51780 Ponderosa Drive, Indio, CA 92201
MLS# 219141642DAListed by: VINE PROPERTY GROUP, INC. - New
$649,000Active-- beds 1 baths845 sq. ft.48170 Hjorth Street #85, Indio, CA 92201
MLS# 219141625DAListed by: INDIO RV RESORTS INC. - New
$149,000Active-- beds -- baths80394 Avenue 48 #220, Indio, CA 92201
MLS# 219141621DAListed by: LPT REALTY - New
$139,500Active-- beds -- baths80394 Ave 48 #144, Indio, CA 92201
MLS# 219141623DAListed by: LPT REALTY - Open Sat, 1 to 3pmNew
$449,900Active3 beds 2 baths1,571 sq. ft.40125 Calle Las Positas, Indio, CA 92203
MLS# 219141615DAListed by: COLDWELL BANKER REALTY