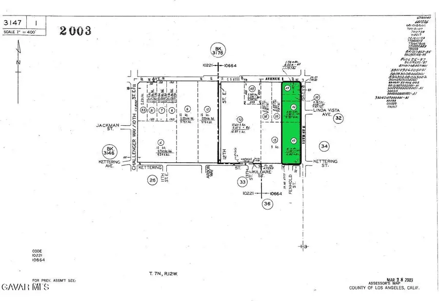
Avenue I And 15th St E, Lancaster, CA 93535
Local realty services provided by:CENTURY 21 Doug Anderson
Avenue I And 15th St E,Lancaster, CA 93535
$700,000
- 8.69 Acres
- Lots / Land
- Active
Listed by: ron halcrow
Office: coldwell banker-a hartwig co.
MLS#:26003268
Source:GAVAR
Price summary
- Price:$700,000
About this home
Entitlement-Positioned Residential Development - 8.69 Acres with Density Upside ---
Four contiguous parcels totaling 8.69 acres with frontage along 15th St E from Avenue I to Kettering Street. The site offers a compelling opportunity for re-entitlement and tract development, supported by a split General Plan designation: approximately 4.18 acres of Medium Density Residential (MDR: 6.6-15 du/ac) and 4.51 acres of Urban Residential (UR: 2.1-6.5 du/ac)--allowing flexibility in product type, lot configuration, and overall yield.
A previously approved Tentative Tract Map (TTM) for 38 single-family lots establishes a strong entitlement baseline. While the map has expired following the City's upgrade to higher-density MDR zoning, it provides significant carry-forward value, including prior engineering studies, site planning, and a detailed record of municipal conditions of approval. This groundwork can materially reduce entitlement risk, inform updated yield scenarios, and accelerate the resubmittal process.
* A previously approved Tentative Tract Map (TTM) for 38 single-family lots establishes a strong entitlement baseline. While the map has expired following the City's upgrade to higher-density MDR zoning, it provides significant carry-forward value, including prior engineering studies, site planning, and a detailed record of municipal conditions of approval. This groundwork can materially reduce entitlement risk, inform updated yield scenarios, and accelerate the resubmittal process.
Planning & Entitlement Advantages:
" CEQA Positioning: Prior approvals and studies may support streamlined environmental review, with the potential for addendum or focused analysis rather than a full EIR, subject to City determination.
" Known Development Standards: Existing conditions of approval offer clarity on grading, drainage, circulation, and off-site improvement requirements--reducing uncertainty during entitlement.
" Utility & Infrastructure Context: Prior tract work provides insight into utility access points, capacity considerations, and likely off-site improvement obligations.
" Improved Density Potential: Updated MDR zoning creates an opportunity to increase unit count beyond the prior 38-lot configuration while integrating required affordable housing components.
" Phasing Potential: Parcel configuration and frontage may allow for phased development and flexible absorption strategies.
Well-suited for builders and developers seeking a project with prior agency alignment, documented site constraints, and the ability to leverage existing due diligence to shorten entitlement timelines and move more efficiently toward final map approval and construction....
Contact an agent
Home facts
- Listing ID #:26003268
- Added:1 day(s) ago
- Updated:April 24, 2026 at 10:26 AM
Structure and exterior
- Lot area:8.69 Acres
Utilities
- Water:Fire Hydrant, Public
Finances and disclosures
- Price:$700,000
Features and amenities
- Laundry features:Laundry Room
New listings near Avenue I And 15th St E
- New
$478,500Active4 beds 2 baths1,935 sq. ft.43461 Huron, Lancaster, CA 93535
MLS# OC26079556Listed by: KELLER WILLIAMS OC COASTAL REALTY - Open Sat, 10am to 1pmNew
$443,000Active3 beds 2 baths1,494 sq. ft.43915 Glenraven Road, Lancaster, CA 93535
MLS# 26003281Listed by: COLDWELL BANKER-A HARTWIG CO. - New
$799,990Active2 beds 3 baths2,760 sq. ft.44441 Sierra Highway, Lancaster, CA 93534
MLS# 26003275Listed by: HOME ACE REALTY - New
$1,799,990Active4 beds 6 baths3,559 sq. ft.3211 Paddock Way, Quartz Hill, CA 93536
MLS# 26003280Listed by: REAL BROKERAGE TECHNOLOGIES - Open Sun, 1 to 4pmNew
$335,000Active2 beds 1 baths817 sq. ft.557 W Oldfield Street, Lancaster, CA 93534
MLS# SR26088594Listed by: LUXURY COLLECTIVE - New
$40,000Active9.97 Acres0 Avenue C, Lancaster, CA 93536
MLS# WS26088639Listed by: JPAN REALTY - Open Sat, 12 to 5pmNew
$434,900Active4 beds 2 baths1,206 sq. ft.45309 Newtree Avenue, Lancaster, CA 93534
MLS# 26003265Listed by: Z REAL ESTATE - New
$70,000Active10.21 Acres217 E Avenue K, Lancaster, CA 93535
MLS# CV26088296Listed by: RE/MAX CHAMPIONS - New
$1,100,000Active5.22 Acres0 Avenue L6 7th Stw, Lancaster, CA 93534
MLS# IV26087496Listed by: SPARKLE REALTY