319 Skyward Place, Lincoln, CA 95648

Local realty services provided by:CENTURY 21 Select Real Estate, Inc.
319 Skyward Place,Lincoln, CA 95648
$456,036
  • 3 Beds
  • 3 Baths
  • 1,507 sq. ft.
  • Single family
  • Pending
Listed by: melody elskes
Office: kb home sales-northern california inc
MLS#:226004464
Source:MFMLS

Price summary

  • Price:$456,036
  • Price per sq. ft.:$302.61
  • Monthly HOA dues:$162

About this home

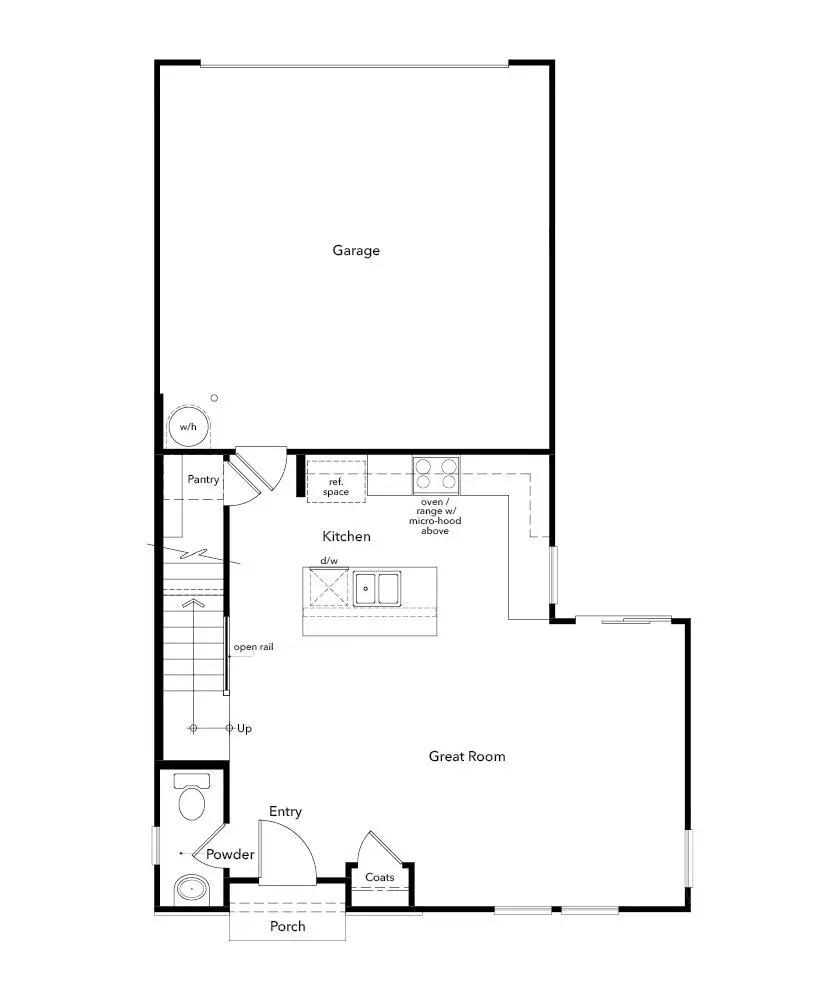
Homesite 50 - Aurora Heights at Twelve Bridges This stylish two-story, alley-load KB Home offers a thoughtfully designed open floor plan featuring luxury vinyl plank flooring throughout the main living areas and plush carpet in the bedrooms. The modern kitchen is well-appointed with quartz countertops, a pantry closet, stainless steel appliances, and an included electric range with microwave/hood combo. The private primary suite provides a relaxing retreat with a spacious walk-in closet, dual-sink vanity, and a walk-in shower. Solar required, lease or purchase.

Contact an agent

contact an agent

Yes, I would like more information. Please use and/or share my information with an independent agent affiliated with the CENTURY 21®  brand to contact me about my real estate needs. By clicking Send message, I request to be contacted by phone or text message and consent to being contacted by automated means. I understand that my consent to receive calls or texts is not a condition of purchasing any property, goods, or services. Alternatively, I understand that I can access real estate services by email or I can contact the agent myself.

If an independent agent affiliated with the CENTURY 21®  brand is not available in the area where I need assistance, I agree to be contacted by a real estate agent affiliated with another brand owned or licensed by Anywhere Real Estate (BHGRE® , Coldwell Banker® , Corcoran® , ERA® , Sotheby's International Realty® ).
 I acknowledge that I have read and agree to theTerms of useandPrivacy notice

Home facts

  • Listing ID #:226004464
  • Added:100 day(s) ago
  • Updated:April 25, 2026 at 07:16 AM

Rooms and interior

  • Bedrooms:3
  • Total bathrooms:3
  • Full bathrooms:2
  • Flooring:Carpet, Vinyl
  • Living area:1,507 sq. ft.

Heating and cooling

  • Cooling:Central
  • Heating:Central

Structure and exterior

  • Roof:Tile
  • Building area:1,507 sq. ft.
  • Lot area:0.04 Acres
  • Lot Features:Landscape Front
  • Construction Materials:Stucco, Wood
  • Foundation Description:Slab
  • Levels:2 Story

Utilities

  • Sewer:Public Sewer

Finances and disclosures

  • Price:$456,036
  • Price per sq. ft.:$302.61

Features and amenities

  • Laundry features:On Upper Floor

Parking

  • Garage spaces:2
MLS LogoMetroList MLS 2026. This information is being provided by MetroList MLS. All measurements and calculations of area are approximate. Information provided by Seller/Other sources, not verified by Broker. All interested persons should independently verify accuracy of information. Provided properties may or may not be listed by the office/agent presenting the information. Data Updated: April 25, 2026. Information being provided is for consumers' personal, non-commercial use and may not be used for any purpose other than to identify prospective properties consumers may be interested in purchasing. Information deemed reliable but not guaranteed. Any offer of compensation is made only to Participants of MLS where the subject listing is filed and in accordance with such MLS's regulations or rules.