0 136th East, Littlerock, CA 93543

Local realty services provided by:CENTURY 21 Affiliated
0 136th East,Littlerock, CA 93543
$55,000
  • 0 Acres
  • Lots / Land
  • Active
Listed by: nydia del rio
Office: home & land source
MLS#:IV26090999
Source:San Diego MLS via CRMLS

Price summary

  • Price:$55,000

About this home

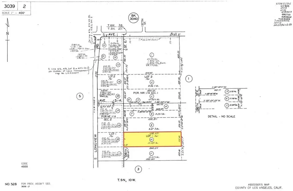
APN: 3039-002-010 Coordinates: 34.551278, -117.887611 9.99 acre parcel for sale in LA County. This lot is located in Littlerock, CA just off of Longview Rd and E Avenue T. The property is accessible vie 136th St E. The property in question is in a rural area and zoned for agricultural use per county records. Excellent location on a dirt road and near to a major street that runs from Littlerock to Palmdale and connects to HWY 138.

Contact an agent

contact an agent

Yes, I would like more information. Please use and/or share my information with an independent agent affiliated with the CENTURY 21®  brand to contact me about my real estate needs. By clicking Send message, I request to be contacted by phone or text message and consent to being contacted by automated means. I understand that my consent to receive calls or texts is not a condition of purchasing any property, goods, or services. Alternatively, I understand that I can access real estate services by email or I can contact the agent myself.

If an independent agent affiliated with the CENTURY 21®  brand is not available in the area where I need assistance, I agree to be contacted by a real estate agent affiliated with another brand owned or licensed by Anywhere Real Estate (BHGRE® , Coldwell Banker® , Corcoran® , ERA® , Sotheby's International Realty® ).
 I acknowledge that I have read and agree to theTerms of useandPrivacy notice

Home facts

  • Listing ID #:IV26090999
  • Added:1 day(s) ago
  • Updated:April 28, 2026 at 02:28 PM

Finances and disclosures

  • Price:$55,000
MLS LogoThis information is deemed reliable but not guaranteed. You should rely on this information only to decide whether or not to further investigate a particular property. BEFORE MAKING ANY OTHER DECISION, YOU SHOULD PERSONALLY INVESTIGATE THE FACTS (e.g. square footage and lot size) with the assistance of an appropriate professional. You may use this information only to identify properties you may be interested in investigating further. All uses except for personal, non-commercial use in accordance with the foregoing purpose are prohibited. Redistribution or copying of this information, any photographs or video tours is strictly prohibited. This information is derived from the Internet Data Exchange (IDX) service provided by San Diego MLS®. Displayed property listings may be held by a brokerage firm other than the broker and/or agent responsible for this display. The information and any photographs and video tours and the compilation from which they are derived is protected by copyright. Compilation © 2020 San Diego MLS®, Inc.