2823 Cottage Lane, Paso Robles, CA 93446
Local realty services provided by:CENTURY 21 Experience
2823 Cottage Lane,Paso Robles, CA 93446
$599,950
- 3 Beds
- 3 Baths
- 1,481 sq. ft.
- Single family
- Pending
Listed by: lorelei komm
Office: guide real estate
MLS#:NS25267848
Source:CRMLS
Price summary
- Price:$599,950
- Price per sq. ft.:$405.1
- Monthly HOA dues:$330
About this home
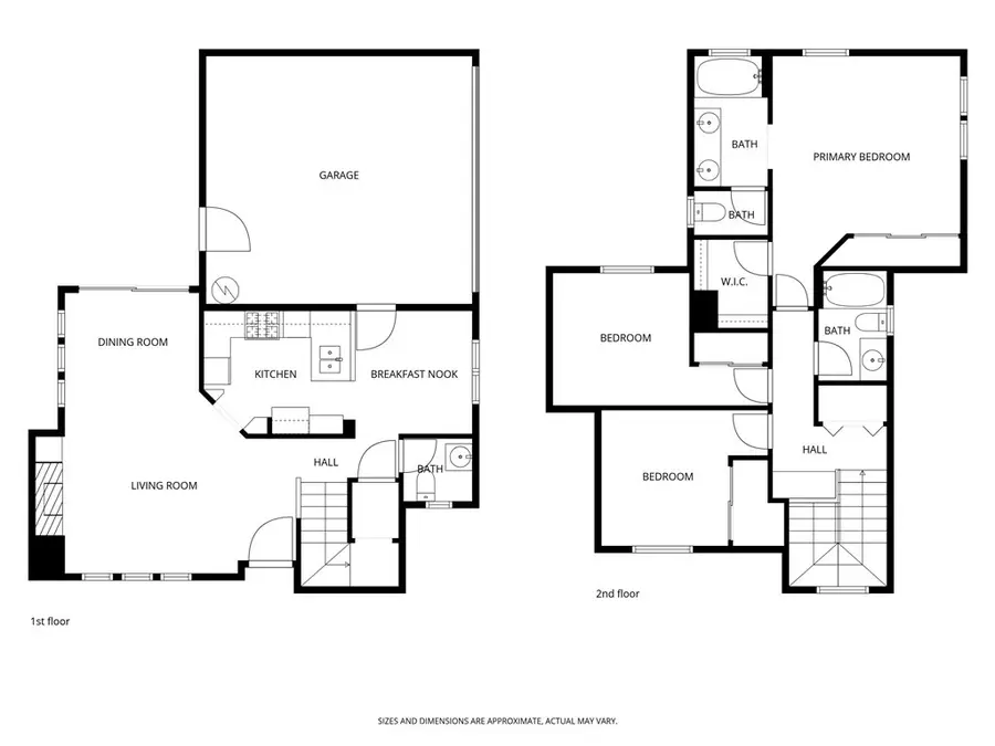
Don't miss this well-priced home in the desirable Cottages at River Oaks: this well appointed 3 bed, 2 & 1/2 bath residence has a sophisticated and upscale interior and offers the perfect Paso Robles Wine Country retreat, either as your primary residence or your second home. The open floor plan is highlighted by a stone trimmed chef's kitchen with glass tiled backsplash, coffee bar, stainless steel appliances, including a Bosch dishwasher (Bosch = quiet) with a sunny breakfast nook, an open living and dining area that easily flows to the private covered patio and backyard. A spacious primary suit is accentuated with 2 closets, one of which is a walk-in closet. Two additional bedrooms, one full bathroom and a laundry closet complete the upper level. Additional features include luxury vinyl flooring, custom window coverings, lots of cabinet space, a powder room on the lower level, and an attached 2 car garage with extra storage space. The desirable community is entered though a secure gate and offers a clubhouse, sparking pool and spa, AND the monthly association fees include high speed internet and a cable box - utilities for which you would otherwise spend approximately $150/month. Making life even easier, you are only a few blocks away from the River Oaks Golf Course featuring the Spirit of Paso Robles Bar and Grill - in the summertime you will most certainly enjoy their summer concert series, and the River Oaks Hot Springs Spa with artesian mineral springs soaking tubs. Centrally located to all of Paso's wonderful offerings such as the vibrant Event Center with year round activities, including the renowned Mid-State Fair; five star Allegretto Resort with a day spa and fabulous restaurant and bar; wineries; and the historic downtown Paso Robles' myriad of posh boutiques, wine bars, cafes and seasonal events. This is a terrific value and opportunity to purchase a turn-key home in a gated community in the Paso Robles Wine Country for under $600,000 and to achieve the dreamy Paso lifestyle, a stylish blend of sophistication and laid-back elegance. This is home so don't let it slip away. Just say YES and Welcome Home!
Contact an agent
Home facts
- Year built:2002
- Listing ID #:NS25267848
- Added:48 day(s) ago
- Updated:January 25, 2026 at 08:34 AM
Rooms and interior
- Bedrooms:3
- Total bathrooms:3
- Full bathrooms:2
- Half bathrooms:1
- Living area:1,481 sq. ft.
Heating and cooling
- Cooling:Central Air
- Heating:Fireplaces, Forced Air
Structure and exterior
- Year built:2002
- Building area:1,481 sq. ft.
- Lot area:0.07 Acres
Utilities
- Water:Public
- Sewer:Public Sewer
Finances and disclosures
- Price:$599,950
- Price per sq. ft.:$405.1
New listings near 2823 Cottage Lane
- New
$575,000Active2 beds 1 baths1,224 sq. ft.2237 Vine, Paso Robles, CA 93446
MLS# NS26020197Listed by: RICHARDSON SOTHEBY'S INTERNATIONAL REALTY - New
$659,000Active3.54 Acres1920 Fire Rock Loop, Templeton, CA 93465
MLS# CRNS26019382Listed by: LPT REALTY, INC - New
$509,000Active3 beds 2 baths1,728 sq. ft.2471 Captains, Bradley, CA 93426
MLS# NS26017029Listed by: OAK SHORES REALTY - New
$1,099,000Active5 beds -- baths1,290 sq. ft.1545 Park Street, Paso Robles, CA 93446
MLS# CRNS26013926Listed by: RE/MAX PARKSIDE REAL ESTATE - New
$1,200,000Active2 beds 2 baths1,656 sq. ft.698 Vaquero Road, Templeton, CA 93465
MLS# NS26018050Listed by: EMERY & ASSOCIATES - New
$749,000Active3 beds 2 baths1,460 sq. ft.4291 Jardine Road, Paso Robles, CA 93446
MLS# NS26016673Listed by: RE/MAX PARKSIDE REAL ESTATE - New
$435,000Active2 beds 2 baths952 sq. ft.714 Tanner #6A, Paso Robles, CA 93446
MLS# PI26012191Listed by: BETTER HOMES AND GARDENS REAL ESTATE HAVEN PROPERTIES - Open Sat, 10am to 12pmNew
$700,000Active3 beds 2 baths1,547 sq. ft.616 Trigo, Paso Robles, CA 93446
MLS# NS26017714Listed by: CENTURY 21 MASTERS - SAN LUIS OBISPO - New
$20,000Active0.12 Acres2532 Anchor, Bradley, CA 93426
MLS# CRNS26014607Listed by: OAK SHORES REALTY - New
$1,025,000Active3 beds 2 baths1,970 sq. ft.2627 Captains Walk, Lake Nacimiento, CA 93426
MLS# NS26009819Listed by: BHGRE HAVEN PROPERTIES