9240 Harness St, Spring Valley, CA 91977

Local realty services provided by:CENTURY 21 Experience
9240 Harness St,Spring Valley, CA 91977
$1,800,000
  • - Beds
  • - Baths
  • - sq. ft.
  • Multi-family
  • Active
Listed by: david jefferson
Office: weichert socal
MLS#:250036598SD
Source:CRMLS

Price summary

  • Price:$1,800,000

About this home

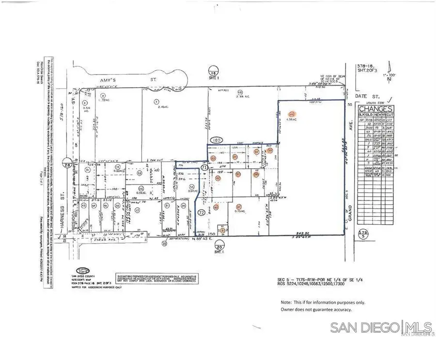
Unique development opportunity: 13 parcels totaling 8 acres in San Diego County. Includes 3 tenant-occupied homes in poor, likely uninhabitable condition—not up to code. Sold as vacant land; no warranties made. Part of the land is undevelopable due to open space easement and topography. Preliminary talks with San Diego County suggest potential for up to 26 lots (6,000 SF each) could be approved. Buyer to verify all info; seller and broker make no guarantees on approvals or development. Buyers & buyers agent to verify all herein prior to submitting an offer! APN #1- 578-160-05-00 APN #2 - 578-160-40-00 APN #3- 578-160-41-00 APN #4- 578-160-42-00 APN #5- 578-160-57-00 APN #6- 578-160-58-00 APN #7- 578-160-61-00 APN #8- 578-160-62-00 APN #9- 578-160-63-00 APN #10- 578-160-66-00 APN #11- 578-160-69-00 APN #12- 578-160-71-00 APN #13 -578-160-72-00

Contact an agent

contact an agent

Yes, I would like more information. Please use and/or share my information with an independent agent affiliated with the CENTURY 21®  brand to contact me about my real estate needs. By clicking Send message, I request to be contacted by phone or text message and consent to being contacted by automated means. I understand that my consent to receive calls or texts is not a condition of purchasing any property, goods, or services. Alternatively, I understand that I can access real estate services by email or I can contact the agent myself.

If an independent agent affiliated with the CENTURY 21®  brand is not available in the area where I need assistance, I agree to be contacted by a real estate agent affiliated with another brand owned or licensed by Anywhere Real Estate (BHGRE® , Coldwell Banker® , Corcoran® , ERA® , Sotheby's International Realty® ).
 I acknowledge that I have read and agree to theTerms of useandPrivacy notice

Home facts

  • Year built:1934
  • Listing ID #:250036598SD
  • Added:178 day(s) ago
  • Updated:February 10, 2026 at 11:45 AM

Structure and exterior

  • Year built:1934

Finances and disclosures

  • Price:$1,800,000
The information being provided by California Regional MLS (Southern California) is for the consumer's personal, non-commercial use and may not be used for any purpose other than to identify prospective properties consumer may be interested in purchasing. Any information relating to real estate for sale referenced on this web site comes from the Internet Data Exchange (IDX) program of the California Regional MLS (Southern California). CENTURY 21 Experience is not a Multiple Listing Service (MLS), nor does it offer MLS access. This website is a service of CENTURY 21 Experience, a broker participant of California Regional MLS (Southern California). This web site may reference real estate listing(s) held by a brokerage firm other than the broker and/or agent who owns this web site. The accuracy of all information, regardless of source, including but not limited to open house information, square footages and lot sizes, is deemed reliable but not guaranteed and should be personally verified through personal inspection by and/or with the appropriate professionals. The data contained herein is copyrighted by California Regional MLS (Southern California) and is protected by all applicable copyright laws. Any unauthorized dissemination of this information is in violation of copyright laws and is strictly prohibited. Copyright 2021 California Regional MLS (Southern California). All rights reserved.