131 White Sands, Trabuco Canyon, CA 92679

Local realty services provided by:CENTURY 21 Masters
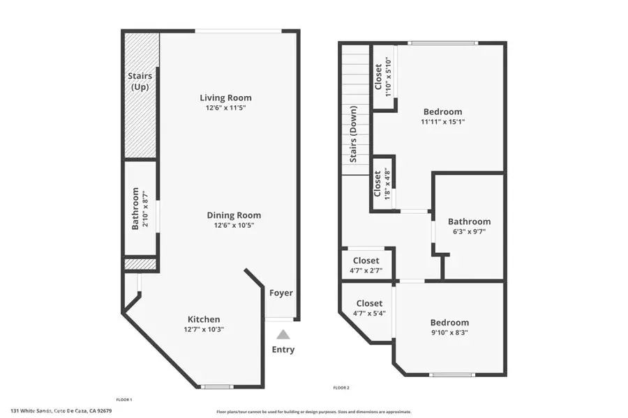
131 White Sands,Trabuco Canyon, CA 92679
$635,000
  • 2 Beds
  • 2 Baths
  • - sq. ft.
  • Condominium
  • Sold
Listed by: kirstie nystedt, rochelle sack
Office: bullock russell re services
MLS#:OC25259753
Source:CRMLS

Sorry, we are unable to map this address


Price summary

  • Price:$635,000
  • Monthly HOA dues:$345

About this home

Welcome to your private retreat—beautifully upgraded, thoughtfully designed, and move-in ready! This charming 2-bedroom, 1.5-bath condo offers the perfect blend of style, comfort, and convenience, highlighted by a large and private backyard featuring lush faux grass—an ideal space for relaxing, entertaining, or enjoying pets and playtime. Inside, the home features LVP flooring downstairs and laminate throughout the upper level, creating a clean, modern flow. The updated kitchen shines with quartz countertops, white cabinetry, stainless steel appliances, and plenty of prep space for cooking and hosting. A stylish barn door adds a modern touch to the downstairs guest bath. Upstairs offers two, light and bright bedrooms. The primary bedroom includes two closets, while the secondary bedroom features a walk-in closet. The beautifully remodeled full bathroom showcases a dual-sink vanity, designer tile flooring, and an upgraded tub/shower combo complete with a tile surround and sleek...

Contact an agent

contact an agent

Yes, I would like more information. Please use and/or share my information with an independent agent affiliated with the CENTURY 21®  brand to contact me about my real estate needs. By clicking Send message, I request to be contacted by phone or text message and consent to being contacted by automated means. I understand that my consent to receive calls or texts is not a condition of purchasing any property, goods, or services. Alternatively, I understand that I can access real estate services by email or I can contact the agent myself.

If an independent agent affiliated with the CENTURY 21®  brand is not available in the area where I need assistance, I agree to be contacted by a real estate agent affiliated with another brand owned or licensed by Anywhere Real Estate (BHGRE® , Coldwell Banker® , Corcoran® , ERA® , Sotheby's International Realty® ).
 I acknowledge that I have read and agree to theTerms of useandPrivacy notice

Home facts

  • Year built:1998
  • Listing ID #:OC25259753
  • Added:129 day(s) ago
  • Updated:March 23, 2026 at 06:22 AM

Rooms and interior

  • Bedrooms:2
  • Total bathrooms:2
  • Full bathrooms:1
  • Half bathrooms:1
  • Flooring:Laminate, Vinyl
  • Kitchen Description:Dishwasher, Gas Oven, Gas Range, Microwave, Refrigerator

Heating and cooling

  • Cooling:Central Air
  • Heating:Forced Air
  • Central air:Yes

Structure and exterior

  • Year built:1998
  • Lot Features:Back Yard, Near Park
  • Architectural Style:Patio Home
  • Exterior Features:Enclosed, Patio
  • Levels:2 Story

Schools

  • High school:Tesoro
  • Middle school:Las Flores
  • Elementary school:Wagon Wheel

Utilities

  • Water:Public, Water Available
  • Sewer:Public Sewer, Sewer Available

Finances and disclosures

  • Price:$635,000

Features and amenities

  • Appliances:Dishwasher, Dryer, Washer
  • Laundry features:Dryer, Inside, Washer
  • Amenities:All Bedrooms Up, Carbon Monoxide (CO2) Detector, Open Floor Plan, Quartz Counters, Recessed Lighting, Walk In Closets
  • Pool features:Association, Pool

Parking

  • Total parking spaces:2
  • Parking description:Assigned, Garage, Garage Door Opener, Guest
  • Garage:Yes
  • Garage spaces:1
The information being provided by California Regional MLS (Southern California) is for the consumer's personal, non-commercial use and may not be used for any purpose other than to identify prospective properties consumer may be interested in purchasing. Any information relating to real estate for sale referenced on this web site comes from the Internet Data Exchange (IDX) program of the California Regional MLS (Southern California). CENTURY 21 Masters is not a Multiple Listing Service (MLS), nor does it offer MLS access. This website is a service of CENTURY 21 Masters, a broker participant of California Regional MLS (Southern California). This web site may reference real estate listing(s) held by a brokerage firm other than the broker and/or agent who owns this web site. The accuracy of all information, regardless of source, including but not limited to open house information, square footages and lot sizes, is deemed reliable but not guaranteed and should be personally verified through personal inspection by and/or with the appropriate professionals. The data contained herein is copyrighted by California Regional MLS (Southern California) and is protected by all applicable copyright laws. Any unauthorized dissemination of this information is in violation of copyright laws and is strictly prohibited. Copyright 2021 California Regional MLS (Southern California). All rights reserved.