106 Lake View Circle E, Breckenridge, CO 80424
Local realty services provided by:CENTURY 21 Top Dog Properties
106 Lake View Circle E,Breckenridge, CO 80424
$525,000
- 0.47 Acres
- Lots / Land
- Active
Listed by: ronda l. campbell
Office: re/max properties of the summit
MLS#:S1061107
Source:CO_SAR
Price summary
- Price:$525,000
About this home
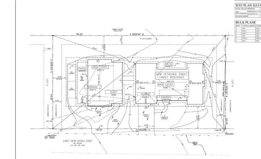
CLOSE TO FRISCO AND BRECKENRIDGE. Half-Acre Lot Centrally located in Summit County. Build your dream home and huge 4 car garage or shop with plenty of storage to park all your toys, snow mobiles, boats, campers and ATV's. Build an ADU for extra income. This flat, sunny ½ acre lot is in a great location, just 5 minutes to Frisco Main St, 9 minutes to Breckenridge, and 15 minutes to Keystone. Lot is large enough to build a ranch home and extra large garage, or whatever home you've always wanted. Enjoy views of the Ten Mile Range and Buffalo Mountain. Walk to Lake Dillon for fishing or paddle boarding. Rec-path right out your door for biking and walking. Many hiking trails only minutes away. No HOA, no transfer fee. Topo map is attached in the MLS, soils report available. Great opportunity to live, work, and play in Summit County! See example home site plan in pictures.
Contact an agent
Home facts
- Listing ID #:S1061107
- Added:171 day(s) ago
- Updated:December 16, 2025 at 03:45 PM
Structure and exterior
- Lot area:0.47 Acres
Utilities
- Water:Well
- Sewer:Public Sewer, Sewer Available
Finances and disclosures
- Price:$525,000
- Tax amount:$8,074 (2024)
New listings near 106 Lake View Circle E
$389,000Pending1 beds 1 baths650 sq. ft.350 Stan Miller #300, Breckenridge, CO 80424
MLS# S1064582Listed by: THE REAL ESTATE GROUP- New
$3,300,000Active4 beds 5 baths3,435 sq. ft.1695 Highlands Drive, Breckenridge, CO 80424
MLS# S1064580Listed by: RE/MAX PROPERTIES OF THE SUMMIT - New
$2,450,000Active4 beds 4 baths2,522 sq. ft.31 Tall Pines Drive #31, Breckenridge, CO 80424
MLS# S1064593Listed by: PEAK MOUNTAIN REAL ESTATE - New
$1,395,000Active2 beds 2 baths1,044 sq. ft.600 Four Oclock Road #A11, Breckenridge, CO 80424
MLS# S1064528Listed by: SLIFER SMITH & FRAMPTON R.E. - New
$599,000Active2 beds 1 baths754 sq. ft.311 S High Street #209, Breckenridge, CO 80424
MLS# S1064539Listed by: SLIFER SMITH & FRAMPTON R.E. - New
$899,000Active3 beds 2 baths1,056 sq. ft.75 Reliance Drive, Breckenridge, CO 80424
MLS# S1064535Listed by: BRECKENRIDGE ASSOCIATES R.E. - New
$880,000Active2 beds 2 baths913 sq. ft.303 Pelican Cir #1906, Breckenridge, CO 80424
MLS# 7699241Listed by: Coldwell Banker Mountain Properties - New
$5,995,000Active0.64 Acres3 Heritage Drive, Breckenridge, CO 80424
MLS# S1064541Listed by: IMI RESORT PROPS OF COLORADO - New
$5,895,000Active0.94 Acres7 Legacy Way, Breckenridge, CO 80424
MLS# S1064542Listed by: IMI RESORT PROPS OF COLORADO
$3,150,000Pending3 beds 4 baths2,086 sq. ft.42 Snowflake Dr #505, Breckenridge, CO 80424
MLS# 5014107Listed by: Omni Real Estate Company Inc