4054 Sandia Trl, Castle Rock, CO 80109

Local realty services provided by:CENTURY 21 CapRock Real Estate
4054 Sandia Trl,Castle Rock, CO 80109
$430,000
  • 3 Beds
  • 3 Baths
  • 1,538 sq. ft.
  • Townhouse
  • Active
Upcoming open houses
  • Sat, Feb 07
    10:00 am - 12:00 pm
Listed by: sasha smothers
Office: keller williams advantage realty llc
MLS#:2823900
Source:IRES

Price summary

  • Price:$430,000
  • Price per sq. ft.:$279.58
  • Monthly HOA dues:$360

About this home

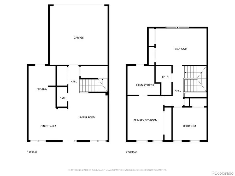
This townhome in The Meadows offers approximately 1,538 square feet with 3 bedrooms, 2.5 baths, and an attached 2-car garage. The main level features an open living and dining area connected to an updated kitchen with granite countertops, stainless steel appliances, gas range, and expanded prep space. Main-level laundry and additional storage add everyday convenience. Upstairs includes a primary suite with private bath, two additional bedrooms, and a second full bath. Select rooms capture views toward open meadow areas and distant mountain outlooks. Automated window shades provide light-filtering and room-darkening options. A fenced courtyard offers private outdoor space for seating or container gardening. HOA maintains exterior elements and provides access to community amenities including a pool, clubhouse, parks, and trail system. Located within close proximity to I-25, Castle Rock Adventist Hospital, Castle Rock Outlets, and Promenade at Castle Rock shopping and dining.

Contact an agent

contact an agent

Yes, I would like more information. Please use and/or share my information with an independent agent affiliated with the CENTURY 21®  brand to contact me about my real estate needs. By clicking Send message, I request to be contacted by phone or text message and consent to being contacted by automated means. I understand that my consent to receive calls or texts is not a condition of purchasing any property, goods, or services. Alternatively, I understand that I can access real estate services by email or I can contact the agent myself.

If an independent agent affiliated with the CENTURY 21®  brand is not available in the area where I need assistance, I agree to be contacted by a real estate agent affiliated with another brand owned or licensed by Anywhere Real Estate (BHGRE® , Coldwell Banker® , Corcoran® , ERA® , Sotheby's International Realty® ).
 I acknowledge that I have read and agree to theTerms of useandPrivacy notice

Home facts

  • Year built:2005
  • Listing ID #:2823900
  • Added:3 day(s) ago
  • Updated:February 06, 2026 at 11:16 AM

Rooms and interior

  • Bedrooms:3
  • Total bathrooms:3
  • Full bathrooms:2
  • Half bathrooms:1
  • Living area:1,538 sq. ft.

Heating and cooling

  • Cooling:Ceiling Fan(s), Central Air
  • Heating:Forced Air

Structure and exterior

  • Roof:Composition
  • Year built:2005
  • Building area:1,538 sq. ft.
  • Lot area:0.04 Acres

Schools

  • High school:Castle View
  • Middle school:Castle Rock
  • Elementary school:Soaring Hawk

Utilities

  • Sewer:Public Sewer

Finances and disclosures

  • Price:$430,000
  • Price per sq. ft.:$279.58
  • Tax amount:$2,927
The real estate listing information and related content displayed on this site is provided exclusively for consumer's personal, non-commercial use and may not be used for any purpose other than to identify prospective properties consumers may be interested in purchasing. This information and related content is deemed reliable but is not guaranteed accurate by Information and Real Estate Services, LLC. Information source: Information and Real Estate Services, LLC. Provided for limited non-commercial use only under IRES Rules © Copyright IRES. The information being provided by Information and Real Estate Services is for the consumer's personal, non-commercial use and may not be used for any purpose other than to identify prospective properties consumer may be interested in purchasing. Any information relating to real estate for sale referenced on this web site comes from the Internet Data Exchange (IDX) program of the Information and Real Estate Services. This web site may reference real estate listing(s) held by a brokerage firm other than the broker and/or agent who owns this web site. The accuracy of all information, regardless of source, including but not limited to open house information, square footages and lot sizes, is deemed reliable but not guaranteed and should be personally verified through personal inspection by and/or with the appropriate professionals. The data contained herein is copyrighted by Information and Real Estate Services and is protected by all applicable copyright laws. Any unauthorized dissemination of this information is in violation of copyright laws and is strictly prohibited.