16775 E Kettle Avenue, Centennial, CO 80016
Local realty services provided by:CENTURY 21 Community First
16775 E Kettle Avenue,Centennial, CO 80016
$654,700
- 4 Beds
- 4 Baths
- 2,356 sq. ft.
- Single family
- Pending
Listed by: tom ullrich
Office: re/max professionals
MLS#:5786598
Source:ML
Price summary
- Price:$654,700
- Price per sq. ft.:$277.89
- Monthly HOA dues:$44
About this home
**Available with rates as low as 3.75% when using builder’s preferred lender – terms and conditions apply – ask for details****Contact builder today about Special Financing for this home **
Available NOW!
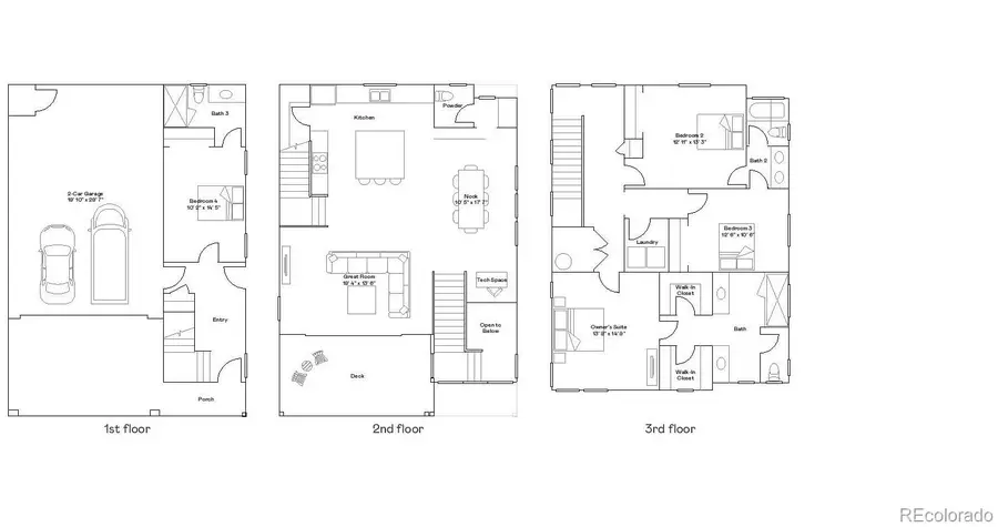
Beautiful Boulevard 3-story plan in the brand new Vermilion community has a beautiful outdoor living balcony and features 4 bedrooms (3 upper / 1 lower), 3.5 baths, great room, kitchen, laundry, 2.5 car garage and a crawlspace. Gorgeous finishes and upgrades throughout including luxury vinyl plank flooring, stainless steel appliances, Quartz package, low maintenance backyard space and more. The builder provides the latest in energy efficiency and state of the art technology with several fabulous floorplans to choose from. Energy efficiency, and technology/connectivity seamlessly blended with luxury to make your new house a home. Vermilion Creek offers single family homes for every lifestyle. Close to dining, shopping, entertainment and other amenities. Association fee subject to change. Photos and the Matterport 3D tour are of a model home and are provided for illustrative purposes only. Features, finishes, and layout may vary and are subject to change. Washer / Dryer Included / Private Fencing / Whole House Blinds / Adjacent to open lawn area. Enjoy easy access to Tagawa Gardens and the Cherry Creek Trails right outside your neighborhood....
Contact an agent
Home facts
- Year built:2026
- Listing ID #:5786598
Rooms and interior
- Bedrooms:4
- Total bathrooms:4
- Full bathrooms:1
- Half bathrooms:1
- Flooring:Carpet, Tile, Vinyl
- Kitchen Description:Dishwasher, Disposal, Kitchen Island, Microwave, Oven, Refrigerator
- Basement:Yes
- Basement Description:Crawl Space
- Living area:2,356 sq. ft.
Heating and cooling
- Cooling:Central Air
- Heating:Electric
- Central air:Yes
Structure and exterior
- Roof:Composition
- Year built:2026
- Building area:2,356 sq. ft.
- Lot area:0.06 Acres
- Construction Materials:Frame
- Exterior Features:Front Porch
- Levels:3 or More Stories
Schools
- High school:Grandview
- Middle school:Liberty
- Elementary school:Red Hawk Ridge
Utilities
- Water:Public
- Sewer:Public Sewer
Finances and disclosures
- Price:$654,700
- Price per sq. ft.:$277.89
- Tax amount:$8,186 (2025)
Features and amenities
- Laundry features:In Unit
- Amenities:Carbon Monoxide Detector(s), Double Pane Windows, Smoke Detector(s)
Parking
- Total parking spaces:2
- Parking description:Concrete Driveway
- Garage:Yes
- Garage spaces:2
New listings near 16775 E Kettle Avenue
- New
$875,000Active5 beds 5 baths5,101 sq. ft.5860 S Quintero Cir, Aurora, CO 80015
MLS# 2560948Listed by: Colorado Key Real Estate - New
$550,000Active3 beds 2 baths2,145 sq. ft.17677 E Prentice Cir, Aurora, CO 80015
MLS# 7758243Listed by: Kentwood Real Estate Cherry Creek - New
$665,000Active5 beds 4 baths2,631 sq. ft.6846 S Glencoe Ct, Centennial, CO 80122
MLS# 6598629Listed by: Philanthropy Real Estate - Open Sat, 11am to 1pmNew
$549,000Active4 beds 3 baths3,098 sq. ft.17738 E Crestridge Pl, Centennial, CO 80015
MLS# 3603846Listed by: Destination Denver Realty - Open Sun, 11am to 2pmNew
$1,375,000Active5 beds 5 baths4,523 sq. ft.6929 S Chapparal E Cir, Centennial, CO 80016
MLS# 6041819Listed by: Kentwood Real Estate Cherry Creek - Open Sat, 2:30 to 5pmNew
$598,000Active4 beds 4 baths2,185 sq. ft.2718 E Geddes Ave, Centennial, CO 80122
MLS# 8077458Listed by: eXp Realty, LLC - New
$675,000Active5 beds 4 baths3,527 sq. ft.7992 S Jackson St, Littleton, CO 80122
MLS# 9816457Listed by: The Steller Group, Inc - New
$480,000Active4 beds 2 baths1,858 sq. ft.5626 S Odessa St, Centennial, CO 80015
MLS# 2390396Listed by: Coldwell Banker Realty 24 - New
$825,000Active4 beds 3 baths2,607 sq. ft.6928 S Columbine Way, Centennial, CO 80122
MLS# 5728829Listed by: Milehimodern - New
$549,900Active4 beds 2 baths1,858 sq. ft.5951 S Perth St, Centennial, CO 80015
MLS# 8880590Listed by: Compass - Denver