9184 Old Divide Drive, Colorado Springs, CO 80908

Local realty services provided by:CENTURY 21 Signature Realty
9184 Old Divide Drive,Colorado Springs, CO 80908
$499,900
  • 4 Beds
  • 3 Baths
  • 2,073 sq. ft.
  • Single family
  • Active
Listed by: tom ullrichtomrman@aol.com,303-910-8436
Office: re/max professionals
MLS#:6925855
Source:ML

Price summary

  • Price:$499,900
  • Price per sq. ft.:$241.15
  • Monthly HOA dues:$30

About this home

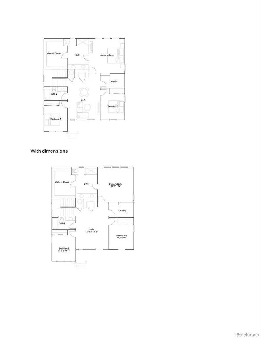
***Contact builder today about Special Financing for this home - terms and conditions apply** Available NOW!! This gorgeous Marigold 2-story in Percheron features 4 beds (3 upper / 1 main), 2 baths, great room, kitchen, loft, 2 car garage and crawlspace. Beautiful upgrades and finishes throughout including vinyl plank floors, stainless steel appliances, slab Quartz counters and more. This builder provides the latest in energy efficiency and state of the art technology with several fabulous floorplans to choose from. Energy efficiency & technology/connectivity seamlessly blended with luxury to make your new house a home. What some builders consider high-end upgrades, the builder makes a standard inclusion. This community offers single family homes for every lifestyle. Close to dining, shopping, entertainment and other amenities. Don’t wait – this community will sell out quickly! Photos and walkthrough tour are model only and subject to change.

Contact an agent

contact an agent

Yes, I would like more information. Please use and/or share my information with an independent agent affiliated with the CENTURY 21®  brand to contact me about my real estate needs. By clicking Send message, I request to be contacted by phone or text message and consent to being contacted by automated means. I understand that my consent to receive calls or texts is not a condition of purchasing any property, goods, or services. Alternatively, I understand that I can access real estate services by email or I can contact the agent myself.

If an independent agent affiliated with the CENTURY 21®  brand is not available in the area where I need assistance, I agree to be contacted by a real estate agent affiliated with another brand owned or licensed by Anywhere Real Estate (BHGRE® , Coldwell Banker® , Corcoran® , ERA® , Sotheby's International Realty® ).
 I acknowledge that I have read and agree to theTerms of useandPrivacy notice

Home facts

  • Year built:2026
  • Listing ID #:6925855

Rooms and interior

  • Bedrooms:4
  • Total bathrooms:3
  • Full bathrooms:2
  • Living area:2,073 sq. ft.

Heating and cooling

  • Cooling:Central Air
  • Heating:Forced Air, Natural Gas

Structure and exterior

  • Roof:Composition
  • Year built:2026
  • Building area:2,073 sq. ft.
  • Lot area:0.14 Acres

Schools

  • High school:Vista Ridge
  • Middle school:Sky View
  • Elementary school:Inspiration View

Utilities

  • Water:Public
  • Sewer:Public Sewer

Finances and disclosures

  • Price:$499,900
  • Price per sq. ft.:$241.15
  • Tax amount:$5,349 (2025)
MLS LogoBased on information submitted to the MLS GRID as of February 16, 2026 11:37 PM. All data is obtained from various sources and may not have been verified by broker or MLS GRID. Supplied Open House information is subject to change without notice. All information should be independently reviewed and verified for accuracy. Properties may or may not be listed by the office/agent presenting the information.