1757 W 34th Ave, Denver, CO 80211

Local realty services provided by:CENTURY 21 CapRock Real Estate
1757 W 34th Ave,Denver, CO 80211
$1,100,000
  • 0.16 Acres
  • Lots / Land
  • Active
Listed by: peter hecking
Office: 8z real estate
MLS#:6489222
Source:IRES

Price summary

  • Price:$1,100,000

About this home

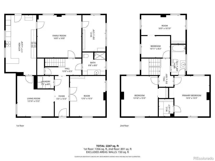
1757 W 34th Ave/3420 Quivas by appointment ONLY!!! Zoned U-TU-B Property is sold AS IS Call Peter (303)246-7383 Unique investment opportunity!! Corner double lot in highly sought after Lower Highland in Denver. (loHi) This lot has two separate dwellings. The 2-story main house facing 34th Ave has three bedrooms and two baths. It is structurally compromised and will eventually need to be rebuilt. However, because of its current location zero feet setback from the sidewalk on the Quivas Street side, remodeling while leaving certain facade walls intact might be preferable to a full teardown. The second home, formerly a grocery store, facing Quivas Street has been rented as a Corporate Housing unit. This two-bed, one-bath single-story home, approximately 1,000 sf has an open loft layout with a separate attached sun porch currently used as a second bedroom. (non conforming as it does not have a closet) Between both structures is a cobblestone-paved courtyard. The property has a

Contact an agent

contact an agent

Yes, I would like more information. Please use and/or share my information with an independent agent affiliated with the CENTURY 21®  brand to contact me about my real estate needs. By clicking Send message, I request to be contacted by phone or text message and consent to being contacted by automated means. I understand that my consent to receive calls or texts is not a condition of purchasing any property, goods, or services. Alternatively, I understand that I can access real estate services by email or I can contact the agent myself.

If an independent agent affiliated with the CENTURY 21®  brand is not available in the area where I need assistance, I agree to be contacted by a real estate agent affiliated with another brand owned or licensed by Anywhere Real Estate (BHGRE® , Coldwell Banker® , Corcoran® , ERA® , Sotheby's International Realty® ).
 I acknowledge that I have read and agree to theTerms of useandPrivacy notice

Home facts

  • Listing ID #:6489222
  • Added:1 day(s) ago
  • Updated:February 27, 2026 at 11:11 AM

Structure and exterior

  • Lot area:0.16 Acres
  • Lot Features:Level

Utilities

  • Sewer:Public Sewer

Finances and disclosures

  • Price:$1,100,000
  • Tax amount:$8,238
The real estate listing information and related content displayed on this site is provided exclusively for consumer's personal, non-commercial use and may not be used for any purpose other than to identify prospective properties consumers may be interested in purchasing. This information and related content is deemed reliable but is not guaranteed accurate by Information and Real Estate Services, LLC. Information source: Information and Real Estate Services, LLC. Provided for limited non-commercial use only under IRES Rules © Copyright IRES. The information being provided by Information and Real Estate Services is for the consumer's personal, non-commercial use and may not be used for any purpose other than to identify prospective properties consumer may be interested in purchasing. Any information relating to real estate for sale referenced on this web site comes from the Internet Data Exchange (IDX) program of the Information and Real Estate Services. This web site may reference real estate listing(s) held by a brokerage firm other than the broker and/or agent who owns this web site. The accuracy of all information, regardless of source, including but not limited to open house information, square footages and lot sizes, is deemed reliable but not guaranteed and should be personally verified through personal inspection by and/or with the appropriate professionals. The data contained herein is copyrighted by Information and Real Estate Services and is protected by all applicable copyright laws. Any unauthorized dissemination of this information is in violation of copyright laws and is strictly prohibited.