- CENTURY 21 Real Estate
- Colorado
- Denver
- 2444 S Williams Street
2444 S Williams Street, Denver, CO 80210
Local realty services provided by:CENTURY 21 Top Dog Properties
2444 S Williams Street,Denver, CO 80210
$949,000
- 0.14 Acres
- Lots / Land
- Active
Listed by: david cohendavidraycohen@gmail.com,303-526-8720
Office: alpha real estate associates llc.
MLS#:2675770
Source:ML
Price summary
- Price:$949,000
About this home
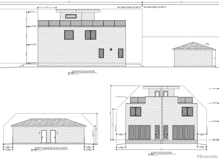
An exceptionally rare opportunity to acquire a truly build-ready lot in one of Denver’s most sought-after neighborhoods. This 6,250-square-foot parcel is zoned E-TU-C. The demo of the existing house is already complete and all of the other heavy lifting has been done. The lot is permit-ready, with extensive due diligence and preparation completed, saving a future buyer significant time, cost, and uncertainty. Included are architectural drawings, survey, soil reports, and all critical pre-construction work required to move efficiently toward permitting. Opportunities like this where a buyer can step in and build immediately rather than wait months or years are increasingly rare. The surrounding block showcases active redevelopment and luxury construction, including high-end duplex's nearby, reinforcing both the upward trajectory of values and the demand for quality new builds in the area. This is a street where modern architecture and thoughtful development are already setting the tone. Located in Harvard Gulch, this site offers the perfect blend of neighborhood charm and urban convenience. Enjoy immediate access to Harvard Gulch Park and Golf Course, tree-lined streets, and a strong sense of community all while being minutes from Wash Park, Old South Pearl, South Broadway, and some of Denver’s best dining, coffee, and boutique shopping. Easy connectivity to downtown and DTC makes this location as practical as it is desirable. Whether you’re a builder, developer, or end-user looking to create something exceptional, this is a turnkey land opportunity in a proven, high-demand neighborhood where vision can become reality without the usual delays.
Contact an agent
Home facts
- Listing ID #:2675770
Structure and exterior
- Lot area:0.14 Acres
Utilities
- Water:Public
- Sewer:Public Sewer
Finances and disclosures
- Price:$949,000
- Tax amount:$2,729 (2024)
New listings near 2444 S Williams Street
- New
$625,000Active4 beds 2 baths2,273 sq. ft.1469 Quitman St, Denver, CO 80204
MLS# 3436210Listed by: Keller Williams Advantage Realty LLC - New
$900,000Active6 beds 3 baths3,698 sq. ft.2711 S Pierce St, Denver, CO 80227
MLS# 7785098Listed by: Your Castle Real Estate Inc - Coming SoonOpen Fri, 3 to 4:30pm
$625,000Coming Soon4 beds 2 baths1469 Quitman Street, Denver, CO 80204
MLS# 3436210Listed by: KELLER WILLIAMS ADVANTAGE REALTY LLC - New
$374,900Active3 beds 4 baths1,653 sq. ft.1699 S Trenton Street #13, Denver, CO 80231
MLS# 3469913Listed by: CENTURY 21 DREAM HOME - New
$995,000Active2 beds 2 baths1,927 sq. ft.1890 Wynkoop Street #604, Denver, CO 80202
MLS# 4996111Listed by: MILEHIMODERN - Coming Soon
$900,000Coming Soon6 beds 3 baths2711 S Pierce Street, Denver, CO 80227
MLS# 7785098Listed by: YOUR CASTLE REAL ESTATE INC - New
$435,000Active2 beds 1 baths1,075 sq. ft.274 Delaware St, Denver, CO 80223
MLS# 8630659Listed by: Wisdom Real Estate - Open Sun, 12 to 2pmNew
$515,000Active3 beds 2 baths1,599 sq. ft.1236 S Clay Street, Denver, CO 80219
MLS# 2799947Listed by: RE/MAX PROFESSIONALS - New
$699,000Active4 beds 2 baths2,812 sq. ft.1905 S Kearney Way, Denver, CO 80224
MLS# 3075539Listed by: CORCORAN PERRY & CO. - New
$2,600,000Active5 beds 5 baths4,585 sq. ft.3930 W Byron Place, Denver, CO 80212
MLS# 5058964Listed by: COMPASS - DENVER