3333 W Center Ave, Denver, CO 80219

Local realty services provided by:CENTURY 21 Cornerstone
3333 W Center Ave,Denver, CO 80219
$398,000
  • 2 Beds
  • 1 Baths
  • 1,116 sq. ft.
  • Single family
  • Active
Listed by: nikolina jugovic
Office: compass - denver
MLS#:6345181
Source:IRES

Price summary

  • Price:$398,000
  • Price per sq. ft.:$356.63

About this home

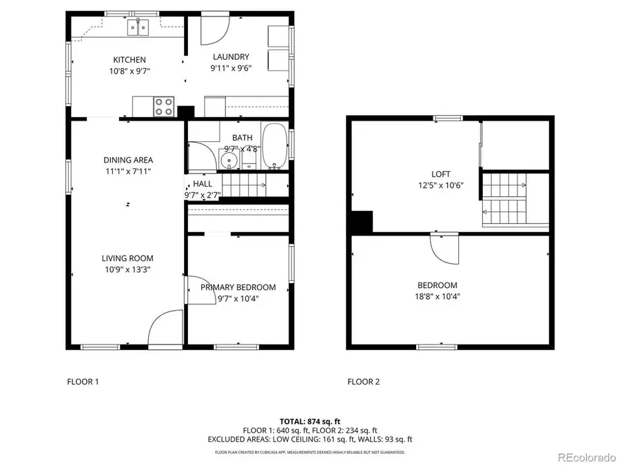
Discover a versatile and charming home at 3333 W Center Ave, offering both comfortable everyday living and compelling long-term value. This 2-bedroom, 1-bath residence features a spacious main-level living area and an additional second-floor loft, creating flexible space for a home office, guest room, creative studio, or extra living area. The home has a cute, welcoming character and a practical layout that feels cozy yet functional-ideal for buyers seeking a simple, well-scaled home with room to personalize. One of the standout features is the exceptionally large 6,650 sq ft lot, which provides a rare sense of openness and privacy for the area. The expansive yard is perfect for gardening, entertaining, pets, or simply enjoying outdoor living, while also offering future potential for expansion or additional improvements. From an investment perspective, the property generates $30,600 in gross annual income with low operating expenses of $7,452 and benefits from a reliable

Contact an agent

contact an agent

Yes, I would like more information. Please use and/or share my information with an independent agent affiliated with the CENTURY 21®  brand to contact me about my real estate needs. By clicking Send message, I request to be contacted by phone or text message and consent to being contacted by automated means. I understand that my consent to receive calls or texts is not a condition of purchasing any property, goods, or services. Alternatively, I understand that I can access real estate services by email or I can contact the agent myself.

If an independent agent affiliated with the CENTURY 21®  brand is not available in the area where I need assistance, I agree to be contacted by a real estate agent affiliated with another brand owned or licensed by Anywhere Real Estate (BHGRE® , Coldwell Banker® , Corcoran® , ERA® , Sotheby's International Realty® ).
 I acknowledge that I have read and agree to theTerms of useandPrivacy notice

Home facts

  • Year built:1938
  • Listing ID #:6345181
  • Added:47 day(s) ago
  • Updated:February 26, 2026 at 04:28 PM

Rooms and interior

  • Bedrooms:2
  • Total bathrooms:1
  • Full bathrooms:1
  • Basement Description:Crawl Space
  • Living area:1,116 sq. ft.

Heating and cooling

  • Heating:Forced Air

Structure and exterior

  • Roof:Composition
  • Year built:1938
  • Building area:1,116 sq. ft.
  • Lot area:0.15 Acres
  • Lot Features:Level, Outbuildings
  • Construction Materials:Vinyl Siding, Wood Siding
  • Levels:2 Story

Schools

  • High school:KIPP Denver Collegiate High School
  • Middle school:Strive Federal
  • Elementary school:Munroe

Utilities

  • Water:City
  • Sewer:Public Sewer

Finances and disclosures

  • Price:$398,000
  • Price per sq. ft.:$356.63
  • Tax amount:$1,889
The real estate listing information and related content displayed on this site is provided exclusively for consumer's personal, non-commercial use and may not be used for any purpose other than to identify prospective properties consumers may be interested in purchasing. This information and related content is deemed reliable but is not guaranteed accurate by Information and Real Estate Services, LLC. Information source: Information and Real Estate Services, LLC. Provided for limited non-commercial use only under IRES Rules © Copyright IRES. The information being provided by Information and Real Estate Services is for the consumer's personal, non-commercial use and may not be used for any purpose other than to identify prospective properties consumer may be interested in purchasing. Any information relating to real estate for sale referenced on this web site comes from the Internet Data Exchange (IDX) program of the Information and Real Estate Services. This web site may reference real estate listing(s) held by a brokerage firm other than the broker and/or agent who owns this web site. The accuracy of all information, regardless of source, including but not limited to open house information, square footages and lot sizes, is deemed reliable but not guaranteed and should be personally verified through personal inspection by and/or with the appropriate professionals. The data contained herein is copyrighted by Information and Real Estate Services and is protected by all applicable copyright laws. Any unauthorized dissemination of this information is in violation of copyright laws and is strictly prohibited.