6919 Juniper Drive, Thornton, CO 80602
Local realty services provided by:CENTURY 21 Trenka Real Estate
Listed by: kris cerettokris@thecerettogroup.com,720-939-0558
Office: coldwell banker realty 56
MLS#:7483401
Source:ML
Price summary
- Price:$599,950
- Price per sq. ft.:$201.46
- Monthly HOA dues:$185
About this home
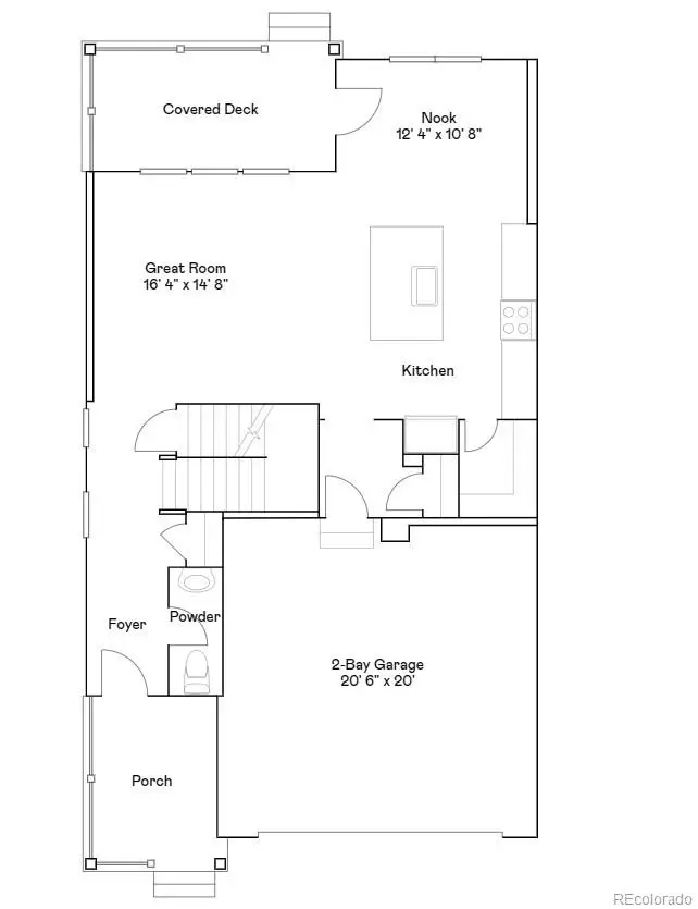
Experience contemporary living in this spacious two-story Meridian townhome, thoughtfully designed for comfort and connection. The main level showcases a chef-inspired kitchen and an airy open-concept layout that flows effortlessly into the Great Room and dining area. Step outside to a covered deck—ideal for hosting gatherings or enjoying quiet moments in the fresh air. Upstairs, three generously sized bedrooms include a luxurious owner’s suite featuring a spa-style bath and walk-in closet. A versatile loft provides space to work, play, or unwind, while the centrally located laundry room adds everyday convenience. Stylish finishes such as luxury vinyl plank flooring, quartz countertops, and an unfinished basement ready for customization complete the home’s modern appeal. Nestled in a dynamic community, residents enjoy premier shopping and dining at Denver Premium Outlets and endless recreation at Trail Winds Recreation Center—bringing lifestyle and leisure together. Contact builder for special financing.
Estimated completion: January 2026.
Contact an agent
Home facts
- Year built:2024
- Listing ID #:7483401
Rooms and interior
- Bedrooms:3
- Total bathrooms:3
- Full bathrooms:1
- Half bathrooms:1
- Living area:2,978 sq. ft.
Heating and cooling
- Cooling:Central Air
- Heating:Forced Air
Structure and exterior
- Roof:Composition
- Year built:2024
- Building area:2,978 sq. ft.
- Lot area:0.07 Acres
Schools
- High school:Riverdale Ridge
- Middle school:Roger Quist
- Elementary school:West Ridge
Utilities
- Water:Public
- Sewer:Public Sewer
Finances and disclosures
- Price:$599,950
- Price per sq. ft.:$201.46
- Tax amount:$6,517 (2024)
New listings near 6919 Juniper Drive
- Open Sat, 2 to 5pmNew
$507,900Active3 beds 3 baths1,685 sq. ft.2869 E 103rd Drive, Thornton, CO 80229
MLS# 2256626Listed by: JESUS OROZCO JR - New
$507,900Active3 beds 3 baths1,685 sq. ft.2869 E 103rd Dr, Thornton, CO 80229
MLS# 2256626Listed by: Jesus Orozco Jr - Open Sat, 2 to 5pmNew
$472,900Active2 beds 2 baths1,477 sq. ft.2909 E 103rd Drive, Thornton, CO 80229
MLS# 5036703Listed by: JESUS OROZCO JR - New
$472,900Active2 beds 2 baths1,477 sq. ft.2909 E 103rd Dr, Thornton, CO 80229
MLS# 5036703Listed by: Jesus Orozco Jr - New
$394,999Active2 beds 3 baths1,429 sq. ft.12768 Ivanhoe St, Thornton, CO 80602
MLS# 4119849Listed by: RE/MAX Alliance - New
$379,900Active4 beds 2 baths1,704 sq. ft.9171 Fir Dr, Thornton, CO 80229
MLS# 4321420Listed by: Realty Professionals LLC - New
$394,999Active2 beds 3 baths1,429 sq. ft.12768 Ivanhoe Street, Thornton, CO 80602
MLS# 4119849Listed by: RE/MAX ALLIANCE - New
$379,900Active4 beds 2 baths1,704 sq. ft.9171 Fir Drive, Thornton, CO 80229
MLS# 4321420Listed by: REALTY PROFESSIONALS LLC - New
$439,900Active3 beds 3 baths1,992 sq. ft.13004 Harrison Dr, Thornton, CO 80241
MLS# 2797337Listed by: Valor Real Estate, LLC - New
$384,900Active4 beds 4 baths1,886 sq. ft.2039 W 102nd Ave, Thornton, CO 80260
MLS# 9351967Listed by: Orchard Brokerage LLC