- CENTURY 21 Real Estate
- Colorado
- Wheat Ridge
- 3790 Fenton Street
3790 Fenton Street, Wheat Ridge, CO 80212
Local realty services provided by:CENTURY 21 Signature Realty
3790 Fenton Street,Wheat Ridge, CO 80212
$839,900
- 3 Beds
- 3 Baths
- - sq. ft.
- Single family
- Coming Soon
Listed by: laura scholtzLaura@redthomes.com,303-997-4001
Office: redt llc.
MLS#:9489519
Source:ML
Price summary
- Price:$839,900
About this home
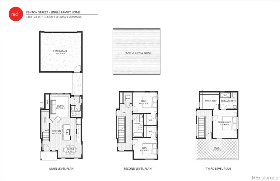
Welcome to Fenton, Wheat Ridge’s newest modern community just 6 miles from Downtown Denver! These stylish single-family homes offer open-concept layouts featuring 3 bedrooms, 2.5 bathrooms, and 1,704 sq. ft. of thoughtfully designed living space.
The main level includes a defined dining area, casual eating space, tons of natural light, and a convenient main floor powder room. West-facing orientation enhances natural light throughout the home.
Upstairs, all bedrooms feature walk-in closets, and the dedicated laundry room is conveniently located on the second level. The top level boasts a luxurious and private primary suite with expansive mountain views and an en suite bath, plus access to a roughly 170 sq. ft. deck — perfect for entertaining or relaxing while enjoying the scenery.
Additional highlights include a detached 2-car garage and a fenced private patio/yard space between the home and garage, ideal for outdoor enjoyment.
Nestled near parks, outdoor recreation, and local dining, Fenton blends small-town charm with easy access to city amenities. Perfect for young professionals, growing families, or downsizers seeking modern, low-maintenance living with excellent proximity to Downtown Denver, shopping, and green space.
Don’t miss this opportunity to own a brand-new home in Wheat Ridge!
By setting a showing on behalf of you and your client you acknowledge this property is an active construction site and proper attire is required. No open toed shoes and please remain on poured sidewalks when accessing the property.
Must wear hard hats for tours – hard hats will be on kitchen island; PLEASE MAKE SURE YOU RETURN THEM TO THE KITCHEN ISLAND WHEN FINISHED! If you have more guests to tour than there are hard hats, please take turns touring so everyone has the proper head protection available.
Contact an agent
Home facts
- Year built:2026
- Listing ID #:9489519
Rooms and interior
- Bedrooms:3
- Total bathrooms:3
- Full bathrooms:1
- Half bathrooms:1
Heating and cooling
- Cooling:Air Conditioning-Room
- Heating:Forced Air
Structure and exterior
- Roof:Membrane
- Year built:2026
Schools
- High school:Wheat Ridge
- Middle school:Everitt
- Elementary school:Stevens
Utilities
- Sewer:Public Sewer
Finances and disclosures
- Price:$839,900
- Tax amount:$1,000 (2025)
New listings near 3790 Fenton Street
- New
$839,900Active3 beds 3 baths1,704 sq. ft.3790 Fenton St, Wheat Ridge, CO 80212
MLS# 9489519Listed by: REDT LLC - Open Sat, 10am to 1pmNew
$600,000Active2 beds 1 baths2,082 sq. ft.3280 Fenton St, Wheat Ridge, CO 80212
MLS# 6644784Listed by: Heronema Homes, LLC - Coming SoonOpen Sat, 10am to 1pm
$600,000Coming Soon2 beds 1 baths3280 Fenton Street, Wheat Ridge, CO 80212
MLS# 6644784Listed by: HERONEMA HOMES, LLC - Open Sat, 1:30 to 3:30pmNew
$580,000Active3 beds 4 baths1,901 sq. ft.5189 Vivian Street, Wheat Ridge, CO 80033
MLS# 8618628Listed by: LIVE WEST REALTY - New
$479,000Active3 beds 2 baths1,012 sq. ft.7010 W 44th Ave, Wheat Ridge, CO 80033
MLS# 3513866Listed by: Trelora Realty, Inc. - New
$975,000Active5 beds 4 baths2,114 sq. ft.3860 Dudley Street, Wheat Ridge, CO 80033
MLS# 5779862Listed by: COMPASS - DENVER - New
$720,000Active5 beds 2 baths2,504 sq. ft.4730 Pierce St, Wheat Ridge, CO 80033
MLS# 4037317Listed by: EXIT Realty Denver Tech Center - Open Sat, 11am to 1pmNew
$525,000Active3 beds 2 baths1,175 sq. ft.4570 Quay Street, Wheat Ridge, CO 80033
MLS# 3156651Listed by: HOMESMART - New
$149,000Active2 beds 1 baths686 sq. ft.9380 W 49th Ave #107, Wheat Ridge, CO 80033
MLS# 3693699Listed by: West and Main Homes Inc