287 Hillstown Road, Manchester, CT 06040

Local realty services provided by:CENTURY 21 Classic Homes
287 Hillstown Road,Manchester, CT 06040
$75,000
  • 19.89 Acres
  • Lots / Land
  • Active
Listed by: peggy gregan(860) 836-0496
Office: era blanchard & rossetto(860) 646-2482
MLS#:24166772
Source:CT

Price summary

  • Price:$75,000

About this home

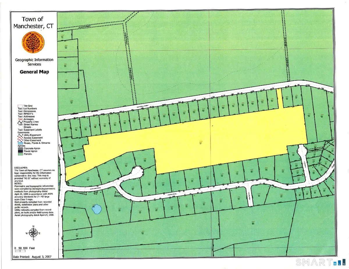
16.90 acres of open land in RR zone with 50' access at 500 Wetherell Street and access on Hillstown Road. Possibly subdividable but there are wetlands on the property. Plot plan and some schematics available but all are old. Listing agent is also the owner. Sign on property.

Contact an agent

contact an agent

Yes, I would like more information. Please use and/or share my information with an independent agent affiliated with the CENTURY 21®  brand to contact me about my real estate needs. By clicking Send message, I request to be contacted by phone or text message and consent to being contacted by automated means. I understand that my consent to receive calls or texts is not a condition of purchasing any property, goods, or services. Alternatively, I understand that I can access real estate services by email or I can contact the agent myself.

If an independent agent affiliated with the CENTURY 21®  brand is not available in the area where I need assistance, I agree to be contacted by a real estate agent affiliated with another brand owned or licensed by Anywhere Real Estate (BHGRE® , Coldwell Banker® , Corcoran® , ERA® , Sotheby's International Realty® ).
 I acknowledge that I have read and agree to theTerms of useandPrivacy notice

Home facts

  • Listing ID #:24166772
  • Added:1 day(s) ago
  • Updated:April 13, 2026 at 07:47 PM

Structure and exterior

  • Lot area:19.89 Acres
  • Lot Features:Level Lot, Some Wetlands, Treed

Schools

  • High school:Manchester
  • Elementary school:Keeney St

Utilities

  • Water:Public Water In Street

Finances and disclosures

  • Price:$75,000
  • Tax amount:$733 (July 2025-June 2026)

Features and amenities

  • Amenities:Commuter Bus, Golf Course, Library, Private School(s), Public Rec Facilities, Shopping/Mall, Walk to Bus Lines
The data relating to real estate for sale on this website appears in part through the SMARTMLS Internet Data Exchange program, a voluntary cooperative exchange of property listing data between licensed real estate brokerage firms, and is provided by SMARTMLS through a licensing agreement. Listing information is from various brokers who participate in the SMARTMLS IDX program and not all listings may be visible on the site. The property information being provided on or through the website is for the personal, non-commercial use of consumers and such information may not be used for any purpose other than to identify prospective properties consumers may be interested in purchasing. Some properties which appear for sale on the website may no longer be available because they are for instance, under contract, sold or are no longer being offered for sale. Property information displayed is deemed reliable but is not guaranteed. Copyright 2026 SmartMLS, Inc.