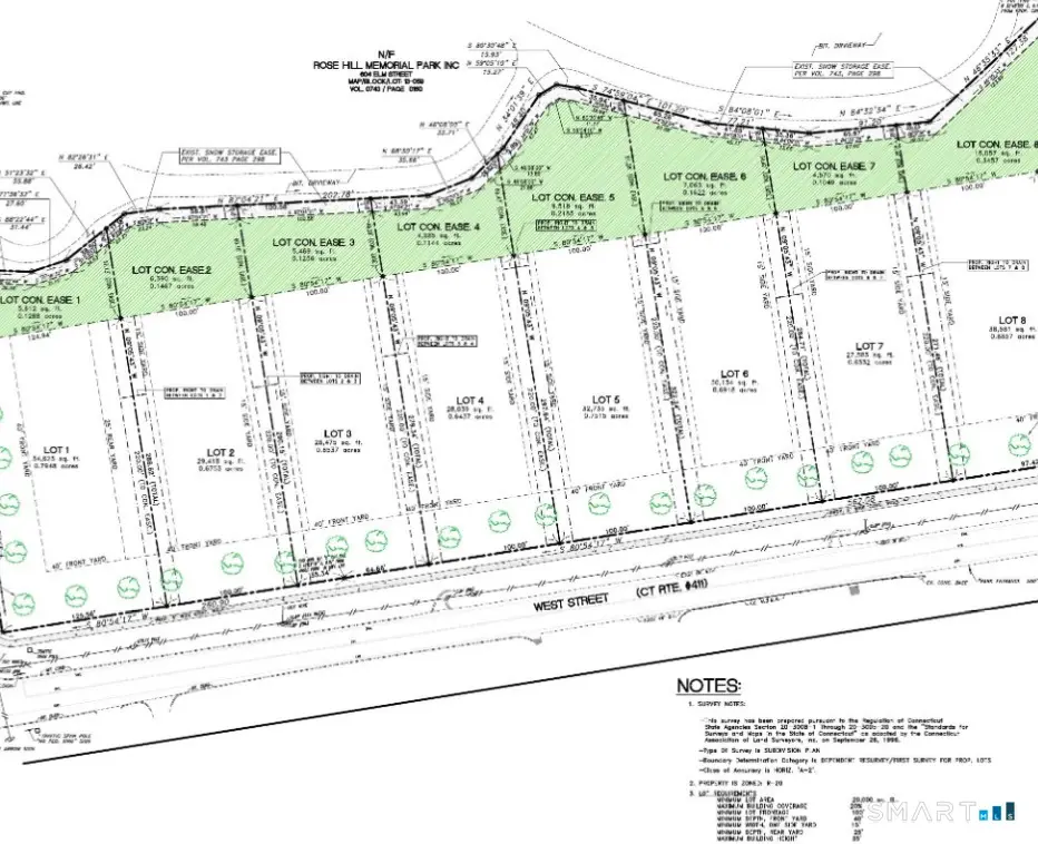
667 (lot 2) West Street, Rocky Hill, CT 06067

Local realty services provided by:CENTURY 21 Clemens Group
667 (lot 2) West Street,Rocky Hill, CT 06067
$205,000
  • 0.68 Acres
  • Lots / Land
  • Active
Listed by:
Office: century 21 clemens group(860) 563-0021
MLS#:24156736
Source:CT

Price summary

  • Price:$205,000

About this home

New to the Market - buildable lots available on West Street in Rocky Hill, between Gilbert Ave and Pearl Lane. Approved conservation subdivision of 8 lots - 4 under deposit already. Public utilities, great location, easy access to highways, shopping, restaurants, schools. Remaining lots all over 1/2 acre. Build your dream house - don't wait, these will move quickly! Taxes are an estimate based on initial subdivision, will be reevaluated at a later time.

Contact an agent

contact an agent

Yes, I would like more information. Please use and/or share my information with an independent agent affiliated with the CENTURY 21®  brand to contact me about my real estate needs. By clicking Send message, I request to be contacted by phone or text message and consent to being contacted by automated means. I understand that my consent to receive calls or texts is not a condition of purchasing any property, goods, or services. Alternatively, I understand that I can access real estate services by email or I can contact the agent myself.

If an independent agent affiliated with the CENTURY 21®  brand is not available in the area where I need assistance, I agree to be contacted by a real estate agent affiliated with another brand owned or licensed by Anywhere Real Estate (BHGRE® , Coldwell Banker® , Corcoran® , ERA® , Sotheby's International Realty® ).
 I acknowledge that I have read and agree to theTerms of useandPrivacy notice

Home facts

  • Listing ID #:24156736
  • Added:45 day(s) ago
  • Updated:April 16, 2026 at 11:33 AM

Structure and exterior

  • Lot area:0.68 Acres
  • Lot Features:Lightly Wooded, Sloping Lot

Schools

  • High school:Rocky Hill
  • Middle school:Griswold
  • Elementary school:Per Board of Ed

Utilities

  • Water:Public Water In Street

Finances and disclosures

  • Price:$205,000
  • Tax amount:$1,164 (July 2025-June 2026)
The data relating to real estate for sale on this website appears in part through the SMARTMLS Internet Data Exchange program, a voluntary cooperative exchange of property listing data between licensed real estate brokerage firms, and is provided by SMARTMLS through a licensing agreement. Listing information is from various brokers who participate in the SMARTMLS IDX program and not all listings may be visible on the site. The property information being provided on or through the website is for the personal, non-commercial use of consumers and such information may not be used for any purpose other than to identify prospective properties consumers may be interested in purchasing. Some properties which appear for sale on the website may no longer be available because they are for instance, under contract, sold or are no longer being offered for sale. Property information displayed is deemed reliable but is not guaranteed. Copyright 2026 SmartMLS, Inc.