523 Kennedy St Nw, Washington, DC 20011
Local realty services provided by:CENTURY 21 Charles Smith Agency, Inc.
523 Kennedy St Nw,Washington, DC 20011
$995,000
- - Beds
- - Baths
- 1,580 sq. ft.
- Townhouse
- Active
Listed by: shanu t okwesa
Office: equilibrium realty, llc.
MLS#:DCDC2217886
Source:BRIGHTMLS
Price summary
- Price:$995,000
- Price per sq. ft.:$629.75
About this home
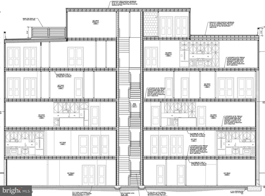
Opportunity Zone. MU-4 zoned rehab property to be delivered with stamped plans and approved permits for 7-unit buildout in Petworth on the hot Kennedy Street Corridor. Perfect for condo conversion. Approved plans are for buildout of a 5-level luxury building plus penthouse, as follows: (4) 1BR/1BA, (1) 2-level 1BR/2BA with Den and loft, (1) 2-level 2BR/2BA and (1) 2-level 3BR/2.5BA. This asset is located in an Opportunity Zone with lots of development in the area and is eligible for significant federal tax benefits for redevelopment investors. The architectural plans are available upon request.
Contact an agent
Home facts
- Year built:1923
- Listing ID #:DCDC2217886
- Added:198 day(s) ago
- Updated:March 16, 2026 at 01:41 PM
Rooms and interior
- Basement:Yes
- Basement Description:Unfinished
- Living area:1,580 sq. ft.
Structure and exterior
- Year built:1923
- Building area:1,580 sq. ft.
- Lot area:0.06 Acres
- Architectural Style:Colonial
- Construction Materials:Brick
- Levels:2 Stories
Utilities
- Water:Public
- Sewer:Public Sewer
Finances and disclosures
- Price:$995,000
- Price per sq. ft.:$629.75
- Tax amount:$30,386 (2024)
New listings near 523 Kennedy St Nw
- Coming SoonOpen Sat, 11am to 1pm
$315,000Coming Soon1 beds 1 baths1 Scott Cir Nw #106, WASHINGTON, DC 20036
MLS# DCDC2250650Listed by: COMPASS - New
$330,000Active3 beds 3 baths1,896 sq. ft.883 Barnaby St Se, WASHINGTON, DC 20032
MLS# DCDC2250310Listed by: NORTHROP REALTY - Coming SoonOpen Sun, 2 to 4pm
$524,750Coming Soon4 beds 4 baths4521 Clay St Ne, WASHINGTON, DC 20019
MLS# DCDC2249776Listed by: TTR SOTHEBY'S INTERNATIONAL REALTY - New
$179,524Active3 beds 2 baths1,539 sq. ft.1429 Girard St Nw #205, WASHINGTON, DC 20009
MLS# DCDC2250700Listed by: EXP REALTY, LLC - New
$682,500Active4 beds 3 baths1,520 sq. ft.3323 Sherman Ave Nw, WASHINGTON, DC 20010
MLS# DCDC2250606Listed by: RLAH @PROPERTIES - New
$599,000Active8 beds -- baths2,508 sq. ft.408 Newcomb St Se, WASHINGTON, DC 20032
MLS# DCDC2250686Listed by: EPIQUE REALTY - New
$629,000Active3 beds 4 baths1,480 sq. ft.1249 Owen Pl Ne, WASHINGTON, DC 20002
MLS# DCDC2250688Listed by: SIGNATURE HOME REALTY LLC - New
$700,000Active6 beds -- baths2,592 sq. ft.52 Forrester St Sw, WASHINGTON, DC 20032
MLS# DCDC2250690Listed by: BENNETT REALTY SOLUTIONS - Coming SoonOpen Sun, 11am to 1pm
$539,000Coming Soon2 beds 2 baths711 15th St Ne #4, WASHINGTON, DC 20002
MLS# DCDC2250684Listed by: SAMSON PROPERTIES - New
$2,300,000Active3 beds 3 baths2,304 sq. ft.700 New Hampshire Ave Nw #1218, WASHINGTON, DC 20037
MLS# DCDC2242322Listed by: WINSTON REAL ESTATE, INC.