161 Tranquil Mirror Lake Court #Lot 9, Clermont, FL 34711
Local realty services provided by:CENTURY 21 SUNBELT REALTY
Listed by: edward durruthy, angela durruthy
Office: resolute development group, llc.
MLS#:O6391872
Source:MFRMLS
Price summary
- Price:$2,393,268
- Price per sq. ft.:$333.14
- Monthly HOA dues:$41.67
About this home
Lakefront Home! Presenting; The Hampton by Trilogy Homes, an architecturally refined lakefront residence designed for elevated everyday living within an exclusive gated luxury home community. Perfectly positioned on Lot 9 a premier homesite offering approximately 82 feet of direct lake frontage, this property enjoys serene water views, enhanced privacy, and a rare connection to natural beauty—creating an extraordinary setting for a custom home of distinction.
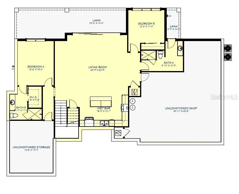
Thoughtfully composed and spanning 4,450 sq ft of conditioned living space (over 7,100 sq ft total), The Hampton blends architectural presence with warmth, comfort, and intentional design. Layered natural light, balanced proportions, and seamless indoor–outdoor transitions create a residence that feels both elegant and effortless. The main floor features the primary suite, a grand great room, designer kitchen with an expansive island and walk-in pantry, dedicated dining room, two additional bedrooms, a full bath, powder room, laundry room, and an oversized garage. Covered and uncovered balcony spaces extend the living experience outdoors, capturing elevated lake views and providing exceptional space for relaxation or entertainment.
The lakefront lower level includes two additional bedrooms and a full bath, a powder bath, and a spacious secondary living room with a built-in wet bar—ideal for gatherings, hosting guests, or multigenerational living. Multiple lanai areas provide direct access to the lakeside environment and future poolside living opportunities. A substantial unairconditioned shop and expansive storage areas add meaningful flexibility for hobbies, recreation, or specialty storage needs. Designed with adaptability in mind, Trilogy Homes offers opportunities to personalize The Hampton while maintaining its timeless architectural integrity.
Situated within Mirror Lake, an intimate gated community of just 21 homesites, residents enjoy an uncommon pairing of lakefront serenity and wide-open golf course vistas from the adjacent Clermont National Golf Course. The setting offers privacy, exclusivity, and a lifestyle defined by natural beauty and homes with architectural distinction. This exceptional lot and custom designed home present a rare opportunity to build a luxury residence in one of Central Florida’s most captivating lakefront enclaves, offering privacy, exclusivity, and a thoughtful architectural vision. More than a place to live, Mirror Lake is a retreat for those who appreciate distinction, natural beauty, and a lifestyle designed with intention and differentiation. Close to all things but miles away in Lifestyle, this unique homesite is one of the most captivating sites in Mirror Lake—offering a timeless setting and an extraordinary canvas for your custom home. Call us to reserve this extraordinary lot while you meet with Trilogy Homes to explore this home design further and take next steps to making Mirror Lake your “Dream Home Come True!" There may be additional design fees from the Builder if the offered Home design is materially changed by Buyer....
Contact an agent
Home facts
- Year built:2027
- Listing ID #:O6391872
- Added:49 day(s) ago
- Updated:May 16, 2026 at 12:20 PM
Rooms and interior
- Bedrooms:5
- Total bathrooms:5
- Full bathrooms:4
- Half bathrooms:1
- Flooring:Tile
- Dining Description:Eat In Kitchen
- Kitchen Description:Dishwasher, Eat-in Kitchen, Microwave, Range, Refrigerator
- Living area:4,450 sq. ft.
Heating and cooling
- Cooling:Central Air
- Heating:Electric
- Central air:Yes
Structure and exterior
- Roof:Tile
- Year built:2027
- Building area:4,450 sq. ft.
- Lot area:0.32 Acres
- Construction Materials:Block
- Foundation Description:Slab
- Levels:2 Story
Schools
- High school:Lake Minneola High
- Middle school:East Ridge Middle
- Elementary school:Grassy Lake Elementary
Utilities
- Water:Public, Water Available
- Sewer:Private Sewer
Finances and disclosures
- Price:$2,393,268
- Price per sq. ft.:$333.14
- Tax amount:$3,002 (2025)
Features and amenities
- Appliances:Dishwasher, Microwave, Range, Refrigerator
- Laundry features:Inside
- Amenities:Eat-in Kitchen, Electricity Available, Gated, Natural Gas Available, Open Floorplan
- Pool features:Above Ground, Private Pool
Parking
- Parking description:Attached Garage
- Garage:Yes
- Garage spaces:2
New listings near 161 Tranquil Mirror Lake Court #Lot 9
- New
$395,900Active3 beds 2 baths1,873 sq. ft.2207 Stonebridge Way, CLERMONT, FL 34711
MLS# G5112320Listed by: WATSON REALTY CORP., REALTORS - New
$799,900Active5 beds 5 baths4,440 sq. ft.3367 Hanging Tide Street, WINTER GARDEN, FL 34787
MLS# O6408299Listed by: GECKO REALTY, INC - New
$459,900Active4 beds 3 baths2,434 sq. ft.2875 Beaver Ridge Loop, Clermont, FL 34711
MLS# 1226469Listed by: CALNAN REAL ESTATE - New
$379,000Active4 beds 2 baths1,247 sq. ft.10652 Crescendo Loop, CLERMONT, FL 34711
MLS# O6408223Listed by: HOMEVEST REALTY - Open Sat, 11am to 2pmNew
$495,000Active5 beds 3 baths2,682 sq. ft.1780 Nature Cove Lane, CLERMONT, FL 34711
MLS# G5112333Listed by: OPTIMA ONE REALTY, INC. - New
$381,840Active3 beds 3 baths1,873 sq. ft.3220 Namaste Drive, CLERMONT, FL 34714
MLS# O6408209Listed by: LENNAR REALTY - New
$457,690Active4 beds 3 baths1,847 sq. ft.4592 Orchard View Alley, CLERMONT, FL 34714
MLS# O6408291Listed by: PULTE REALTY OF NORTH FLORIDA LLC - New
$405,000Active4 beds 2 baths2,091 sq. ft.3143 Rawcliffe Road, CLERMONT, FL 34714
MLS# S5149304Listed by: EXP REALTY LLC - New
$458,990Active4 beds 3 baths1,823 sq. ft.6048 Balance Way, CLERMONT, FL 34714
MLS# O6408194Listed by: LENNAR REALTY - New
$360,490Active3 beds 3 baths1,689 sq. ft.3236 Namaste Drive, CLERMONT, FL 34714
MLS# O6408215Listed by: LENNAR REALTY