169 Tranquil Mirror Lake Court #Lot 7, Clermont, FL 34711
Local realty services provided by:CENTURY 21 Selling Paradise
Listed by: edward durruthy, angela durruthy
Office: resolute development group, llc.
MLS#:O6391722
Source:MFRMLS
Price summary
- Price:$2,721,250
- Price per sq. ft.:$488.55
- Monthly HOA dues:$41.67
About this home
Introducing a premier LAKEFRONT elevated homesite within an exclusive gated luxury community. With expansive views across serene natural landscapes and tranquil water, this homesite truly stands out. Its higher position on the lake provides a rare vantage point, enhancing privacy while capturing sweeping panoramas and the charm of an active orange grove across the water. With approximately 90 feet of direct lake frontage and 90 feet of street frontage, the lot provides a generous and flexible building envelope suitable for a range of architectural expressions.
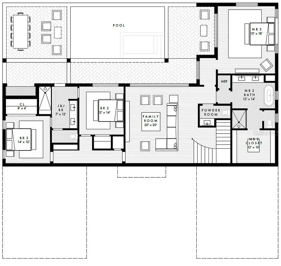
Designed as a refined retreat for elevated everyday living, the proposed 4,990 sq ft Nottingham residence blends architectural presence with warmth, comfort, and intentional design. Thoughtfully composed living spaces, curated materials, and layered natural light create a home that feels both elegant and effortless. The floor plan is intentionally adaptable, offering options for additional bedrooms, expanded garage capacity, and enhanced outdoor living environments while maintaining timeless craftsmanship.
The main floor includes the Primary suite, office/bonus room, 2 full baths, living room, kitchen and pantry, dining room, laundry, and a 2-car garage. The lower lakefront level includes 3 additional bedrooms and 2 additional baths, a powder room, and dedicated poolside living, ideal for entertaining or multi-generational living.
Situated within Mirror Lake, an intimate gated community of just 21 homesites, residents enjoy an uncommon pairing of lakefront serenity and wide-open golf course vistas from the adjacent Clermont National Golf Course. The setting offers privacy, exclusivity, and a lifestyle defined by natural beauty and architectural distinction.
This exceptional lot and custom designed home present a rare opportunity to build a luxury residence in one of Central Florida’s most captivating lakefront enclaves, offering privacy, exclusivity, and a thoughtful architectural vision. More than a place to live, Mirror Lake is a retreat for those who appreciate distinction, natural beauty, and a lifestyle designed with intention and differentiation. Close to all things but miles away in Lifestyle, this unique homesite is one of the most captivating sites in Mirror Lake —offering a timeless setting and an extraordinary canvas for your custom home. Call us to reserve this extraordinary Lot while you meet with MAREA Homes to explore this home design further and take next steps to making Mirror Lake your "Dream Home Come True!" There may be additional design fees from the Builder if the offered Home design is materially changed by Buyer....
Contact an agent
Home facts
- Year built:2027
- Listing ID #:O6391722
- Added:53 day(s) ago
- Updated:May 16, 2026 at 11:54 AM
Rooms and interior
- Bedrooms:4
- Total bathrooms:5
- Full bathrooms:4
- Half bathrooms:1
- Flooring:Tile
- Dining Description:Eat In Kitchen, Living Room/Dining Room Combo
- Kitchen Description:Dishwasher, Eat-in Kitchen, Microwave, Range, Refrigerator
- Bedroom Description:Walk-In Closet(s)
- Living area:4,990 sq. ft.
Heating and cooling
- Cooling:Central Air
- Heating:Electric
- Central air:Yes
Structure and exterior
- Roof:Shingle
- Year built:2027
- Building area:4,990 sq. ft.
- Lot area:0.3 Acres
- Construction Materials:Block
- Exterior Features:Outdoor Kitchen
- Foundation Description:Slab
- Levels:2 Story
Schools
- High school:Lake Minneola High
- Middle school:East Ridge Middle
- Elementary school:Grassy Lake Elementary
Utilities
- Water:Public, Water Available
- Sewer:Private Sewer, Sewer Available
Finances and disclosures
- Price:$2,721,250
- Price per sq. ft.:$488.55
- Tax amount:$3,002 (2025)
Features and amenities
- Appliances:Dishwasher, Microwave, Range, Refrigerator
- Laundry features:Inside
- Amenities:Eat-in Kitchen, Electricity Available, Gated, Living Room/Dining Room Combo, Open Floorplan, Walk-In Closet(s)
- Pool features:In Ground, Private Pool
Parking
- Parking description:Attached Garage
- Garage:Yes
- Garage spaces:2
New listings near 169 Tranquil Mirror Lake Court #Lot 7
- New
$395,900Active3 beds 2 baths1,873 sq. ft.2207 Stonebridge Way, CLERMONT, FL 34711
MLS# G5112320Listed by: WATSON REALTY CORP., REALTORS - New
$799,900Active5 beds 5 baths4,440 sq. ft.3367 Hanging Tide Street, WINTER GARDEN, FL 34787
MLS# O6408299Listed by: GECKO REALTY, INC - New
$459,900Active4 beds 3 baths2,434 sq. ft.2875 Beaver Ridge Loop, Clermont, FL 34711
MLS# 1226469Listed by: CALNAN REAL ESTATE - New
$379,000Active4 beds 2 baths1,247 sq. ft.10652 Crescendo Loop, CLERMONT, FL 34711
MLS# O6408223Listed by: HOMEVEST REALTY - Open Sat, 11am to 2pmNew
$495,000Active5 beds 3 baths2,682 sq. ft.1780 Nature Cove Lane, CLERMONT, FL 34711
MLS# G5112333Listed by: OPTIMA ONE REALTY, INC. - New
$381,840Active3 beds 3 baths1,873 sq. ft.3220 Namaste Drive, CLERMONT, FL 34714
MLS# O6408209Listed by: LENNAR REALTY - New
$457,690Active4 beds 3 baths1,847 sq. ft.4592 Orchard View Alley, CLERMONT, FL 34714
MLS# O6408291Listed by: PULTE REALTY OF NORTH FLORIDA LLC - New
$405,000Active4 beds 2 baths2,091 sq. ft.3143 Rawcliffe Road, CLERMONT, FL 34714
MLS# S5149304Listed by: EXP REALTY LLC - New
$458,990Active4 beds 3 baths1,823 sq. ft.6048 Balance Way, CLERMONT, FL 34714
MLS# O6408194Listed by: LENNAR REALTY - New
$360,490Active3 beds 3 baths1,689 sq. ft.3236 Namaste Drive, CLERMONT, FL 34714
MLS# O6408215Listed by: LENNAR REALTY