3040 Kensington Avenue, Davenport, FL 33837

Local realty services provided by:CENTURY 21 SUNBELT REALTY
3040 Kensington Avenue,Davenport, FL 33837
$800,000
  • 4 Beds
  • 4 Baths
  • - sq. ft.
  • Single family
  • Sold
Listed by: matthew brown
Office: abd realty, inc.
MLS#:O6373000
Source:MFRMLS

Sorry, we are unable to map this address


Price summary

  • Price:$800,000
  • Monthly HOA dues:$146.67

About this home

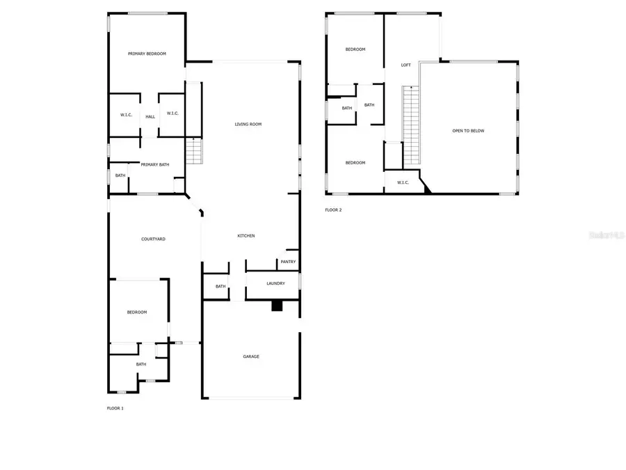
The Santa Barbara is our newest floorplan and it's sure to be one of our most popular. This home combines all of the greatest elements of the classic ABD courtyard with the space to build a golf-front pool in the rear. The moment you walk through the front door into the spacious courtyard, you will know that this home is unique in this market. The spacious casita is perfect for a home office or in-law suite. Once inside, you will marvel at the gourmet kitchen and soaring 20' ceilings. This contemporary show stopper will look good on your instagram! The living space opens to a gigantic rear lanai that is perfect for entertaining - complete with a pre-plumb and prewire for outdoor kitchen. The primary bedroom sits on the first floor, and bedrooms two and three are a short climb up the stairs, along with a spacious loft and scenic balcony looking out on the 11th hole of the golf course. This home is the pinnacle of luxury Florida living. Call us today!

Contact an agent

contact an agent

Yes, I would like more information. Please use and/or share my information with an independent agent affiliated with the CENTURY 21®  brand to contact me about my real estate needs. By clicking Send message, I request to be contacted by phone or text message and consent to being contacted by automated means. I understand that my consent to receive calls or texts is not a condition of purchasing any property, goods, or services. Alternatively, I understand that I can access real estate services by email or I can contact the agent myself.

If an independent agent affiliated with the CENTURY 21®  brand is not available in the area where I need assistance, I agree to be contacted by a real estate agent affiliated with another brand owned or licensed by Anywhere Real Estate (BHGRE® , Coldwell Banker® , Corcoran® , ERA® , Sotheby's International Realty® ).
 I acknowledge that I have read and agree to theTerms of useandPrivacy notice

Home facts

  • Year built:2025
  • Listing ID #:O6373000
  • Added:48 day(s) ago
  • Updated:March 02, 2026 at 07:40 AM

Rooms and interior

  • Bedrooms:4
  • Total bathrooms:4
  • Full bathrooms:3
  • Half bathrooms:1
  • Flooring:Tile, Wood
  • Dining Description:Eat In Kitchen
  • Kitchen Description:Built-In Oven, Cooktop, Dishwasher, Disposal, Eat-in Kitchen, Kitchen/Family Room Combo, Microwave, Range Hood, Solid Surface Counters
  • Bedroom Description:High Ceilings, Walk-In Closet(s)

Heating and cooling

  • Cooling:Central Air
  • Heating:Central

Structure and exterior

  • Roof:Tile
  • Year built:2025
  • Lot Features:Landscaped, Level, Near Golf Course, On Golf Course, Paved, Private, Sidewalk
  • Architectural Style:Contemporary
  • Construction Materials:Block, Stone, Stucco
  • Exterior Features:Covered Porch/Patio, Rear Porch, Sidewalk, Sprinkler Metered
  • Foundation Description:Slab
  • Levels:2 Story

Utilities

  • Water:Water Connected
  • Sewer:Public Sewer, Sewer Connected

Finances and disclosures

  • Price:$800,000
  • Tax amount:$2,684 (2025)

Features and amenities

  • Appliances:Built-in Oven, Cooktop, Dishwasher, Disposal, Irrigation Equipment, Microwave, Range Hood
  • Laundry features:Inside
  • Amenities:BB/HS Internet Available, Basketball Court, Cable Available, Cathedral Ceiling(s), Clubhouse, Crown Molding, Eat-in Kitchen, Fitness Center, Gated, High Ceilings, Irrigation Equipment, Kitchen/Family Room Combo, Open Floorplan, Phone Available, Pickleball Court(s), Playground, Pool, Smart Home, Solid Surface Counters, Tennis Court(s), Underground Utilities, Vaulted Ceiling(s), Walk-In Closet(s)
  • Pool features:Pool, Public Pool
MLS LogoThe information being provided by Stellar Mls is for the consumer's personal, non-commercial use and may not be used for any purpose other than to identify prospective properties consumer may be interested in purchasing. Any information relating to real estate for sale referenced on this web site comes from the Internet Data Exchange (IDX) program of the Stellar Mls. CENTURY 21 SUNBELT REALTY is not a Multiple Listing Service (MLS), nor does it offer MLS access. This website is a service of CENTURY 21 SUNBELT REALTY, a broker participant of Stellar Mls. This web site may reference real estate listing(s) held by a brokerage firm other than the broker and/or agent who owns this web site. The accuracy of all information, regardless of source, including but not limited to open house information, square footages and lot sizes, is deemed reliable but not guaranteed and should be personally verified through personal inspection by and/or with the appropriate professionals. The data contained herein is copyrighted by Stellar Mls and is protected by all applicable copyright laws. Any unauthorized dissemination of this information is in violation of copyright laws and is strictly prohibited. Properties in listings may have been sold or may no longer be available. Copyright 2026 Stellar Mls. All rights reserved.