19189 SW 29th Street, Dunnellon, FL 34432
Local realty services provided by:CENTURY 21 North East
19189 SW 29th Street,Dunnellon, FL 34432
$362,500
- 3 Beds
- 2 Baths
- 1,600 sq. ft.
- Farm
- Pending
Listed by: marg watson
Office: fiv realty co florida llc.
MLS#:OM713613
Source:MFRMLS
Price summary
- Price:$362,500
- Price per sq. ft.:$226.56
About this home
Escape to peace, privacy, and possibilities — just minutes from Ocala’s world-class equestrian venues. Tucked behind a gated entrance and surrounded by beautiful old live oaks, this 5.5-acre A1-zoned property offers the perfect balance of rural tranquility and convenient access. The land is perimeter fenced, and the paved private driveway leads you back to a serene setting that feels miles away from everything. A spring-fed pond adds to the natural beauty and creates a quiet, relaxing backdrop.
As a smart investment opportunity for investors, this property delivers immediate value with an existing rental in place, two homes, and multiple infrastructure improvements already completed. With A1 zoning, proximity to WEC and HITS, and high demand for seasonal equestrian rentals, this is a rare opportunity to generate income now while building long-term equity in one of Florida’s fastest-growing equestrian markets.
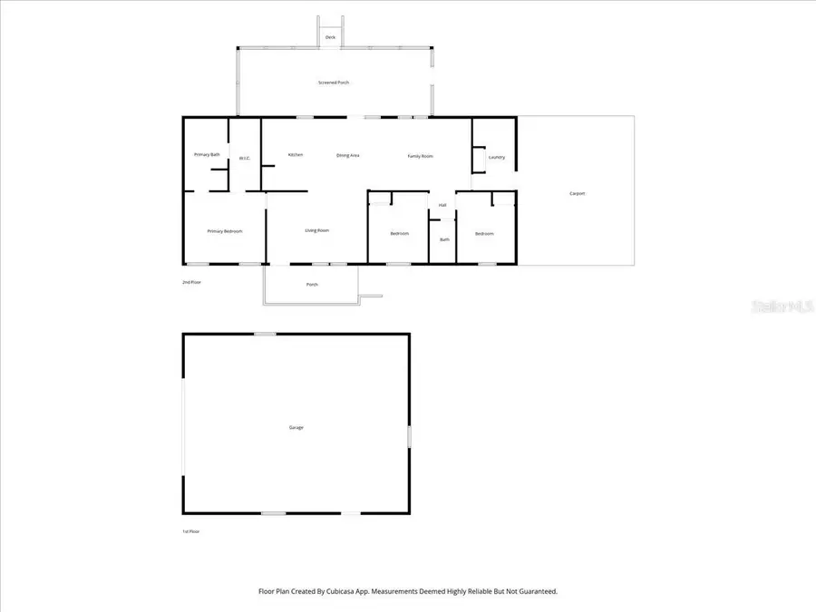
The main residence is a well-maintained and move in ready with an approximately 1,700 square-foot manufactured home featuring a new roof and a newer HVAC system. The second home is an 800-square-foot mobile home, also with a new roof and newer HVAC, and is currently rented, providing immediate income for the new owner. The property is further improved with two wells, two septic systems, and two electric meters offering added functionality and flexibility. This setup is ideal for multigenerational living, staff housing, seasonal guests, or passive rental revenue.
A large 1,200-square-foot detached garage offers exceptional storage for equipment, vehicles, tack, tools, or workshop needs. There is also another small building with electricity that can be used as a hobby room. With A1 zoning and plenty of open space, this property is ideal for horses, agricultural use, or just your own private setting surrounded by nature.
Location, location! The property is just 13 miles from the World Equestrian Center and 15 miles from HITS, making it a fantastic seasonal base or full-time residence for equestrians. Shopping, dining, and conveniences are accessible within minutes, yet the property retains a calm and peaceful feel.
Whether you are seeking a private retreat, an equestrian property, an investment with built-in rental income, or land with room to grow, this property offers a rare combination of acreage, improvements, and proximity. This is quiet country living with access to one of the most popular equestrian regions in the country.
Property is being “sold as is.”
Contact an agent
Home facts
- Year built:2005
- Listing ID #:OM713613
- Added:25 day(s) ago
- Updated:December 15, 2025 at 08:39 AM
Rooms and interior
- Bedrooms:3
- Total bathrooms:2
- Full bathrooms:2
- Living area:1,600 sq. ft.
Heating and cooling
- Cooling:Central Air
- Heating:Heat Pump
Structure and exterior
- Roof:Metal
- Year built:2005
- Building area:1,600 sq. ft.
- Lot area:5.5 Acres
Schools
- High school:Dunnellon High School
- Middle school:Dunnellon Middle School
- Elementary school:Romeo Elementary School
Utilities
- Water:Well
- Sewer:Septic Tank
Finances and disclosures
- Price:$362,500
- Price per sq. ft.:$226.56
- Tax amount:$1,745 (2024)
New listings near 19189 SW 29th Street
- New
$235,000Active3 beds 2 baths1,475 sq. ft.94448 N Zella Point, Dunnellon, FL 34433
MLS# 850654Listed by: MIAMI LEASING OFFICE - New
$3,600,000Active5 beds 4 baths6,040 sq. ft.11685 E Blue Cove Drive, DUNNELLON, FL 34432
MLS# OM715071Listed by: MEEK REAL ESTATE SALES, LLC - New
$649,900Active3 beds 2 baths1,616 sq. ft.5930 W Knoxville Lane, DUNNELLON, FL 34433
MLS# OM715073Listed by: HOMES TO RANCHES REALTY INC - New
$26,000Active1.25 AcresSW 158 Lane, DUNNELLON, FL 34432
MLS# OM715004Listed by: GAILEY ENTERPRISES REAL ESTATE - New
$25,000Active0.23 Acres6248 N Hobson Terrace, DUNNELLON, FL 34433
MLS# A4675228Listed by: MICHAEL SIKORSKI & COMPANY - New
$248,900Active3 beds 2 baths1,380 sq. ft.4281 SW Gardenia Court, DUNNELLON, FL 34431
MLS# OM714971Listed by: OCALA HOMES AND FARMS - New
$429,000Active3 beds 2 baths2,238 sq. ft.18964 SW 93rd Loop, DUNNELLON, FL 34432
MLS# OM715031Listed by: KELLER WILLIAMS CORNERSTONE RE - New
$71,998Active2.31 Acres0 SW 178th Terrace, DUNNELLON, FL 34432
MLS# TB8455648Listed by: AGILE GROUP REALTY - New
$549,000Active3 beds 2 baths1,914 sq. ft.7724 W Sunmar Sample Lane, Dunnellon, FL 34433
MLS# 850504Listed by: RE/MAX REALTY ONE - New
$449,000Active4 beds 4 baths2,836 sq. ft.5475 SW 194th Avenue, DUNNELLON, FL 34432
MLS# OM714733Listed by: COLDWELL REALTY SOLD GUARANTEE