5713 Lagoon Cruise Way, Jacksonville, FL 32234
Local realty services provided by:CENTURY 21 Lighthouse Realty
5713 Lagoon Cruise Way,Jacksonville, FL 32234
$348,990
- 3 Beds
- 3 Baths
- 2,294 sq. ft.
- Single family
- Active
Listed by: nancy pruitt
Office: olympus executive realty, inc
MLS#:2133681
Source:JV
Price summary
- Price:$348,990
- Price per sq. ft.:$122.2
- Monthly HOA dues:$100
About this home
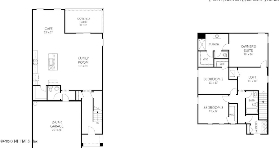
The Thornton floor plan strikes the ideal balance between private retreats and open living spaces. On the second floor, you'll find the primary bedroom along with two additional bedrooms and a flexible loft area. The first floor is designed for both relaxation and entertaining, featuring a spacious great room that flows seamlessly into the dining area. The kitchen overlooks a cozy café area, perfect for casual meals. With 3 bedrooms, 2 baths, a 2-car garage, and a covered patio, this home offers comfort and style in every corner.
Photos are representative of a Thornton Floorplan**
Contact an agent
Home facts
- Year built:2026
- Listing ID #:2133681
- Added:48 day(s) ago
- Updated:April 24, 2026 at 12:48 PM
Rooms and interior
- Bedrooms:3
- Total bathrooms:3
- Full bathrooms:2
- Half bathrooms:1
- Rooms Total:9
- Flooring:carpet, tile
- Bathrooms Description:Primary Bathroom - Shower No Tub
- Kitchen Description:Breakfast Bar, Disposal, Microwave, Pantry
- Bedroom Description:Split Bedrooms
- Living area:2,294 sq. ft.
Heating and cooling
- Cooling:Central Air, Electric
- Heating:Central, Heat Pump
- Central air:Yes
Structure and exterior
- Roof:Shingle
- Year built:2026
- Building area:2,294 sq. ft.
- Architectural Style:Traditional
- Construction Materials:Fiber Cement, Wood Siding
- Exterior Features:Covered
Schools
- High school:Baldwin
- Middle school:Baldwin
- Elementary school:Mamie Agnes Jones
Utilities
- Water:Public, Water Available
- Sewer:Public Sewer, Sewer Available
Finances and disclosures
- Price:$348,990
- Price per sq. ft.:$122.2
- Tax amount:$500 (2024)
Features and amenities
- Amenities:Beach Access, Breakfast Bar, Clubhouse, Gated, Jogging Path, Playground, Split Bedrooms, Walk-In Closet(s)
Parking
- Parking description:Attached
- Garage:Yes
- Garage spaces:2
New listings near 5713 Lagoon Cruise Way
- New
$356,490Active4 beds 3 baths1,558 sq. ft.9729 Topaz Lane, Jacksonville, FL 32257
MLS# 2141716Listed by: LENNAR REALTY INC - New
$212,000Active3 beds 2 baths1,220 sq. ft.8135 Firetower Road, Jacksonville, FL 32210
MLS# 2141718Listed by: JWB REALTY LLC - New
$269,989Active3 beds 3 baths1,717 sq. ft.6962 Golden Monarch Avenue, Jacksonville, FL 32217
MLS# 2141719Listed by: LENNAR REALTY INC - Open Sun, 1 to 3pmNew
$529,000Active3 beds 3 baths1,861 sq. ft.5478 Mariners Cove Drive, Jacksonville, FL 32210
MLS# 2141720Listed by: LOKATION - New
$237,000Active3 beds 2 baths1,196 sq. ft.5582 Longspur Court, Jacksonville, FL 32219
MLS# 2141722Listed by: JWB REALTY LLC - New
$499,000Active5 beds 3 baths3,809 sq. ft.10917 Dancing Rabbit Lane, Jacksonville, FL 32210
MLS# 2141713Listed by: CHRISTIE'S INTERNATIONAL REAL ESTATE FIRST COAST - New
$399,000Active3 beds 3 baths2,023 sq. ft.11064 Castlemain E Circle, Jacksonville, FL 32256
MLS# 2140852Listed by: BERKSHIRE HATHAWAY HOMESERVICES FLORIDA NETWORK REALTY - New
$371,000Active3 beds 2 baths1,737 sq. ft.1829 Ashmore Green Drive, Jacksonville, FL 32246
MLS# 2141709Listed by: CENTURY 21 LIGHTHOUSE REALTY - Open Sat, 12 to 3pmNew
$399,000Active3 beds 2 baths1,738 sq. ft.9873 Kevin Road, Jacksonville, FL 32257
MLS# 2140975Listed by: BERKSHIRE HATHAWAY HOMESERVICES FLORIDA NETWORK REALTY - New
$679,000Active4 beds 3 baths2,655 sq. ft.4848 Charles Bennett Drive, Jacksonville, FL 32225
MLS# 2141696Listed by: COLDWELL BANKER VANGUARD REALTY