149 W Wilbur Avenue #109, Lake Mary, FL 32746
Local realty services provided by:CENTURY 21 Circle
149 W Wilbur Avenue #109,Lake Mary, FL 32746
$449,999
- 3 Beds
- 2 Baths
- 1,396 sq. ft.
- Condominium
- Active
Listed by: laura diss
Office: q boutique specialty realty inc
MLS#:O6379525
Source:MFRMLS
Price summary
- Price:$449,999
- Price per sq. ft.:$273.72
- Monthly HOA dues:$285
About this home
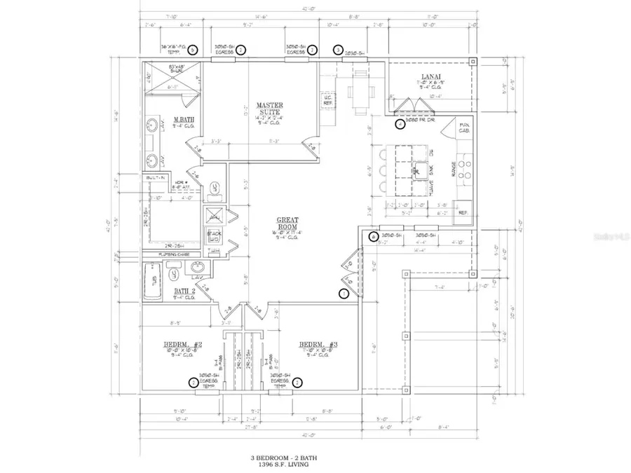
WOW! New downtown Lake Mary luxury condominium to be built! THREE-BEDROOM DOWNSTAIRS END UNIT on the corner of 4th Street, available now. Two blocks from the shops and restaurants on 4th Street, Lakeview Ave, and Country Club Rd. Enjoy easy access to the weekend Farmers ' Market, events in Central Park, and City Hall. Your home is one block from the Pickleball Court on Country Club, Events Center, and the new Playground. Quick drive to Sanford International Airport, local hospital systems, and the business districts of International Parkway at Heathrow and Colonial TownPark. SunRail is a few blocks away, no car needed. This condo is 1,396 square feet and comes standard with luxury finishes, kitchen appliances, windows with blinds in the glass, an optional butler pantry, an optional wine bar or coffee station, a French hood, a side covered patio, and a private storage closet for easy access to bikes and holiday decorations. Assigned parking, a park-like setting, and EV charging are available. Upgrade your interior aesthetic - three different curated interiors designed by Madison Snyder Design Co. She has crafted custom paint palettes, creating a modern, fresh feel, with beautiful light fixtures, undercabinet lighting, and options for flooring that include herringbone wood floors, wide vinyl planks, and ceramic tiles. Coordinate your kitchen cabinets with beautiful solid-slab granite, herringbone tile, or natural stone backsplashes. Our signature oversized kitchen islands feature extended overhangs and pedestal legs, designed for island-top dining. The oversized walk-in primary shower features an optional ombre mosaic tile, toiletry niches, and dual showerheads for a spa-like experience. Upgrade the walk-in primary closet with an optional closet system. Extra windows provide a beautiful sundrenched environment, and the second-floor units have private balconies overlooking the treetops, and the first-floor homes have covered patios. Delivery estimated for around December 2026. Call to schedule your private sales consultation today....
Contact an agent
Home facts
- Year built:2026
- Listing ID #:O6379525
- Added:56 day(s) ago
- Updated:April 15, 2026 at 12:53 PM
Rooms and interior
- Bedrooms:3
- Total bathrooms:2
- Full bathrooms:2
- Flooring:Ceramic Tile, Linoleum, Luxury Vinyl
- Kitchen Description:Dishwasher, Kitchen/Family Room Combo, Range Hood, Refrigerator
- Bedroom Description:Split Bedroom, Walk-In Closet(s)
- Living area:1,396 sq. ft.
Heating and cooling
- Cooling:Central Air
- Heating:Electric
- Central air:Yes
Structure and exterior
- Roof:Tile
- Year built:2026
- Building area:1,396 sq. ft.
- Lot area:0.35 Acres
- Lot Features:Landscaped, Level, Near Public Transit, Paved, Sidewalk
- Architectural Style:Contemporary, Mediterranean
- Construction Materials:Metal Frame, Stucco
- Exterior Features:Covered Porch/Patio, Patio, Rain Gutters, Side Porch, Sidewalk
- Foundation Description:Slab
- Levels:1 Story
Utilities
- Sewer:Public Sewer
Finances and disclosures
- Price:$449,999
- Price per sq. ft.:$273.72
- Tax amount:$1,011 (2025)
Features and amenities
- Appliances:Dishwasher, Electric Water Heater, Irrigation Equipment, Range Hood, Refrigerator, Solar Hot Water
- Laundry features:Laundry Closet
- Amenities:BB/HS Internet Available, Crown Molding, Fiber Optics, Irrigation Equipment, Kitchen/Family Room Combo, Split Bedroom, Walk-In Closet(s)
- Pool features:Public Pool
Parking
- Parking description:Alley Access, Assigned, Ground Level, On Street
New listings near 149 W Wilbur Avenue #109
- New
$143,000Active1 beds 1 baths674 sq. ft.2605 Grassy Point Drive #205, LAKE MARY, FL 32746
MLS# O6397833Listed by: BLUE CANVAS REALTY LLC - New
$477,500Active4 beds 3 baths1,949 sq. ft.353 Lakebreeze Circle, LAKE MARY, FL 32746
MLS# O6399208Listed by: SIMPLICITY: A RE BROKERAGE CO - New
$398,000Active3 beds 2 baths1,550 sq. ft.2547 Abacus Court, LAKE MARY, FL 32746
MLS# O6398938Listed by: CHARLES RUTENBERG REALTY ORLANDO - New
$132,000Active1 beds 1 baths588 sq. ft.709 Secret Harbor Lane #111, LAKE MARY, FL 32746
MLS# O6396892Listed by: UNITED REAL ESTATE PREFERRED - New
$575,000Active4 beds 2 baths2,362 sq. ft.252 Shady Oaks Circle, LAKE MARY, FL 32746
MLS# O6398379Listed by: PETER DIETZEL PROPERTIES LLC - New
$1,025,000Active4 beds 4 baths3,453 sq. ft.1508 Edenhall Point, LAKE MARY, FL 32746
MLS# O6398284Listed by: COLDWELL BANKER REALTY - New
$725,000Active3 beds 3 baths2,819 sq. ft.295 Bald Eagle Run, LAKE MARY, FL 32746
MLS# V4948441Listed by: KELLER WILLIAMS HERITAGE REALTY - Open Sun, 12 to 3pmNew
$544,500Active4 beds 3 baths2,470 sq. ft.289 Hanging Moss Circle, LAKE MARY, FL 32746
MLS# O6398132Listed by: COLDWELL BANKER REALTY
$399,990Pending3 beds 3 baths1,772 sq. ft.499 Wexdon Court, LAKE MARY, FL 32746
MLS# TB8496169Listed by: LPT REALTY, LLC
$539,000Pending3 beds 2 baths1,939 sq. ft.1209 Trentwood Court, LAKE MARY, FL 32746
MLS# O6392491Listed by: REALTY HUB