1812 Pine Bay Drive, Lake Mary, FL 32746
Local realty services provided by:CENTURY 21 Alliance Realty Group
1812 Pine Bay Drive,Lake Mary, FL 32746
$569,900
- 4 Beds
- 3 Baths
- 2,142 sq. ft.
- Single family
- Active
Upcoming open houses
- Sat, Dec 2001:00 pm - 03:00 pm
Listed by: patrick urbainczyk, pa
Office: keller williams heritage realty
MLS#:O6365689
Source:MFRMLS
Price summary
- Price:$569,900
- Price per sq. ft.:$198.02
- Monthly HOA dues:$71
About this home
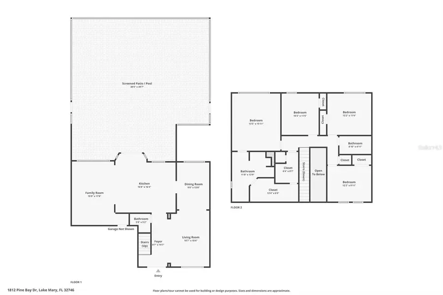
Welcome to 1812 Pine Bay Circle, a beautifully updated 4-bedroom, 2.5-bathroom pool home offering 2,142 square feet of comfortable, refined living located in the Huntington Pointe subdivision. From the moment you arrive, you’ll appreciate the peaceful setting with no front or rear neighbors, offering serene views of the greenspace both across the street and in the backyard. Step inside through the foyer and immediately feel the warmth of the natural light that fills both the living and dining rooms. The open sightlines and bright, airy atmosphere create a welcoming first impression and set the tone for the rest of the home. At the heart of the property is a stunningly renovated kitchen designed for both style and functionality. Featuring solid wood cabinetry, quartz countertops, stainless steel appliances, and a central island perfect for prep or gathering, this kitchen is truly a showstopper. The layout was thoughtfully modified to create a more open flow, seamlessly connecting the kitchen to the family room and enhancing the overall livability of the home. Engineered wood flooring runs through both spaces, adding warmth, durability, and contemporary appeal. A convenient half bathroom is located just off the kitchen—a perfect spot for guests. Upstairs, you’ll find LVP flooring throughout, including on the staircase with an updated stair rail that elevates the home’s modern feel. The spacious primary bedroom offers plenty of room to unwind, while the tastefully updated primary bathroom features beautiful finishes and a layout that feels fresh and current. The oversized walk-in closet provides exceptional storage and organization. The secondary bedrooms are well-sized and versatile—ideal for family members, visiting guests, a home office, or hobby rooms. The updated secondary bathroom is equally impressive, offering clean, modern design that matches the home’s sophisticated aesthetic. Outdoor living is truly exceptional here. Enjoy Florida living at its best in your screened-in pool area, complete with a covered lanai perfect for morning coffee, evening relaxation, or weekend gatherings. With no rear neighbors, the setting feels private and peaceful, allowing you to fully enjoy your outdoor retreat. Located in highly sought-after Lake Mary, this home provides convenient access to top-rated schools, shopping, dining, parks, and major roadways while still offering a quiet, tucked-away feel. With thoughtful updates throughout, a smart floorplan, and a beautiful private pool area, 1812 Pine Bay Circle is truly move-in ready and waiting for its next owner.
Contact an agent
Home facts
- Year built:1998
- Listing ID #:O6365689
- Added:7 day(s) ago
- Updated:December 15, 2025 at 05:11 PM
Rooms and interior
- Bedrooms:4
- Total bathrooms:3
- Full bathrooms:2
- Half bathrooms:1
- Living area:2,142 sq. ft.
Heating and cooling
- Cooling:Central Air
- Heating:Central
Structure and exterior
- Roof:Shingle
- Year built:1998
- Building area:2,142 sq. ft.
- Lot area:0.17 Acres
Schools
- High school:Lake Mary High
- Middle school:Markham Woods Middle
- Elementary school:Woodlands Elementary
Utilities
- Water:Public, Water Connected
- Sewer:Public Sewer, Sewer Connected
Finances and disclosures
- Price:$569,900
- Price per sq. ft.:$198.02
- Tax amount:$2,383 (2024)
New listings near 1812 Pine Bay Drive
- New
$769,900Active4 beds 3 baths2,815 sq. ft.721 Hupa Court, LAKE MARY, FL 32746
MLS# O6354371Listed by: SOTERA LIVING - New
$390,000Active3 beds 2 baths1,494 sq. ft.533 Remington Oak Drive, LAKE MARY, FL 32746
MLS# O6366817Listed by: KORR REALTY CORP - New
$254,000Active2 beds 3 baths1,095 sq. ft.922 Vineland Place, LAKE MARY, FL 32746
MLS# O6365787Listed by: REDFIN CORPORATION - New
$440,000Active3 beds 4 baths2,312 sq. ft.740 Greybull Run, LAKE MARY, FL 32746
MLS# O6365872Listed by: REAL BROKER, LLC - New
$425,000Active4 beds 2 baths1,789 sq. ft.2686 Alamosa Place, LAKE MARY, FL 32746
MLS# O6366522Listed by: PREMIER SOTHEBY'S INTL. REALTY - New
$325,000Active3 beds 2 baths1,034 sq. ft.231 Abbott Avenue, LAKE MARY, FL 32746
MLS# O6366251Listed by: CHARLES RUTENBERG REALTY ORLANDO - New
$649,999Active3 beds 3 baths2,341 sq. ft.530 Lake Bingham Road, LAKE MARY, FL 32746
MLS# O6366477Listed by: COLDWELL BANKER RESIDENTIAL RE - New
$805,000Active4 beds 4 baths3,141 sq. ft.552 Teton Street, LAKE MARY, FL 32746
MLS# O6363645Listed by: BLUE CHIP REALTY PREFERRED INC - New
$230,000Active2 beds 2 baths1,182 sq. ft.246 Villa Di Este Terrace #200, LAKE MARY, FL 32746
MLS# O6346585Listed by: ALPHA EQUITY REALTY & MANAGEMENT INC
$757,000Pending4 beds 3 baths2,258 sq. ft.847 Ashbrooke Court, LAKE MARY, FL 32746
MLS# O6363794Listed by: GALLERY PROPERTIES INTERNATIONAL