312 Patio Street, Lehigh Acres, FL 33974

Local realty services provided by:CENTURY 21 North East
312 Patio Street,Lehigh Acres, FL 33974
$45,000
  • 0 Acres
  • Lots / Land
  • Active
Listed by: ariadna de los arcos
Office: hustle bees realty llc.
MLS#:2026009759
Source:FL_GFMB

Price summary

  • Price:$45,000

About this home

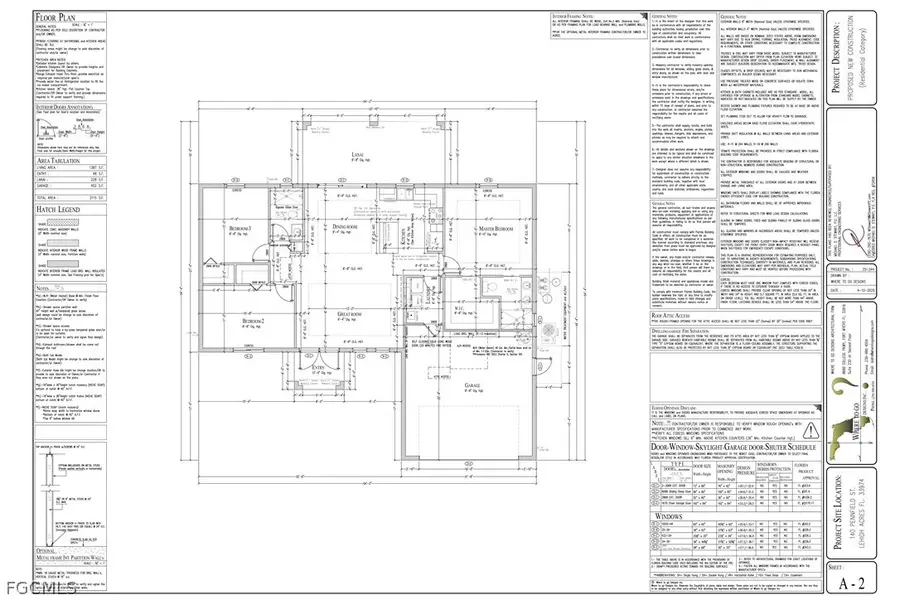
Survey and approved model plan already completed — this lot is READY TO BUILD. Located in one of the fastest growing areas of Lehigh Acres (33974), this property offers an excellent opportunity for builders or buyers looking to save time and upfront costs. The sale includes a complete architectural package for a 3-bedroom, 2-bathroom single-family home with a 2-car garage, along with survey, architectural plans, septic permit, city permit fees, and impact fees already paid. Buyer avoids months of paperwork, permitting delays, and administrative risk. Conveniently located near Southwest Florida International Airport, Fort Myers beaches, I-75, SR-82, shopping centers, schools, restaurants, medical facilities, and JetBlue Park. This is one of the most sought-after zip codes in Lehigh Acres and a prime opportunity to start construction immediately.

Contact an agent

contact an agent

Yes, I would like more information. Please use and/or share my information with an independent agent affiliated with the CENTURY 21®  brand to contact me about my real estate needs. By clicking Send message, I request to be contacted by phone or text message and consent to being contacted by automated means. I understand that my consent to receive calls or texts is not a condition of purchasing any property, goods, or services. Alternatively, I understand that I can access real estate services by email or I can contact the agent myself.

If an independent agent affiliated with the CENTURY 21®  brand is not available in the area where I need assistance, I agree to be contacted by a real estate agent affiliated with another brand owned or licensed by Anywhere Real Estate (BHGRE® , Coldwell Banker® , Corcoran® , ERA® , Sotheby's International Realty® ).
 I acknowledge that I have read and agree to theTerms of useandPrivacy notice

Home facts

  • Listing ID #:2026009759
  • Added:1 day(s) ago
  • Updated:February 24, 2026 at 11:44 PM

Finances and disclosures

  • Price:$45,000
  • Tax amount:$491 (2025)
The source of the information about real property available for sale or rent is the copyrighted and proprietary database of the Florida Gulf Coast Multiple Listing Service, Inc.. Copyright 2026 Florida Gulf Coast Multiple Listing Service, Inc.; all rights reserved. The data is provided by the IDX Program, and the Information is Deemed Reliable But Not Guaranteed.