2 Shady Lane, Mary Esther, FL 32569
Local realty services provided by:CENTURY 21 AllPoints Realty
2 Shady Lane,Mary Esther, FL 32569
$445,000
- 3 Beds
- 3 Baths
- 2,855 sq. ft.
- Single family
- Pending
Listed by: paul a domenech
Office: era american real estate
MLS#:937107
Source:FL_ECAR
Price summary
- Price:$445,000
- Price per sq. ft.:$155.87
About this home
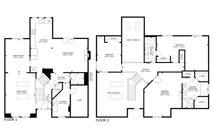
Deeded water access is included with this upgraded property located in the subdivision of Shady Lane. This home boasts a new roof and solar panels, which will be fully paid off at the time of closing, offering energy efficiency and cost savings. Situated on a corner lot, a classic brick privacy fence surrounds the property and features a combination of brick and vinyl siding, providing easy maintenance and a clean appearance. Upon entering the home, you will be greeted by luxury vinyl planks, a grand vaulted ceiling, and skylights in the living room that allow natural light to illuminate the newly painted ceilings, walls, and baseboards. As you move into the dining room, you can find the details of the new modern light fixture and trey ceiling that the builder thoughtfully added.
Proceeding through the dining room, the high vaulted ceiling kitchen will delight any culinary enthusiast. The natural lighting from the skylights highlights the farmer's sink, pot filler, granite countertops, oversized cabinets, double oven, gas cooktop, and stainless-steel refrigerator with a water and ice dispenser. The kitchen also features a walk-in pantry, stylish backsplash, and a breakfast nook with a fireplace that offers double doors leading to a closed-in patio.
From the breakfast nook, you circle back to the front of the home, passing the half bath on your left and the laundry room. The laundry room is equipped with a countertop sink and cabinets. It also provides access to the oversized garage, which offers plenty of room for a designated workshop.
As you ascend the stairs, you will have a naturally lit perch view of the living room space. At the top, you will have a captivating view of the kitchen from the catwalk. Directly to your right is the oversized master bedroom, a true retreat with ample space for a reading nook. To complete this bedroom, you enter the tile master bathroom through crafted wood barn doors. The bathroom features a new double vanity, new light fixtures, a garden tub, and a newly tiled walk-in shower, adding a luxurious touch. Additionally, there are two walk-in closets, providing ample storage space.
The guest bathroom offers tile floors, a newly tiled shower, and a new vanity. It also has a private entrance to a guest room, which offers flexibility in a designated space for a living area setup or even a desk. Custom shelving was added in the closet area.
All rooms in the house are equipped with new ceiling fans for added comfort and wired for a security system.
Take advantage of owning this upgraded property at 2 Shady Lane. This location is conveniently located within a mile of major retailers and deeded water access....
Contact an agent
Home facts
- Year built:1994
- Listing ID #:937107
- Added:841 day(s) ago
- Updated:December 23, 2023 at 08:34 AM
Rooms and interior
- Bedrooms:3
- Total bathrooms:3
- Full bathrooms:2
- Half bathrooms:1
- Rooms Total:11
- Kitchen Description:Cooktop, Dishwasher, Disposal, Double Oven, Refrigerator/Icemaker
- Living area:2,855 sq. ft.
Structure and exterior
- Year built:1994
- Building area:2,855 sq. ft.
- Lot area:0.28 Acres
- Lot Features:Dead End
- Architectural Style:Contemporary
- Exterior Features:Fenced Area, Patio Enclosed, Porch Open
Schools
- High school:Fort Walton Beach
- Middle school:Bruner
- Elementary school:Mary Esther
Utilities
- Water:Public Water
- Sewer:Public Sewer
Finances and disclosures
- Price:$445,000
- Price per sq. ft.:$155.87
Features and amenities
- Appliances:Cooktop, Dishwasher, Disposal, Oven Double, Refrigerator w/Ice Maker
New listings near 2 Shady Lane
- New
$490,000Active4 beds 4 baths3,177 sq. ft.1004 Sandra Drive, Mary Esther, FL 32569
MLS# 997688Listed by: LUCKY PALMS REALTY - New
$175,000Active3 beds 1 baths1,217 sq. ft.477 Aleta Avenue, Mary Esther, FL 32569
MLS# 997557Listed by: ERA AMERICAN REAL ESTATE - New
$151,500Active2 beds 1 baths965 sq. ft.209 W Miracle Strip Parkway #E203, Mary Esther, FL 32569
MLS# 997360Listed by: THE AMERICAN REALTY - New
$219,000Active4 beds 2 baths1,520 sq. ft.111 N Lorraine Drive, Mary Esther, FL 32569
MLS# 996734Listed by: FLATFEE.COM - New
$330,000Active3 beds 2 baths1,280 sq. ft.231 Michael Avenue, Mary Esther, FL 32569
MLS# 997320Listed by: GULFSIDE HAVEN LLC - New
$1,799,000Active5 beds 4 baths4,808 sq. ft.431 Atwater Court, Mary Esther, FL 32569
MLS# 997179Listed by: SCENIC SOTHEBY'S INTERNATIONAL REALTY - Open Sat, 2:30 to 5:30pmNew
$449,000Active4 beds 2 baths1,970 sq. ft.10 Lucky Lane, Mary Esther, FL 32569
MLS# 997084Listed by: SAGE COUNSEL REALTY LLC - New
$199,000Active4 beds 2 baths1,104 sq. ft.900 Bryn Mawr Boulevard, Mary Esther, FL 32569
MLS# 996732Listed by: FLATFEE.COM - New
$345,000Active3 beds 2 baths1,651 sq. ft.560 Rough Leaf Lane, Mary Esther, FL 32569
MLS# 996963Listed by: COASTAL REALTY SERVICES - New
$310,000Active4 beds 2 baths1,330 sq. ft.46 Stowe Road, Mary Esther, FL 32569
MLS# 996965Listed by: EXIT REALTY ANCHOR SOUTH