xxx 37th Ave Ne, Naples, FL 34120

Local realty services provided by:CENTURY 21 Myers Realty
xxx 37th Ave Ne,Naples, FL 34120
$79,900
  • 1.14 Acres
  • Lots / Land
  • Active
Listed by: yanely fernandez
Office: fast action realty inc
MLS#:C7517084
Source:MFRMLS

Price summary

  • Price:$79,900

About this home

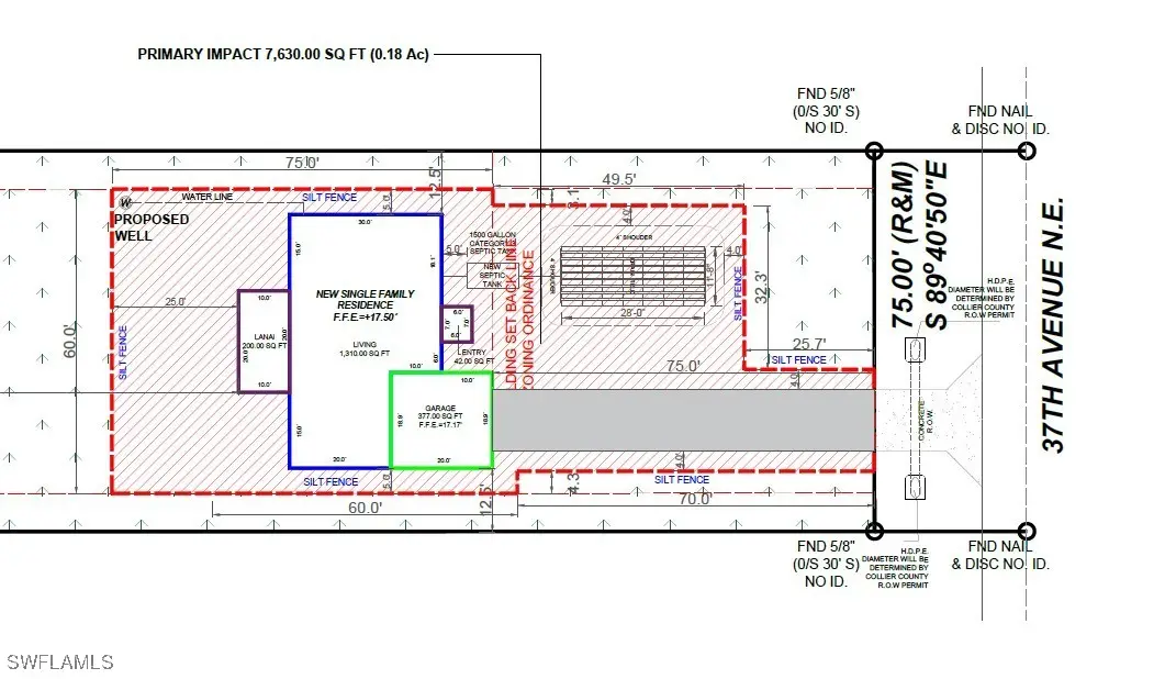
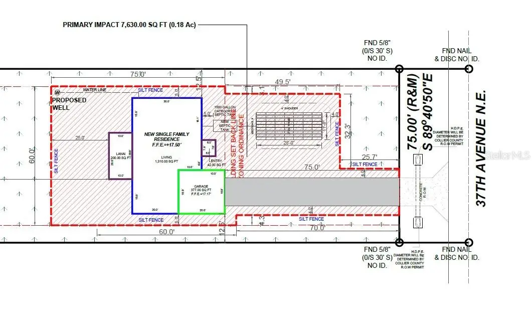
DEP Report available and ERP plans APPROVED for a 1310sf ; 2 car garage with a lanai. The ERP Permit has already been obtained—no waiting required. A current survey is also included. All supporting documents can be provided upon request. See picture of the floorplan attached. LOCATION, LOCATION, LOCATION! Off of Everglades Blvd and 37th Ave NE. This outstanding vacant lot presents an excellent opportunity for anyone to build their ideal home or retreat. Situated in the rapidly growing Golden Gate Estates community in Naples, this area offers a peaceful country lifestyle with no HOA fees. Conveniently located just a short drive from Naples’ renowned beaches, top-rated schools, golf courses, shopping, and dining, this property combines privacy with accessibility. Don’t miss the chance to own a prime piece of Southwest Florida real estate.

Contact an agent

contact an agent

Yes, I would like more information. Please use and/or share my information with an independent agent affiliated with the CENTURY 21®  brand to contact me about my real estate needs. By clicking Send message, I request to be contacted by phone or text message and consent to being contacted by automated means. I understand that my consent to receive calls or texts is not a condition of purchasing any property, goods, or services. Alternatively, I understand that I can access real estate services by email or I can contact the agent myself.

If an independent agent affiliated with the CENTURY 21®  brand is not available in the area where I need assistance, I agree to be contacted by a real estate agent affiliated with another brand owned or licensed by Anywhere Real Estate (BHGRE® , Coldwell Banker® , Corcoran® , ERA® , Sotheby's International Realty® ).
 I acknowledge that I have read and agree to theTerms of useandPrivacy notice

Home facts

  • Listing ID #:C7517084
  • Added:173 day(s) ago
  • Updated:April 26, 2026 at 11:58 AM

Structure and exterior

  • Lot area:1.14 Acres
  • Levels:1 Story

Finances and disclosures

  • Price:$79,900
  • Tax amount:$499 (2024)

Features and amenities

  • Pool features:Public Pool
MLS LogoThe information being provided by Stellar Mls is for the consumer's personal, non-commercial use and may not be used for any purpose other than to identify prospective properties consumer may be interested in purchasing. Any information relating to real estate for sale referenced on this web site comes from the Internet Data Exchange (IDX) program of the Stellar Mls. CENTURY 21 Myers Realty is not a Multiple Listing Service (MLS), nor does it offer MLS access. This website is a service of CENTURY 21 Myers Realty, a broker participant of Stellar Mls. This web site may reference real estate listing(s) held by a brokerage firm other than the broker and/or agent who owns this web site. The accuracy of all information, regardless of source, including but not limited to open house information, square footages and lot sizes, is deemed reliable but not guaranteed and should be personally verified through personal inspection by and/or with the appropriate professionals. The data contained herein is copyrighted by Stellar Mls and is protected by all applicable copyright laws. Any unauthorized dissemination of this information is in violation of copyright laws and is strictly prohibited. Properties in listings may have been sold or may no longer be available. Copyright 2026 Stellar Mls. All rights reserved.