201 Cavallini Drive, Nokomis, FL 34275
Local realty services provided by:CENTURY 21 Selling Paradise
Listed by: kelley ann ayers, katheren ayers
Office: ayers and associates real estate
MLS#:N6137734
Source:MFRMLS
Price summary
- Price:$489,000
- Price per sq. ft.:$211.41
- Monthly HOA dues:$25
About this home
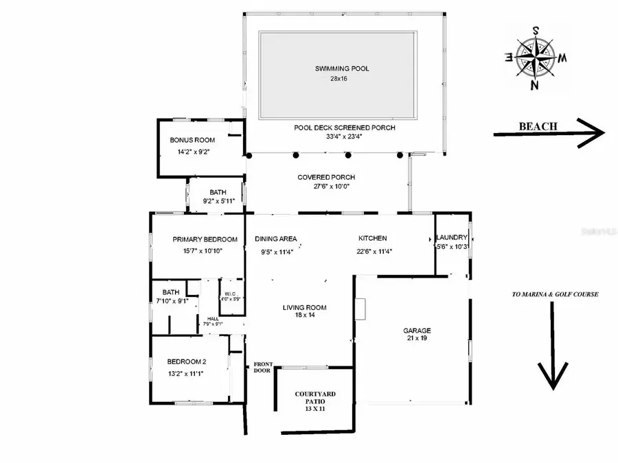
READY TO GO!! Welcome to SORRENTO SOUTH, a fabulous community "WEST OF THE TRAIL" in NOKOMIS BEACH! This wonderful, 1700+ sq foot 2 bedroom+ BONUS ROOM, 2.5 bath POOL HOME sits on an extra-large 16,000-square-foot lot with a fully fenced backyard. The open floor plan features a spacious Great Room that seamlessly flows into the expansive & irresistible covered & screened poolside lanai, measuring an impressive 28x10! The stylish oversized kitchen spans an impressive 23 feet, boasting abundant neutral wood cabinetry, granite countertops with breakfast bar. Upgraded appliances include a sleek stainless-steel hood positioned over the central island, adding both function & modern flair to the space, plus NEW Bosch dishwasher, & NEW Hi-End Professional Frigidaire refrigerator.
The Master Suite has vinyl flooring & an updated en-suite bathroom featuring a soaking tub, new vanity, toilet, plus walk-in closet. 2nd bedroom is large enough for two twin beds or a king-size. The DETACHED BONUS ROOM, accessed from the covered lanai is flexible & provides a variety options such as, a perfect guestroom, den, library, home office, or roll all those choices into one with a “Murphy Bed”!
Outstanding features & updates of this beautiful home include a “one year new” 50 Year Standing Seam Metal Roof, raised-panel doors throughout, updated interior lighting, freshly painted all interior walls & ceilings, courtyard style patio at the front entry, resurfaced pool, new pool pump, electric service panel, extra-wide driveway, oversized garage with separate laundry room, & a cozy brick-paver firepit, perfect for enjoying cool Florida evenings. Plus so close to the beach at this location, yet NOT IN A FLOOD ZONE!
Also, conveniently located right in the Sorrento South community which you can walk to, is the Bayshore Executive Public Golf Club & the marina where an opportunity could be possible for a boat slip rental from a private owner! Lastly, Sorrento South is deed-restricted keeping the neighborhood neat, but the HOA fee is only $300 a year!
Embrace the Beach Lifestyle from this outstanding location that offers “back road” access with the preferred mode of transportation of a golf cart or bicycle! Easy, peesy ride to Nokomis Beach, Waterfront dining with Live Music daily, all the conveniences of Publix, pharmacy, dog groomers, nail salon, boutique shopping & a great deal more! Free of charge, experience the Gulf Breezes, sounds of the Waves, Water Birds, glimpse of dolphin & manatee swimming by, the occasional bridge opening, & Vibrant Rotating Colors of sunset Flooding the Sky!
Only 10 minutes to Historic Downtown Venice Island, with shopping, dining, live music, weekly farmers market & more. Just a short trip to the World-Famous Siesta Key & Downtown Sarasota. Notably, Nokomis Beach & Casey Key are the ONLY beach communities in the region with no high rises, no traffic jams & an expressway from Tamiami Trail to I-75 creating easy access to I-75 & all nearby airports.
The allure of this locale is undeniable, with nature & beauty, carefree easy lifestyle, year-round Sunsets, watersports, bountiful fishing, boating, long walks on the beach, strolling down the beach collecting sharks’ teeth & shells, cookouts & much more! A perfect place to enjoy, invest, or both! Exhale, Relax & Feel Time Stand Still, after all, Nokomis Beach is not just a Place, but a State-of-Mind!
Contact an agent
Home facts
- Year built:1964
- Listing ID #:N6137734
- Added:277 day(s) ago
- Updated:December 18, 2025 at 08:48 AM
Rooms and interior
- Bedrooms:3
- Total bathrooms:3
- Full bathrooms:2
- Half bathrooms:1
- Living area:1,711 sq. ft.
Heating and cooling
- Cooling:Central Air
- Heating:Central, Electric
Structure and exterior
- Roof:Membrane, Metal
- Year built:1964
- Building area:1,711 sq. ft.
- Lot area:0.37 Acres
Schools
- High school:Venice Senior High
- Middle school:Laurel Nokomis Middle
- Elementary school:Laurel Nokomis Elementary
Utilities
- Water:Public, Water Connected
- Sewer:Public, Public Sewer, Sewer Connected
Finances and disclosures
- Price:$489,000
- Price per sq. ft.:$211.41
- Tax amount:$5,214 (2024)
New listings near 201 Cavallini Drive
- New
$699,900Active4 beds 4 baths3,024 sq. ft.321 Holly Bank Avenue, NOKOMIS, FL 34275
MLS# TB8457191Listed by: PERRY HOMES - New
$677,990Active3 beds 3 baths2,336 sq. ft.1673 Lugano Circle, NOKOMIS, FL 34275
MLS# R4910410Listed by: M/I HOMES SWFL, LLC - New
$595,990Active3 beds 2 baths2,002 sq. ft.1508 Lugano Circle, NOKOMIS, FL 34275
MLS# R4910403Listed by: M/I HOMES SWFL, LLC
$373,515Pending4 beds 2 baths1,687 sq. ft.305 Lazy Shore Drive, NOKOMIS, FL 34275
MLS# O6364662Listed by: MERITAGE HOMES OF FL REALTY- New
$549,000Active3 beds 2 baths1,935 sq. ft.1041 Truman Street, NOKOMIS, FL 34275
MLS# N6141761Listed by: PREMIER SOTHEBYS INTL REALTY - New
$558,355Active4 beds 3 baths2,830 sq. ft.140 Shady Edge Loop, NOKOMIS, FL 34275
MLS# O6365320Listed by: MERITAGE HOMES OF FL REALTY - New
$440,655Active4 beds 3 baths2,193 sq. ft.108 Lazy Shore Drive, NOKOMIS, FL 34275
MLS# O6365321Listed by: MERITAGE HOMES OF FL REALTY - New
$381,955Active4 beds 2 baths1,687 sq. ft.312 Lazy Shore Drive, NOKOMIS, FL 34275
MLS# O6365323Listed by: MERITAGE HOMES OF FL REALTY - New
$399,950Active2 beds 2 baths1,259 sq. ft.124 Matisse Circle W, NOKOMIS, FL 34275
MLS# A4674844Listed by: BRIGHT REALTY - New
$399,900Active2 beds 2 baths1,544 sq. ft.144 Soliera Street, NOKOMIS, FL 34275
MLS# N6141498Listed by: MICHAEL SAUNDERS & COMPANY