17906 Wheat Stack Court, Parrish, FL 34219

Local realty services provided by:CENTURY 21 Real Estate Champions
17906 Wheat Stack Court,Parrish, FL 34219
$354,000
  • 5 Beds
  • 2 Baths
  • 1,739 sq. ft.
  • Single family
  • Active
Listed by: sarah bordeaux
Office: d.r. horton realty of sarasota
MLS#:A4684748
Source:MFRMLS

Price summary

  • Price:$354,000
  • Price per sq. ft.:$170.19
  • Monthly HOA dues:$132

About this home

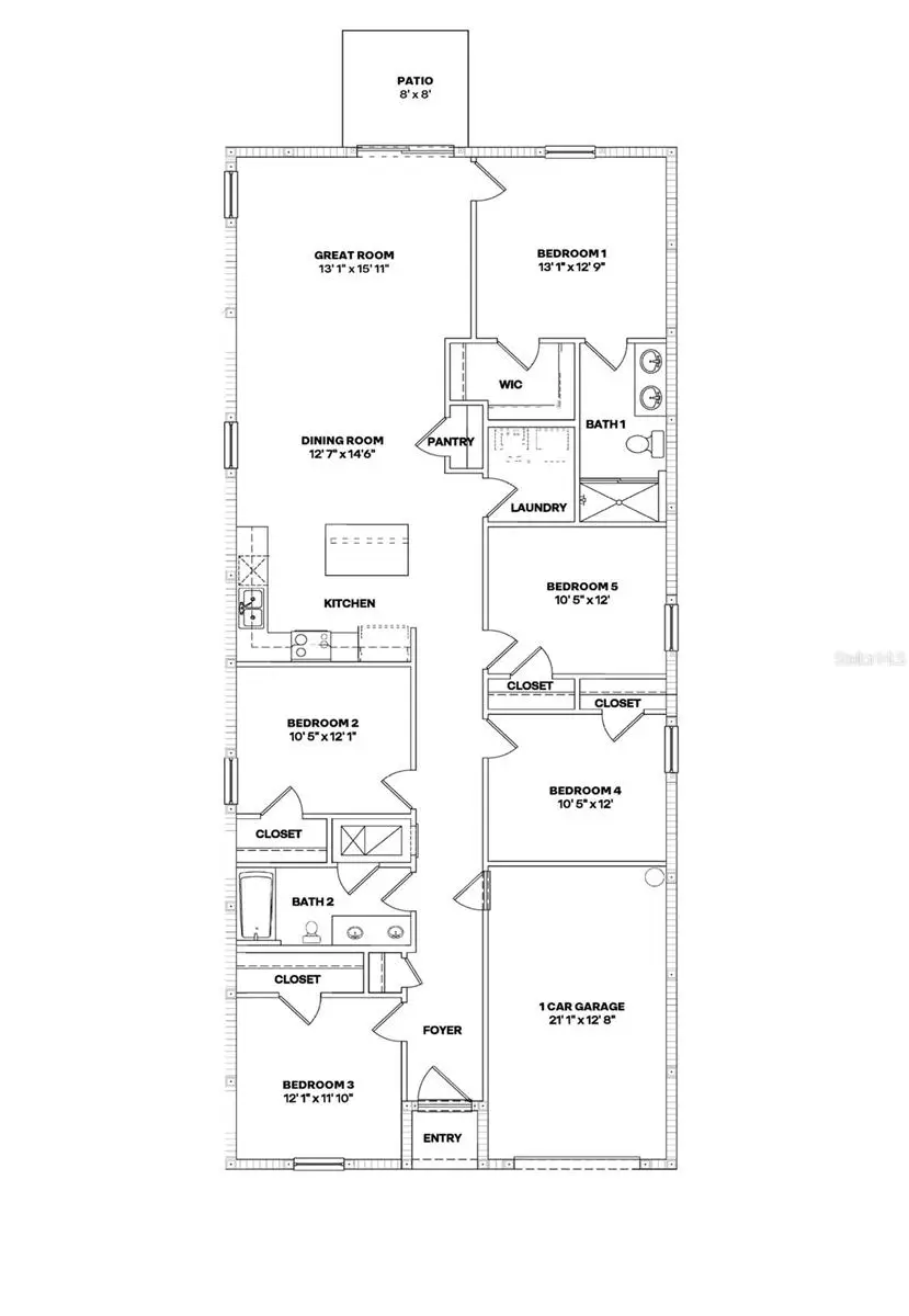
EXTENDED REDTAG SALE Receive up to $30,000 towards Flex Cash & closing costs, $5,000 towards upgrades and special interest rates with the use of our preferred lender - Now through Sunday, May 3rd. The Alford is a one-story home that balances style, space, and comfort. Offering 5 bedrooms, 2 bathrooms, and 1,739 square feet, this floor plan provides plenty of room for families of all sizes. Its open-concept layout seamlessly connects the kitchen, dining, and living areas, creating a welcoming space that’s ideal for gatherings or everyday living. The kitchen is a standout with shaker-style cabinetry, quartz countertops, and stainless-steel appliances, all overlooking the dining area for easy entertaining. With its thoughtful layout and modern finishes, the Alford makes it easy to create the home that fits your lifestyle. The primary suite is tucked at the back of the home for added privacy, featuring a walk-in closet and a private bathroom with dual vanities and a separate space for...

Contact an agent

contact an agent

Yes, I would like more information. Please use and/or share my information with an independent agent affiliated with the CENTURY 21®  brand to contact me about my real estate needs. By clicking Send message, I request to be contacted by phone or text message and consent to being contacted by automated means. I understand that my consent to receive calls or texts is not a condition of purchasing any property, goods, or services. Alternatively, I understand that I can access real estate services by email or I can contact the agent myself.

If an independent agent affiliated with the CENTURY 21®  brand is not available in the area where I need assistance, I agree to be contacted by a real estate agent affiliated with another brand owned or licensed by Anywhere Real Estate (BHGRE® , Coldwell Banker® , Corcoran® , ERA® , Sotheby's International Realty® ).
 I acknowledge that I have read and agree to theTerms of useandPrivacy notice

Home facts

  • Year built:2026
  • Listing ID #:A4684748
  • Added:58 day(s) ago
  • Updated:May 01, 2026 at 12:59 PM

Rooms and interior

  • Bedrooms:5
  • Total bathrooms:2
  • Full bathrooms:2
  • Flooring:Carpet, Luxury Vinyl
  • Kitchen Description:Dishwasher, Microwave, Range, Refrigerator
  • Living area:1,739 sq. ft.

Heating and cooling

  • Cooling:Central Air
  • Heating:Electric
  • Central air:Yes

Structure and exterior

  • Roof:Shingle
  • Year built:2026
  • Building area:1,739 sq. ft.
  • Lot area:0.11 Acres
  • Construction Materials:Concrete
  • Foundation Description:Slab
  • Levels:1 Story

Schools

  • High school:Parrish Community High
  • Middle school:Buffalo Creek Middle
  • Elementary school:Gene Witt Elementary

Utilities

  • Water:Public
  • Sewer:Public, Public Sewer

Finances and disclosures

  • Price:$354,000
  • Price per sq. ft.:$170.19

Features and amenities

  • Appliances:Dishwasher, Dryer, Irrigation Equipment, Microwave, Range, Refrigerator, Washer
  • Laundry features:Dryer, Laundry Room, Washer
  • Amenities:Basketball Court, Clubhouse, Electricity Available, Gated, Irrigation Equipment, Pickleball Court(s), Playground, Pool, Recreation Facilities, Smart Home, Tennis Court(s), Thermostat
  • Pool features:Pool, Public Pool

Parking

  • Parking description:Attached Garage, Driveway, Garage Door Opener
  • Garage:Yes
  • Garage spaces:1
MLS LogoThe information being provided by Stellar Mls is for the consumer's personal, non-commercial use and may not be used for any purpose other than to identify prospective properties consumer may be interested in purchasing. Any information relating to real estate for sale referenced on this web site comes from the Internet Data Exchange (IDX) program of the Stellar Mls. CENTURY 21 Real Estate Champions is not a Multiple Listing Service (MLS), nor does it offer MLS access. This website is a service of CENTURY 21 Real Estate Champions, a broker participant of Stellar Mls. This web site may reference real estate listing(s) held by a brokerage firm other than the broker and/or agent who owns this web site. The accuracy of all information, regardless of source, including but not limited to open house information, square footages and lot sizes, is deemed reliable but not guaranteed and should be personally verified through personal inspection by and/or with the appropriate professionals. The data contained herein is copyrighted by Stellar Mls and is protected by all applicable copyright laws. Any unauthorized dissemination of this information is in violation of copyright laws and is strictly prohibited. Properties in listings may have been sold or may no longer be available. Copyright 2026 Stellar Mls. All rights reserved.