304 Sea Tern Lane, Port Saint Joe, FL 32456
Local realty services provided by:CENTURY 21 First Story Real Estate
304 Sea Tern Lane,Port St Joe, FL 32456
$359,900
- 3 Beds
- 3 Baths
- 1,460 sq. ft.
- Single family
- Active
Listed by: mark a miles, paul hanlon
Office: dr horton realty of emerald coast, llc.
MLS#:788351
Source:FL_BCMLS
Price summary
- Price:$359,900
- Price per sq. ft.:$246.51
About this home
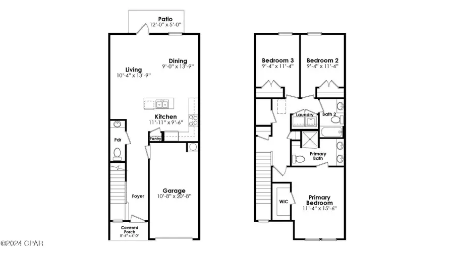
Welcome to 304 Sea Tern Lane, a new home at WindMark Townhomes located in the highly visited Port Saint Joe, Florida. The Sabal Townhome interior floorplan features 3 bedrooms and 2.5 bathrooms with a 1-car garage.
On the outside of these units, you will see quality Color-Plus Hardie Board exteriors which is uniquely engineered to stand up to the harshest elements from wind, rain, fire, freezing temperatures, and hail. Complemented by prairie-style doors and 30-year dimensional shingles. Convenience meets security with steel garage doors equipped with openers, weatherproof outlets, hose bibs, and Kwikset deadbolts on all exterior doors. The Windmark community features underground utilities making it less susceptible to damage from severe weather leading to fewer outages, quicker restoration, and more reliable service.
As you enter inside, you will feel right at home with beautiful EVP flooring at your feet, leading you to the open living room and kitchen or the spacious upstairs. In the kitchen and bathroom, you will find gorgeous quartz countertops, white cabinets with brushed nickel hardware, and stainless-steel appliances in the kitchen. Stay cool at the beach with energy-efficient cooling and heating systems, Low-E insulated windows with screens, and water-saving elongated commodes. For added security, every home comes equipped with a Safe Haven Surveillance system, Skybell doorbell, Honeywell thermostat, and DEAKO Smart Switches. Rest assured with a one-year builder's warranty from D.R. Horton and a ten-year structural warranty through RWC.
Enjoy all the amenities the WindMark Beach community has to offer complete with beautiful new homes, local food, shopping, boardwalks, and beach access! Windmark Beach amenities includes two pools, BBQ grills, 11 dedicated beach accesses, the village center, boardwalk, and is pet friendly! The community is golf cart friendly, and dogs are allowed on the beach in Windmark! Stop by our model home to experience WindMark Beach Townhomes today.
Located directly across from the Gulf, you will find beautiful beaches within walking distance, and local restaurants close by. These homes offer easy access to Tyndall Air Force Base (21.7 miles away), Panama City Beach (39 miles away), and downtown Port St. Joe (only 4 miles away)....
Contact an agent
Home facts
- Year built:2026
- Listing ID #:788351
- Added:1 day(s) ago
- Updated:April 15, 2026 at 01:44 AM
Rooms and interior
- Bedrooms:3
- Total bathrooms:3
- Full bathrooms:2
- Half bathrooms:1
- Rooms Total:4
- Dining Description:SmartThermostat
- Bathrooms Description:SmartHome, SmartThermostat
- Kitchen Description:Electric Range, Electric Water Heater, Plumbed For Ice Maker
- Bedroom Description:SmartHome, SmartThermostat
- Living area:1,460 sq. ft.
Heating and cooling
- Cooling:CeilingFans, CentralAir
- Heating:Central, Electric
- Central air:Yes
Structure and exterior
- Roof:Shingle
- Year built:2026
- Building area:1,460 sq. ft.
- Lot Features:Cul de sac
- Architectural Style:Craftsman
- Exterior Features:Patio, Porch
- Foundation Description:Slab
- Levels:2 Story
Schools
- High school:Port St. Joe
- Middle school:Port St. Joe
- Elementary school:Port St. Joe
Utilities
- Sewer:Public Sewer
Finances and disclosures
- Price:$359,900
- Price per sq. ft.:$246.51
Features and amenities
- Amenities:Beach Rights, CarbonMonoxideDetectors, DoublePaneWindows, ElectricRange, ElectricWaterHeater, Picnic Area, PlumbedForIceMaker, SecurityService, SecuritySystem, SmartHome, SmartThermostat, SmokeDetectors
- Pool features:Community
Parking
- Parking description:Additional Parking, Garage
- Garage:Yes
- Garage spaces:1
New listings near 304 Sea Tern Lane
- New
$459,900Active4 beds 3 baths1,710 sq. ft.298 Sea Tern Lane, Port St Joe, FL 32456
MLS# 788346Listed by: DR HORTON REALTY OF EMERALD COAST, LLC - New
$459,900Active4 beds 3 baths1,710 sq. ft.322 Sea Tern Lane, Port St Joe, FL 32456
MLS# 788347Listed by: DR HORTON REALTY OF EMERALD COAST, LLC - New
$359,900Active3 beds 3 baths1,460 sq. ft.308 Sea Tern Lane, Port St Joe, FL 32456
MLS# 788352Listed by: DR HORTON REALTY OF EMERALD COAST, LLC - New
$359,900Active3 beds 3 baths1,460 sq. ft.312 Sea Tern Lane, Port St Joe, FL 32456
MLS# 788354Listed by: DR HORTON REALTY OF EMERALD COAST, LLC - New
$359,900Active3 beds 3 baths1,460 sq. ft.316 Sea Tern Lane, Port St Joe, FL 32456
MLS# 788355Listed by: DR HORTON REALTY OF EMERALD COAST, LLC - New
$669,900Active5 beds 4 baths2,144 sq. ft.182 Porter Drive, Port St Joe, FL 32456
MLS# 788341Listed by: DR HORTON REALTY OF EMERALD COAST, LLC - New
$669,900Active5 beds 4 baths2,144 sq. ft.153 Greene Circle, Port St Joe, FL 32456
MLS# 788343Listed by: DR HORTON REALTY OF EMERALD COAST, LLC - New
$749,900Active5 beds 4 baths2,745 sq. ft.161 Greene Circle, Port St Joe, FL 32456
MLS# 788344Listed by: DR HORTON REALTY OF EMERALD COAST, LLC - New
$985,500Active2 beds 3 baths910 sq. ft.184 Sea Dune Dr, Port St. Joe, FL 32456
MLS# 328032Listed by: NEAL R WILLIAMS REAL ESTATE