320 Chateau Ln, Port Saint Joe, FL 32456
Local realty services provided by:CENTURY 21 Ryan Realty
Listed by: mark miles
Office: dr horton realty of emerald coast, llc.
MLS#:324971
Source:FL_RAFGC
Price summary
- Price:$259,900
- Price per sq. ft.:$140.49
- Monthly HOA dues:$197.33
About this home
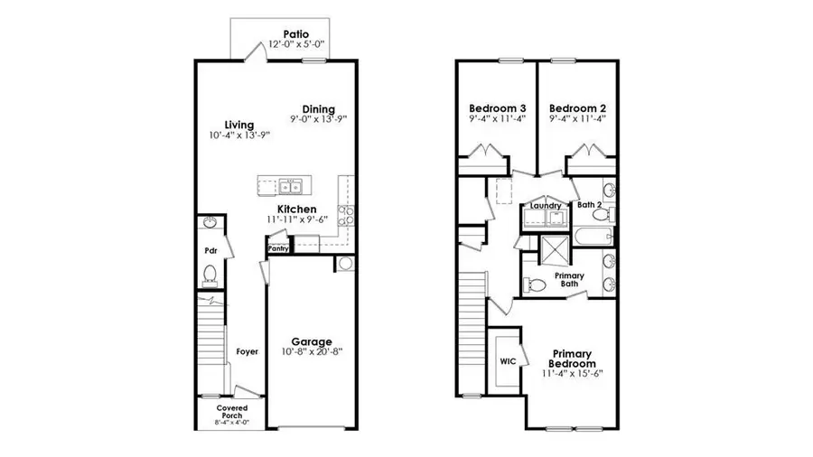
Introducing Chateau Nemours, the newest and most talked about development in Port St Joe. The centerpiece of this blooming community is the Chateau building, a historic building that was relocated from another part of town and is being remodeled into a unique restaurant that Port Saint Joe will be buzzing about. This is a 3 bedroom, 2.5-bathroom townhome. On the outside of these units, you will see quality Color-Plus Vinyl exteriors, complemented by prairie-style doors and 30-year dimensional shingles. Convenience meets security with steel garage doors equipped with openers, weatherproof outlets, hose bibs, and Kwikset deadbolts on all exterior doors. As you enter inside, you will feel right at home with beautiful EVP flooring at your feet, leading you to the open living room and kitchen or the spacious upstairs with cozy carpet on your feet. In the kitchen and bathroom, you will find gorgeous granite countertops, white cabinets with brushed nickel hardware, and stainless-steel appliances in the kitchen. Stay cool indoors with energy-efficient cooling and heating systems, Low-E insulated windows with screens, and water-saving elongated commodes. For added security, every home comes equipped with a Safe Haven Surveillance system, Skybell doorbell, Honeywell thermostat, and DEAKO Smart Switches. Rest assured with a one-year builder's warranty and a ten-year structural warranty. Our Chateau Nemours community features underground utilities making it less susceptible to damage from severe weather leading to fewer outages and more reliable service. Residents of Chateau Nemours can enjoy exclusive access to an amenity center complete with a pool and playground for all to enjoy. Whatever home you're looking for, you will find one at Chateau Nemours. Stop by the model home or schedule a tour online today!...
Contact an agent
Home facts
- Year built:2026
- Listing ID #:324971
- Added:101 day(s) ago
- Updated:April 15, 2026 at 03:13 PM
Rooms and interior
- Bedrooms:3
- Total bathrooms:3
- Full bathrooms:2
- Half bathrooms:1
- Flooring:Carpet, Engineered, Vinyl
- Bathrooms Description:Double Vanity
- Kitchen Description:Dishwasher, Disposal, Kitchen Island, Microwave, Pantry
- Living area:1,460 sq. ft.
Heating and cooling
- Central air:Yes
Structure and exterior
- Roof:Shingle
- Year built:2026
- Building area:1,460 sq. ft.
- Lot area:0.04 Acres
- Lot Features:Covenants/Restrictions, Curb and Gutters, Dead End, Easements, Recorded Subdivision, Sidewalks, Storm Sewer
- Architectural Style:2+ Story, Craftsman, Townhouse
- Construction Materials:Vinyl Siding
- Foundation Description:Slab
- Levels:2 Story
Utilities
- Water:Public, Water Connected
- Sewer:Public Sewer, Sewer Connected
Finances and disclosures
- Price:$259,900
- Price per sq. ft.:$140.49
Features and amenities
- Laundry features:Washer/Dryer Hookup
- Amenities:Carbon Monoxide Detector, Pantry, Smoke Detector, Washer/Dryer Hookup
Parking
- Total parking spaces:2
- Parking description:Driveway, Garage Attached
New listings near 320 Chateau Ln
- New
$489,000Active3 beds 2 baths1,420 sq. ft.178 S Canal Drive, Port St Joe, FL 32456
MLS# 788647Listed by: ANCHOR REALTY FLORIDA - New
$179,900Active1 Acres106 Yellowfin Dr, Port St. Joe, FL 32456
MLS# 328134Listed by: FORGOTTEN COAST REALTY OF NW FLORIDA - New
$1,449,900Active4 beds 4 baths2,330 sq. ft.372 Indian Pass Road, Port St. Joe, FL 32456
MLS# 1001371Listed by: RISH REAL ESTATE GROUP LLC - New
$239,900Active0.46 Acres337 Firehouse Road, Port St Joe, FL 32456
MLS# 788803Listed by: KELLER WILLIAMS SUCCESS REALTY - New
$539,000Active4 beds 2 baths1,946 sq. ft.1411 Monument Ave, Port St. Joe, FL 32456
MLS# 328125Listed by: FORGOTTEN COAST REALTY OF NW FLORIDA - New
$229,900Active0.46 Acres345 Firehouse Road, Port St Joe, FL 32456
MLS# 788790Listed by: KELLER WILLIAMS SUCCESS REALTY - New
$1,699,999Active3 beds 4 baths2,295 sq. ft.4415 Wavecrest Lane, Port St Joe, FL 32456
MLS# 788788Listed by: 98 REAL ESTATE GROUP, LLC - New
$525,000Active2 beds 1 baths1,200 sq. ft.10431 Cr 30-a, Port St. Joe, FL 32456
MLS# 328099Listed by: ROBINSON REAL ESTATE COMPANY - New
$265,000Active0.39 Acres392 Cape San Blas Rd, Port St. Joe, FL 32456
MLS# 328121Listed by: BAY PROPERTIES REAL ESTATE GROUP, LLC - New
$185,000Active0.37 Acres210 Driftwood Avenue, Port St Joe, FL 32456
MLS# 398977Listed by: YASMINE KHRINO