664 Norris Dr, Port Saint Joe, FL 32456
Local realty services provided by:CENTURY 21 First Story Real Estate
Upcoming open houses
- Sat, Apr 2511:00 am - 03:00 pm
- Sun, Apr 2601:00 pm - 04:00 pm
Listed by: mark miles
Office: dr horton realty of emerald coast, llc.
MLS#:322573
Source:FL_RAFGC
Price summary
- Price:$344,900
- Price per sq. ft.:$123.93
About this home
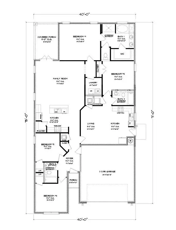
New home under construction in Port St Joe. Located at 664 Norris Drive. This homesite will feature the Kennedy floor plan which has 5 bedrooms, 3 full bathrooms and a 2-car garage. Inside you will find EVP flooring throughout, quartz countertops, and a center island in kitchen with beautiful white cabinetry. This kitchen is outfitted with a standard appliance package including stainless smooth top stove, microwave and dishwasher. This floor plan has a formal dining room and features the primary bedroom off the back of the home. The primary bedroom offers a full ensuite with separate shower and large soak tub. This amazing floor plan has a full laundry room that is perfectly sized as a place for additional shelving and storage. If you are looking for the perfect home that is close to all that Port St. Joe has to offer, look no further. Port St Joe Highschool is a short drive away, as well as historical downtown Port St. Joe. If you enjoy water recreation, you will find a public boat launch at Frank Pate Park less than 4 miles away. Homes are subject to prior sale or rent. Home and community information, association fees (if any), included features, terms, availability and amenities, are subject to change at any time without notice or obligation. Drawings, pictures, photographs, videos, square footages, floor plans, elevations, features, colors and sizes are for illustration purposes only and will vary from the homes as built. Landscaping and furnishings may be decorator items not included in the purchase price and may not be available....
Contact an agent
Home facts
- Year built:2025
- Listing ID #:322573
- Added:276 day(s) ago
- Updated:April 23, 2026 at 10:10 PM
Rooms and interior
- Bedrooms:5
- Total bathrooms:3
- Full bathrooms:3
- Flooring:Engineered, Vinyl
- Bathrooms Description:Garden Tub, Separate Shower
- Kitchen Description:Dishwasher, Disposal, Microwave, Pantry
- Living area:2,145 sq. ft.
Heating and cooling
- Central air:Yes
Structure and exterior
- Roof:Shingle
- Year built:2025
- Building area:2,145 sq. ft.
- Lot area:0.12 Acres
- Lot Features:Covenants/Restrictions, Recorded Subdivision
- Architectural Style:Craftsman
- Construction Materials:HardiPlank Type
- Foundation Description:Slab
Utilities
- Water:Public, Water Connected
- Sewer:Public Sewer, Sewer Connected
Finances and disclosures
- Price:$344,900
- Price per sq. ft.:$123.93
Features and amenities
- Laundry features:Washer/Dryer Hookup
- Amenities:Pantry, Smoke Detector, Washer/Dryer Hookup
Parking
- Total parking spaces:2
- Parking description:Driveway, Garage Attached
New listings near 664 Norris Dr
- New
$1,449,900Active4 beds 4 baths2,330 sq. ft.372 Indian Pass Road, Port St Joe, FL 32456
MLS# 788814Listed by: RISH REAL ESTATE GROUP - New
$239,900Active0.46 Acres337 Firehouse Road, Port St Joe, FL 32456
MLS# 788803Listed by: KELLER WILLIAMS SUCCESS REALTY - New
$539,000Active4 beds 2 baths1,946 sq. ft.1411 Monument Ave, Port St. Joe, FL 32456
MLS# 328125Listed by: FORGOTTEN COAST REALTY OF NW FLORIDA - New
$229,900Active0.46 Acres345 Firehouse Road, Port St Joe, FL 32456
MLS# 788790Listed by: KELLER WILLIAMS SUCCESS REALTY - New
$1,699,999Active3 beds 4 baths2,295 sq. ft.4415 Wavecrest Lane, Port St Joe, FL 32456
MLS# 788788Listed by: 98 REAL ESTATE GROUP, LLC - New
$525,000Active2 beds 1 baths1,200 sq. ft.10431 Cr 30-a, Port St. Joe, FL 32456
MLS# 328099Listed by: ROBINSON REAL ESTATE COMPANY - New
$265,000Active0.39 Acres392 Cape San Blas Rd, Port St. Joe, FL 32456
MLS# 328121Listed by: BAY PROPERTIES REAL ESTATE GROUP, LLC - New
$185,000Active0.37 Acres210 Driftwood Avenue, Port St Joe, FL 32456
MLS# 398977Listed by: YASMINE KHRINO - New
$225,000Active3 Acres481 Basswood Rd, Port St. Joe, FL 32456
MLS# 328112Listed by: 98 REAL ESTATE GROUP, LLC - New
$1,350,000Active5 beds 3 baths2,380 sq. ft.118 Pine Street, Port St Joe, FL 32456
MLS# 788674Listed by: THINK REAL ESTATE