106 Key Grass Court, Saint Johns, FL 32259
Local realty services provided by:CENTURY 21 Lighthouse Realty
Listed by: cindy gavin
Office: re/max specialists
MLS#:2126128
Source:JV
Price summary
- Price:$665,000
- Price per sq. ft.:$260.38
- Monthly HOA dues:$183
About this home
Welcome to this beautifully upgraded home in WaterSong at RiverTown, a gated, 55+ active adult community in St. Johns County where resort style living meets everyday comfort.
The gourmet kitchen features rich maple cabinetry, Silestone quartz countertops, a floor to ceiling backsplash, and a custom granite laundry countertop. A whole house reverse osmosis system connects to the kitchen sink, refrigerator, and utility tub.
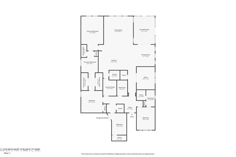
The primary suite offers an expanded bedroom with sitting area, dual walk in closets, and a spa inspired bath. Guests will appreciate the upgraded secondary ensuite with its own shower.
Designer finishes include crown molding, 4'' plantation shutters, decorator ceiling fans, a dramatic tiled dining accent wall, and tile flooring throughout.
The heated and air conditioned golf cart garage, not included in square footage, offers a finished 10' x 13' room, two oversized storage closets, a refrigerator outlet, and laundry tub. The oversized main garage includes custom heavy duty shelving, pull down attic stairs, and additional storage.
Enjoy year round Florida living in the enclosed lanai with vinyl windows and custom blinds. Professionally installed gutters and whole house surge protection provide added peace of mind.
Residents enjoy private, age restricted amenities including a pool, clubhouse, fitness center, and social events, plus full access to RiverTown amenities featuring walking and biking trails, kayak launches on the St. Johns River, multiple pools, a riverfront pier, and community events.
This home offers luxury, low maintenance living, and an active lifestyle in one of Northeast Florida's most desirable communities.
Contact an agent
Home facts
- Year built:2020
- Listing ID #:2126128
- Added:7 day(s) ago
- Updated:January 29, 2026 at 01:50 PM
Rooms and interior
- Bedrooms:3
- Total bathrooms:3
- Full bathrooms:3
- Living area:2,554 sq. ft.
Heating and cooling
- Cooling:Central Air, Electric
- Heating:Central, Electric
Structure and exterior
- Year built:2020
- Building area:2,554 sq. ft.
- Lot area:0.19 Acres
Utilities
- Water:Public, Water Connected
- Sewer:Public Sewer, Sewer Connected
Finances and disclosures
- Price:$665,000
- Price per sq. ft.:$260.38
New listings near 106 Key Grass Court
- Open Sat, 12 to 2pmNew
$499,000Active4 beds 3 baths2,159 sq. ft.542 Kendall Crossing Drive, St. Johns, FL 32259
MLS# 2127461Listed by: RE/MAX SPECIALISTS - New
$625,000Active4 beds 3 baths2,508 sq. ft.254 Oak Shadow Place, St. Johns, FL 32259
MLS# 2127462Listed by: IHEART REALTY INC - New
$215,000Active3 beds 2 baths1,152 sq. ft.1104 Harmony N Drive, St. Augustine, FL 32259
MLS# 2127467Listed by: LATITUDE 30 REALTY LLC - Open Sat, 11am to 1pmNew
$429,000Active4 beds 3 baths2,094 sq. ft.14433 Durbin Island Way, Jacksonville, FL 32259
MLS# 2124101Listed by: KELLER WILLIAMS ST JOHNS - New
$298,000Active2 beds 3 baths1,611 sq. ft.40 Viceroy Court, St. Augustine, FL 32092
MLS# 2127325Listed by: MOMENTUM REALTY - New
$950,000Active5 beds 5 baths3,851 sq. ft.230 Marquesa Circle, St. Johns, FL 32259
MLS# 2127241Listed by: RE/MAX SPECIALISTS PV - New
$469,000Active3 beds 2 baths1,648 sq. ft.277 Rambling Brook Trail, St. Johns, FL 32259
MLS# 2127262Listed by: RE/MAX SPECIALISTS PV - New
$395,000Active2 beds 2 baths1,566 sq. ft.59 Fly Line Drive, St. Johns, FL 32259
MLS# 2127280Listed by: EXP REALTY LLC - Open Sat, 11am to 2pmNew
$450,000Active4 beds 2 baths2,074 sq. ft.4309 Rye Court, St. Johns, FL 32259
MLS# 2127208Listed by: FIV REALTY CO FLORIDA LLC - Open Sat, 11am to 1pmNew
$650,000Active4 beds 3 baths2,678 sq. ft.252 Dalton Mill Drive, St. Johns, FL 32259
MLS# 2127207Listed by: FLORIDA HOMES REALTY & MTG LLC