106 Key Grass Court, Saint Johns, FL 32259
Local realty services provided by:CENTURY 21 Lighthouse Realty
Listed by: cindy gavin
Office: re/max specialists
MLS#:2139124
Source:JV
Price summary
- Price:$655,000
- Price per sq. ft.:$256.46
- Monthly HOA dues:$183
About this home
Welcome to this beautifully upgraded home in WaterSong at RiverTown, a gated, 55+ active adult community in St. Johns County where resort style living meets everyday comfort.
The gourmet kitchen features rich maple cabinetry, Silestone quartz countertops, a floor to ceiling backsplash, and a custom granite laundry countertop. A whole house reverse osmosis system connects to the kitchen sink, refrigerator, and utility tub.
The primary suite offers an expanded bedroom with sitting area, dual walk in closets, and a spa inspired bath. Guests will appreciate the upgraded secondary ensuite with its own shower.
Designer finishes include crown molding, 4'' plantation shutters, decorator ceiling fans, a dramatic tiled dining accent wall, and tile flooring throughout.
The heated and air conditioned golf cart garage, not included in square footage, offers a finished 10' x 13' room, two oversized storage closets, a refrigerator outlet, and laundry tub. The oversized main garage ncludes custom heavy duty shelving, pull down attic stairs, and additional storage.
Enjoy year round Florida living in the enclosed lanai with vinyl windows and custom blinds. Professionally installed gutters and whole house surge protection provide added peace of mind.
Residents enjoy private, age restricted amenities including a pool, clubhouse, fitness center, and social events, plus full access to RiverTown amenities featuring walking and biking trails, kayak launches on the St. Johns River, multiple pools, a riverfront pier, and community events.
This home offers luxury, low maintenance living, and an active lifestyle in one of Northeast Florida's most desirable communities....
Contact an agent
Home facts
- Year built:2020
- Listing ID #:2139124
- Added:1 day(s) ago
- Updated:April 09, 2026 at 01:48 PM
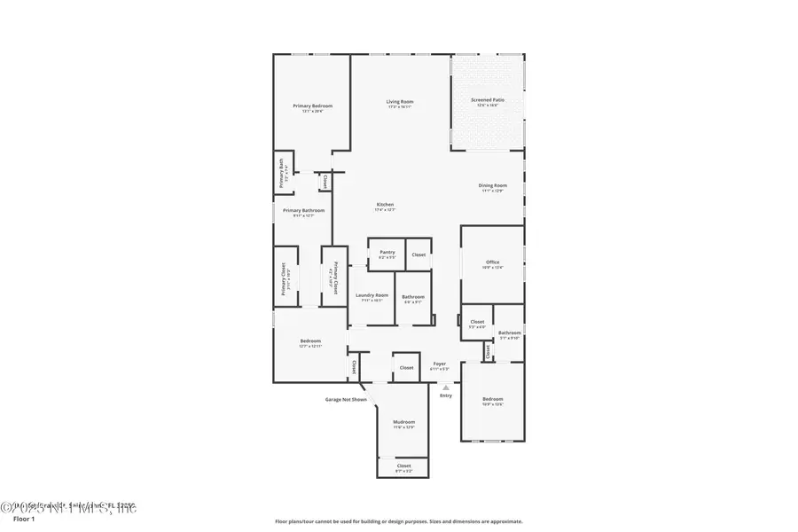
Rooms and interior
- Bedrooms:3
- Total bathrooms:3
- Full bathrooms:3
- Flooring:tile
- Bathrooms Description:Primary Bathroom - Shower No Tub
- Kitchen Description:Breakfast Bar, Dishwasher, Disposal, Gas Cooktop, Ice Maker, Kitchen Island, Microwave, Refrigerator, Water Softener Owned
- Bedroom Description:Split Bedrooms
- Living area:2,554 sq. ft.
Heating and cooling
- Cooling:Central Air, Electric
- Heating:Central, Electric
- Central air:Yes
Structure and exterior
- Year built:2020
- Building area:2,554 sq. ft.
- Lot area:0.19 Acres
- Architectural Style:Traditional
- Exterior Features:Porch, Screened
Utilities
- Water:Public, Water Connected
- Sewer:Public Sewer, Sewer Connected
Finances and disclosures
- Price:$655,000
- Price per sq. ft.:$256.46
Features and amenities
- Laundry features:Dryer, Washer
- Amenities:Boat Dock, Breakfast Bar, Clubhouse, Entrance Foyer, Fitness Center, Gated, Playground, Spa/Hot-tub, Split Bedrooms, Walk-In Closet(s)
Parking
- Parking description:Attached, Garage
- Garage:Yes
- Garage spaces:2
New listings near 106 Key Grass Court
- New
$298,900Active3 beds 3 baths1,602 sq. ft.219 Richmond Drive, St. Johns, FL 32259
MLS# 2139140Listed by: KELLER WILLIAMS JACKSONVILLE - New
$470,000Active4 beds 2 baths2,101 sq. ft.500 N Bridgestone Avenue, St. Johns, FL 32259
MLS# 2139121Listed by: MOMENTUM REALTY - New
$535,000Active3 beds 3 baths2,352 sq. ft.32 Valley Falls Way, St. Augustine, FL 32259
MLS# 2137420Listed by: JASON MITCHELL REAL ESTATE FLORIDA, LLC. - New
$365,000Active3 beds 2 baths1,372 sq. ft.122 Vicksburg Drive, St. Johns, FL 32259
MLS# 2137954Listed by: KELLER WILLIAMS ST JOHNS - New
$475,000Active4 beds 2 baths1,903 sq. ft.796 Grand Parke Drive, St. Johns, FL 32259
MLS# 2138154Listed by: BERKSHIRE HATHAWAY HOMESERVICES FLORIDA NETWORK REALTY - New
$1,199,000Active4 beds 5 baths4,349 sq. ft.67 Huguenot Lane, St. Johns, FL 32259
MLS# 2138465Listed by: ONE SOTHEBY'S INTERNATIONAL REALTY - New
$260,000Active2 beds 3 baths1,451 sq. ft.752 Ginger Mill Drive, Jacksonville, FL 32259
MLS# 2138590Listed by: THE WILKINS WAY - New
$599,900Active5 beds 4 baths3,126 sq. ft.213 Springwood Lane, St. Johns, FL 32259
MLS# 2139094Listed by: RE/MAX SPECIALISTS - New
$565,490Active2 beds 2 baths1,808 sq. ft.152 Headstream Drive, St. Johns, FL 32259
MLS# 2139025Listed by: PULTE REALTY OF NORTH FLORIDA, LLC.