122 Vicksburg Drive, Saint Johns, FL 32259
Local realty services provided by:CENTURY 21 North East
122 Vicksburg Drive,St. Johns, FL 32259
$365,000
- 3 Beds
- 2 Baths
- 1,372 sq. ft.
- Single family
- Active
Listed by: cole slate
Office: keller williams st johns
MLS#:2137954
Source:JV
Price summary
- Price:$365,000
- Price per sq. ft.:$266.03
- Monthly HOA dues:$4.42
About this home
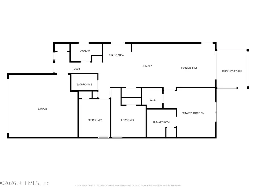
Welcome to 122 Vicksburg Drive in the RiverTown community, where thoughtful design meets everyday comfort. This home features an open floor plan that seamlessly connects the living and dining spaces, creating an inviting setting for both relaxing and entertaining. The beautifully designed kitchen is a standout, complete with a gas range, large island, stylish backsplash, and a bright breakfast nook. Step outside to a screened in back porch, perfect for enjoying Florida living year round. The primary suite offers a spacious walk in closet and a glass enclosed shower, creating a private retreat.
RiverTown residents enjoy resort style amenities including a riverfront pool, cafe and bar, tennis and basketball courts, scenic trails, dog parks, and a lazy river, creating a lifestyle where every day feels like a vacation.
Contact an agent
Home facts
- Year built:2020
- Listing ID #:2137954
- Added:1 day(s) ago
- Updated:April 10, 2026 at 12:52 PM
Rooms and interior
- Bedrooms:3
- Total bathrooms:2
- Full bathrooms:2
- Flooring:carpet, tile
- Bathrooms Description:Primary Bathroom - Shower No Tub
- Kitchen Description:Dishwasher, Disposal, Gas Range, Kitchen Island, Microwave, Refrigerator
- Living area:1,372 sq. ft.
Heating and cooling
- Cooling:Central Air
- Heating:Central
- Central air:Yes
Structure and exterior
- Roof:Shingle
- Year built:2020
- Building area:1,372 sq. ft.
- Lot area:0.1 Acres
- Exterior Features:Porch, Screened
Schools
- High school:Bartram Trail
- Middle school:Hallowes Cove Academy
- Elementary school:Hallowes Cove Academy
Utilities
- Water:Public
Finances and disclosures
- Price:$365,000
- Price per sq. ft.:$266.03
- Tax amount:$5,461 (2025)
Features and amenities
- Laundry features:Dryer, Washer
- Amenities:Basketball Court, Clubhouse, Fitness Center, Jogging Path, Playground, Tennis Court(s), Walk-In Closet(s)
Parking
- Parking description:Attached, Garage
- Garage:Yes
- Garage spaces:2
New listings near 122 Vicksburg Drive
- Open Sat, 1 to 4pmNew
$1,149,000Active5 beds 4 baths4,280 sq. ft.240 St Johns Forest Boulevard, St. Johns, FL 32259
MLS# 2139331Listed by: RE/MAX SPECIALISTS - Open Sat, 2 to 4pmNew
$649,900Active5 beds 3 baths3,346 sq. ft.1124 Ashmore Drive, St. Johns, FL 32259
MLS# 2139325Listed by: ROOT REALTY LLC - New
$965,000Active5 beds 5 baths3,943 sq. ft.588 Oxford Estates Way, St. Johns, FL 32259
MLS# 2138899Listed by: ERA ONETEAM REALTY - New
$655,000Active3 beds 2 baths2,494 sq. ft.728 Navigators Road, St. Johns, FL 32259
MLS# 2139299Listed by: BERKSHIRE HATHAWAY HOMESERVICES FLORIDA NETWORK REALTY - New
$750,000Active5 beds 4 baths3,228 sq. ft.200 Ravensbury Way, St. Johns, FL 32259
MLS# 2139243Listed by: RE/MAX SPECIALISTS - New
$1,050,000Active5 beds 5 baths3,445 sq. ft.195 Glenneyre Cir, St Augustine, FL 32092
MLS# 261775Listed by: KELLER WILLIAMS REALTY ATLANTIC PARTNERS ST AUGUSTINE - New
$1,224,900Active5 beds 4 baths3,957 sq. ft.111 Ranch Land Circle, St. Johns, FL 32259
MLS# 2139218Listed by: HOME SOLD REALTY LLC - Open Sat, 12 to 2pmNew
$675,000Active5 beds 3 baths3,111 sq. ft.36 Delano Street, St. Johns, FL 32259
MLS# 2139229Listed by: EPIQUE REALTY, INC - New
$1,050,000Active5 beds 5 baths3,445 sq. ft.195 Glenneyre Circle, St. Augustine, FL 32092
MLS# 2139233Listed by: KELLER WILLIAMS REALTY ATLANTIC PARTNERS ST. AUGUSTINE - New
$568,810Active5 beds 3 baths2,277 sq. ft.36 Aileron Lane, St. Johns, FL 32259
MLS# 2139235Listed by: PULTE REALTY OF NORTH FLORIDA, LLC.