128 Ricardo Way Ne, Saint Petersburg, FL 33704
Local realty services provided by:CENTURY 21 Affiliates
Listed by: clay glover, jr
Office: re/max action first of florida
MLS#:TB8452496
Source:MFRMLS
Price summary
- Price:$2,595,000
- Price per sq. ft.:$483.96
About this home
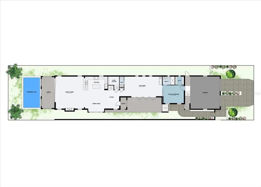
Welcome to 126 and 128 Ricardo Way, a rare new-construction offering in sought-after Snell Isle, perfectly positioned along the Vinoy Golf Course and just minutes from vibrant downtown St. Petersburg. One of only two custom homes in the exclusive Coastal Course Collection with direct fairway views, these residences deliver privacy, prestige, and an unbeatable location. Offering approximately 3,850 square feet of air-conditioned living space, each thoughtfully designed home features 4 bedrooms and 3.5 baths, blending elegant entertaining spaces with everyday livability. The open-concept main level includes a flexible first-floor bonus room with en-suite bath, ideal for guests, a home office, or multigenerational living, along with a custom wet bar and wine cellar. The great room is anchored by a gas fireplace and opens seamlessly to a covered porch overlooking the pool, spa, manicured landscaping, and lush golf course views. Accordion-style floor-to-ceiling windows flood the space with natural light and create effortless indoor-outdoor living—perfect for Florida’s lifestyle. The chef’s kitchen features custom wood cabinetry, quartz countertops, high-end Bosch stainless-steel appliances, and a large center island, ideal for entertaining or casual gatherings. Upstairs, the primary suite is a true private retreat, featuring its own gas fireplace, dual walk-in closets, and a spa-inspired bath with soaking tub, walk-in shower, and double vanity. The suite opens to a large second-floor balcony overlooking the Vinoy Golf Course, providing elevated views and exceptional outdoor living. Two additional bedrooms, a designer Jack-and-Jill bath, and a second-floor gathering space complete the upper level. Additional highlights include hand-scraped hardwood floors, tray ceilings, designer lighting, custom railings, a tankless gas water heater, privacy walls, and a two-car garage. Built with solid block construction above the floodplain, these homes are truly high and dry with no storm damage—a critical and increasingly rare advantage on Snell Isle. Impact-rated windows and doors, a metal roof, and premium materials throughout ensure durability, efficiency, and peace of mind. Enjoy the ability to bike or golf-cart into downtown St. Petersburg, where fine dining, museums, shopping, professional baseball, and the iconic waterfront pier await. With new construction on the Vinoy Golf Course nearly nonexistent, 126 and 128 Ricardo Way represent a rare opportunity to own a high-elevation luxury residence in one of the city’s most coveted neighborhoods.
Contact an agent
Home facts
- Year built:2024
- Listing ID #:TB8452496
- Added:705 day(s) ago
- Updated:January 08, 2026 at 01:00 PM
Rooms and interior
- Bedrooms:4
- Total bathrooms:4
- Full bathrooms:3
- Half bathrooms:1
- Living area:3,850 sq. ft.
Heating and cooling
- Cooling:Central Air
- Heating:Central
Structure and exterior
- Roof:Metal
- Year built:2024
- Building area:3,850 sq. ft.
- Lot area:0.17 Acres
Utilities
- Water:Public, Water Connected
- Sewer:Public Sewer, Sewer Connected
Finances and disclosures
- Price:$2,595,000
- Price per sq. ft.:$483.96
- Tax amount:$8,320 (2023)
New listings near 128 Ricardo Way Ne
- New
$899,999Active2 beds 3 baths1,593 sq. ft.233 8th Street N, ST PETERSBURG, FL 33701
MLS# TB8461699Listed by: FRIENDS REALTY LLC - New
$310,000Active2 beds 1 baths810 sq. ft.8020 25th Avenue N, ST PETERSBURG, FL 33710
MLS# TB8462141Listed by: MC HOMES REALTY INC - New
$1,550,000Active3 beds 2 baths1,715 sq. ft.4200 46th Avenue S, ST PETERSBURG, FL 33711
MLS# TB8459277Listed by: COASTAL PROPERTIES GROUP INTERNATIONAL - New
$289,900Active2 beds 1 baths842 sq. ft.5310 71st Way N, ST PETERSBURG, FL 33709
MLS# TB8461974Listed by: CHARLES RUTENBERG REALTY INC - New
$359,000Active2 beds 2 baths1,448 sq. ft.7127 Mount Piney Road Ne #718, ST PETERSBURG, FL 33702
MLS# TB8462093Listed by: BAREFOOT REALTY GROUP - New
$374,500Active4 beds 2 baths1,540 sq. ft.4200 4th Avenue S, ST PETERSBURG, FL 33711
MLS# C7519818Listed by: ERA ADVANTAGE REALTY, INC. - New
$479,000Active3 beds 2 baths1,679 sq. ft.1735 Connecticut Avenue Ne, ST PETERSBURG, FL 33703
MLS# TB8462010Listed by: OAKSTRAND REALTY - New
$560,000Active4 beds 2 baths1,308 sq. ft.1043 7th Avenue N, ST PETERSBURG, FL 33705
MLS# TB8462029Listed by: EPIQUE REALTY, INC. - New
$259,900Active4 beds 2 baths1,575 sq. ft.2421 11th Street S, ST PETERSBURG, FL 33705
MLS# TB8458180Listed by: INVESTORS CHOICE REALTY - New
$750,000Active1 beds 2 baths1,007 sq. ft.175 1st Street S #510, ST PETERSBURG, FL 33701
MLS# TB8459452Listed by: MICHAEL SAUNDERS & COMPANY