2701 20th Street S, Saint Petersburg, FL 33712

Local realty services provided by:CENTURY 21 Alliance Realty Group
2701 20th Street S,St Petersburg, FL 33712
$1,799,900
  • 3.37 Acres
  • Lots / Land
  • Active
Listed by: brian smith
Office: ghd realty of pinellas inc
MLS#:U8149214
Source:MFRMLS

Price summary

  • Price:$1,799,900

About this home

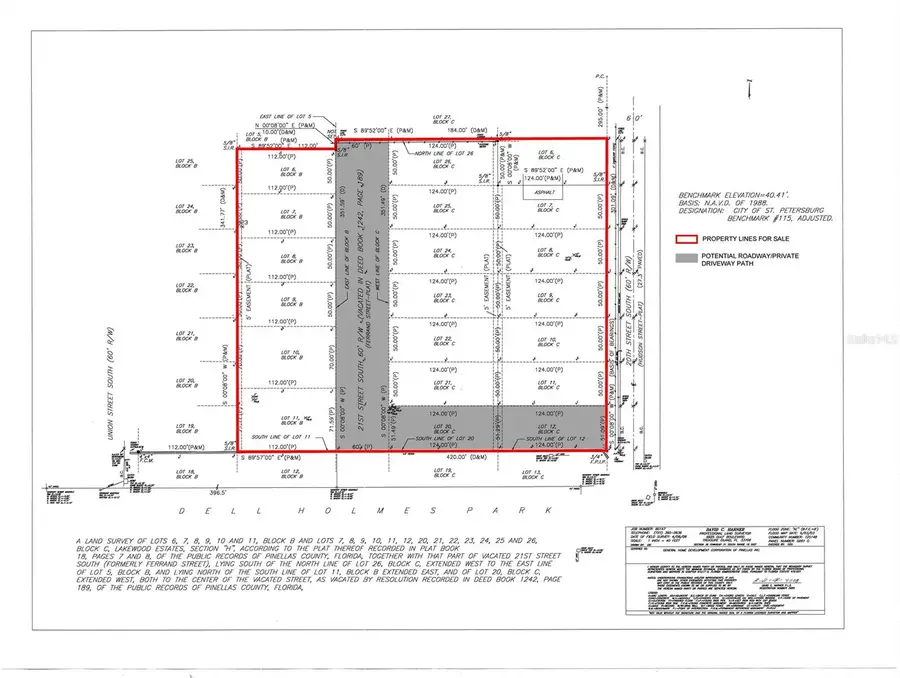
ENTIRE City block that will have up to 26 brand new contiguous homes as a community!! 6 of those homes/lots are already under construction on the far West side and not for sale. The balance of the property that is for sale is the already platted 20 lots and zoned for single family homes (Blk C, Lot 6 is included). Rare opportunity to have this size of a cluster in the City for all new construction. Interior road/driveway, water and sewer lines need to be added for services and access to the middle lots.

Contact an agent

contact an agent

Yes, I would like more information. Please use and/or share my information with an independent agent affiliated with the CENTURY 21®  brand to contact me about my real estate needs. By clicking Send message, I request to be contacted by phone or text message and consent to being contacted by automated means. I understand that my consent to receive calls or texts is not a condition of purchasing any property, goods, or services. Alternatively, I understand that I can access real estate services by email or I can contact the agent myself.

If an independent agent affiliated with the CENTURY 21®  brand is not available in the area where I need assistance, I agree to be contacted by a real estate agent affiliated with another brand owned or licensed by Anywhere Real Estate (BHGRE® , Coldwell Banker® , Corcoran® , ERA® , Sotheby's International Realty® ).
 I acknowledge that I have read and agree to theTerms of useandPrivacy notice

Home facts

  • Listing ID #:U8149214
  • Added:1145 day(s) ago
  • Updated:March 18, 2026 at 12:03 PM

Structure and exterior

  • Lot area:3.37 Acres
  • Lot Features:Cleared, Cul-de-sac, Flood Plain/Bottom Land, Near Public Transit
  • Levels:1 Story

Utilities

  • Water:Public, Water Nearby
  • Sewer:Public Sewer, Sewer Nearby

Finances and disclosures

  • Price:$1,799,900
  • Tax amount:$5,360 (2021)

Features and amenities

  • Amenities:Cable Available, Phone Available
  • Pool features:Public Pool
MLS LogoThe information being provided by Stellar Mls is for the consumer's personal, non-commercial use and may not be used for any purpose other than to identify prospective properties consumer may be interested in purchasing. Any information relating to real estate for sale referenced on this web site comes from the Internet Data Exchange (IDX) program of the Stellar Mls. CENTURY 21 Alliance Realty Group is not a Multiple Listing Service (MLS), nor does it offer MLS access. This website is a service of CENTURY 21 Alliance Realty Group, a broker participant of Stellar Mls. This web site may reference real estate listing(s) held by a brokerage firm other than the broker and/or agent who owns this web site. The accuracy of all information, regardless of source, including but not limited to open house information, square footages and lot sizes, is deemed reliable but not guaranteed and should be personally verified through personal inspection by and/or with the appropriate professionals. The data contained herein is copyrighted by Stellar Mls and is protected by all applicable copyright laws. Any unauthorized dissemination of this information is in violation of copyright laws and is strictly prohibited. Properties in listings may have been sold or may no longer be available. Copyright 2026 Stellar Mls. All rights reserved.