9805 Alysheba Court, Sun City Center, FL 33573

Local realty services provided by:CENTURY 21 Circle
9805 Alysheba Court,Sun City Center, FL 33573
$433,500
  • 6 Beds
  • 3 Baths
  • 3,362 sq. ft.
  • Single family
  • Pending
Listed by: katie greene
Office: boardwalk realty associates, llc.
MLS#:TB8420363
Source:MFRMLS

Price summary

  • Price:$433,500
  • Price per sq. ft.:$112.36
  • Monthly HOA dues:$13.75

About this home

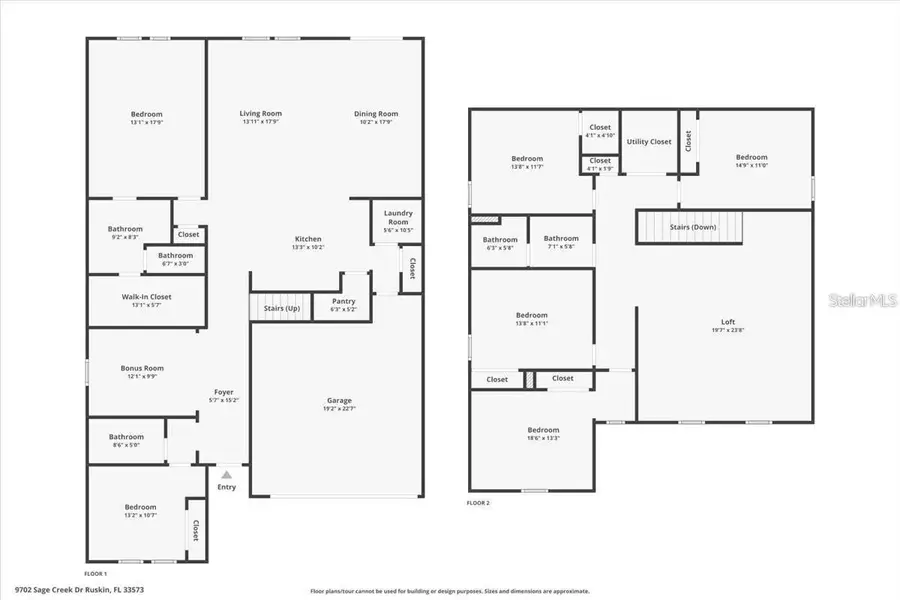
PRICED TO SELL! New Interior Paint! Beautiful and spacious 6-bedroom, 3-bath home in the highly desirable Belmont community of Ruskin. Perfect for families, this home offers a first-floor master suite plus an additional bedroom and bath ideal for in-laws or guests. The open great room combines the family and dining areas with sliders leading to a serene pond view and large backyard. The elegant kitchen features granite countertops, stainless steel appliances, and a walk-in pantry. A versatile flex/bonus room on the first floor can serve as a formal dining room or office. Upstairs, enjoy a massive enclosed loft (20x24), perfect as a media or game room, along with four generously sized bedrooms ranging from 14x12 to 15x11—much larger than most new builds today. Ceramic tile flooring extends throughout the main living areas, with carpet in the loft and bedrooms. Additional highlights include a tankless hot water heater and energy-efficient features. Belmont residents enjoy resort-style...

Contact an agent

contact an agent

Yes, I would like more information. Please use and/or share my information with an independent agent affiliated with the CENTURY 21®  brand to contact me about my real estate needs. By clicking Send message, I request to be contacted by phone or text message and consent to being contacted by automated means. I understand that my consent to receive calls or texts is not a condition of purchasing any property, goods, or services. Alternatively, I understand that I can access real estate services by email or I can contact the agent myself.

If an independent agent affiliated with the CENTURY 21®  brand is not available in the area where I need assistance, I agree to be contacted by a real estate agent affiliated with another brand owned or licensed by Anywhere Real Estate (BHGRE® , Coldwell Banker® , Corcoran® , ERA® , Sotheby's International Realty® ).
 I acknowledge that I have read and agree to theTerms of useandPrivacy notice

Home facts

  • Year built:2020
  • Listing ID #:TB8420363
  • Added:232 day(s) ago
  • Updated:April 25, 2026 at 07:46 AM

Rooms and interior

  • Bedrooms:6
  • Total bathrooms:3
  • Full bathrooms:3
  • Flooring:Carpet, Ceramic Tile
  • Dining Description:Eat In Kitchen
  • Kitchen Description:Dishwasher, Disposal, Eat-in Kitchen, Kitchen/Family Room Combo, Microwave, Range, Refrigerator, Stone Counters
  • Bedroom Description:Walk-In Closet(s)
  • Living area:3,362 sq. ft.

Heating and cooling

  • Cooling:Central Air
  • Heating:Central
  • Central air:Yes

Structure and exterior

  • Roof:Shingle
  • Year built:2020
  • Building area:3,362 sq. ft.
  • Lot area:0.17 Acres
  • Construction Materials:Block, Stucco
  • Foundation Description:Slab
  • Levels:1 Story

Schools

  • High school:Sumner High School
  • Middle school:Eisenhower-HB
  • Elementary school:Belmont Elementary School

Utilities

  • Water:Public
  • Sewer:Public, Public Sewer

Finances and disclosures

  • Price:$433,500
  • Price per sq. ft.:$112.36
  • Tax amount:$8,628 (2024)

Features and amenities

  • Appliances:Dishwasher, Disposal, Dryer, Irrigation Equipment, Microwave, Range, Refrigerator, Tankless Water Heater, Washer
  • Laundry features:Dryer, Inside, Washer
  • Amenities:Ceiling Fans(s), Eat-in Kitchen, Irrigation Equipment, Kitchen/Family Room Combo, Open Floorplan, Stone Counters, Walk-In Closet(s)
  • Pool features:Public Pool

Parking

  • Parking description:Attached Garage
  • Garage:Yes
  • Garage spaces:2
MLS LogoThe information being provided by Stellar Mls is for the consumer's personal, non-commercial use and may not be used for any purpose other than to identify prospective properties consumer may be interested in purchasing. Any information relating to real estate for sale referenced on this web site comes from the Internet Data Exchange (IDX) program of the Stellar Mls. CENTURY 21 Circle is not a Multiple Listing Service (MLS), nor does it offer MLS access. This website is a service of CENTURY 21 Circle, a broker participant of Stellar Mls. This web site may reference real estate listing(s) held by a brokerage firm other than the broker and/or agent who owns this web site. The accuracy of all information, regardless of source, including but not limited to open house information, square footages and lot sizes, is deemed reliable but not guaranteed and should be personally verified through personal inspection by and/or with the appropriate professionals. The data contained herein is copyrighted by Stellar Mls and is protected by all applicable copyright laws. Any unauthorized dissemination of this information is in violation of copyright laws and is strictly prohibited. Properties in listings may have been sold or may no longer be available. Copyright 2026 Stellar Mls. All rights reserved.