2758 Deborah Drive, Tallahassee, FL 32310
Local realty services provided by:CENTURY 21 Beggins Enterprises
Listed by: suzanne mcghee
Office: mattox realty, inc
MLS#:397593
Source:FL_TBR
Price summary
- Price:$395,900
- Price per sq. ft.:$279.99
About this home
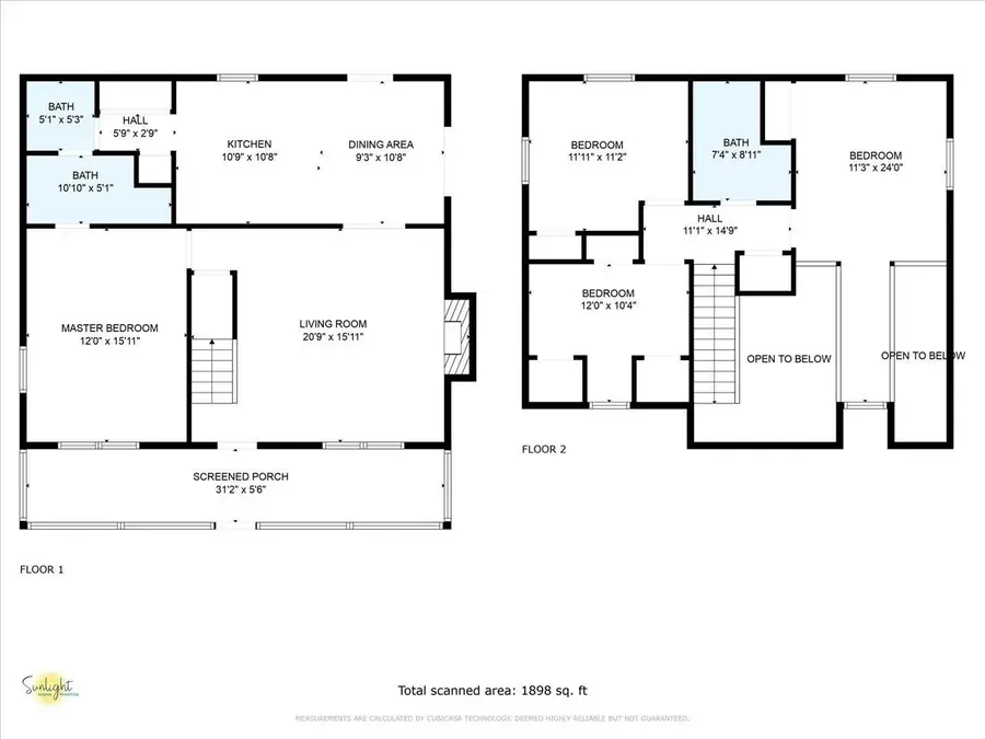
Lakefront home with a cozy living room with vaulted ceiling and wood burning fireplace. Living room opens to lakeside sunroom with mylar sliding windows (heated&cooled but is not included in total SqFt). Open kitchen/dining area. Primary BR with walk-in closet and bath on main floor. Three bedrooms and full bath on 2nd floor. Gardeners will love this yard and the flowering trees and plants. Boat house with boat lift and fishing dock! || Roof 2021, Range 2022, Refrigerator 2024, New LVP flooring. Lake Talquin Living in the beautiful Parramore Shores community, perfect for walking and biking...! This area is surrounded by Lake Talquin State Forest and the Apalachicola National Forest. Enjoy 'laidback living' just minutes from downtown Tallahassee, TLH international Airport, Ft. Braden community center, library and school... Lake Talquin is a ~8800 acre lake, enjoy fishing, water sports, an abundance of wild life and miles of shoreline to explore. Thank you for your interest in Lake Talquin Living! Boundary lines noted on photos are approximate....
Contact an agent
Home facts
- Year built:1990
- Listing ID #:397593
- Added:33 day(s) ago
- Updated:April 23, 2026 at 03:11 PM
Rooms and interior
- Bedrooms:4
- Total bathrooms:2
- Full bathrooms:2
- Kitchen Description:Dishwasher, Ice Maker, Oven, Pantry, Range, Refrigerator
- Bedroom Description:Split Bedrooms
- Living area:1,414 sq. ft.
Heating and cooling
- Cooling:Ceiling Fans, Central Air, Electric
- Heating:Central, Electric, Wood
- Central air:Yes
Structure and exterior
- Year built:1990
- Building area:1,414 sq. ft.
- Lot area:0.6 Acres
- Architectural Style:Traditional
- Construction Materials:Vinyl Siding
- Exterior Features:Porch, Screened
Schools
- High school:GODBY
- Middle school:FT. BRADEN
- Elementary school:FT. BRADEN
Utilities
- Sewer:Septic Tank
Finances and disclosures
- Price:$395,900
- Price per sq. ft.:$279.99
Features and amenities
- Laundry features:Dryer, Washer
- Amenities:Window Treatments
Parking
- Parking description:Driveway
New listings near 2758 Deborah Drive
- New
$400,000Active5 beds 2 baths2,652 sq. ft.4890 Chaires Cross Road, Tallahassee, FL 32317
MLS# 399049Listed by: THE NAUMANN GROUP REAL ESTATE - New
$275,000Active3 beds 2 baths1,244 sq. ft.3272 Addison Lane, Tallahassee, FL 32317
MLS# 399051Listed by: COLDWELL BANKER HARTUNG - New
$4,500Active2 AcresXX Driftwood Court, Tallahassee, FL 32317
MLS# 399052Listed by: HAMILTON REALTY ADVISORS LLC - New
$149,000Active1 beds 1 baths1,234 sq. ft.2801 Chancellorsville Drive #1333, Tallahassee, FL 32312
MLS# 399054Listed by: SOLID GROUND REAL ESTATE GROUP - New
$665,000Active4 beds 3 baths2,872 sq. ft.2250 Cobb Drive, Tallahassee, FL 32312
MLS# B26019549Listed by: SUNNY AND ASSOCIATES - New
$685,000Active3 beds 2 baths1,820 sq. ft.22545 Frances Way, Tallahassee, FL 32310
MLS# 399046Listed by: MATTOX REALTY, INC - New
$360,000Active-- beds -- baths2,040 sq. ft.2517 Old Bainbridge Road, Tallahassee, FL 32303
MLS# 399047Listed by: FENSTERMAKER & ASSOCIATES REAL - Open Sat, 12 to 2pmNew
$80,000Active4 beds 1 baths1,140 sq. ft.3518 Sunnyside Drive, Tallahassee, FL 32305
MLS# 399048Listed by: KELLER WILLIAMS TOWN & COUNTRY - New
$125,000Active1 AcresLot 27 Barbary Dr, Tallahassee, FL 32309
MLS# 328128Listed by: SEA CREST REAL ESTATE, INC. - Open Sun, 2 to 4pmNew
$300,000Active3 beds 2 baths1,564 sq. ft.3837 Windermere Road, Tallahassee, FL 32311
MLS# 399037Listed by: KELLER WILLIAMS TOWN & COUNTRY