3209 W Bay Vista Avenue, Tampa, FL 33611
Local realty services provided by:CENTURY 21 North East
Listed by: aaron schmidt
Office: schmidt real estate, inc.
MLS#:TB8320232
Source:MFRMLS
Price summary
- Price:$2,749,900
- Price per sq. ft.:$582.61
About this home
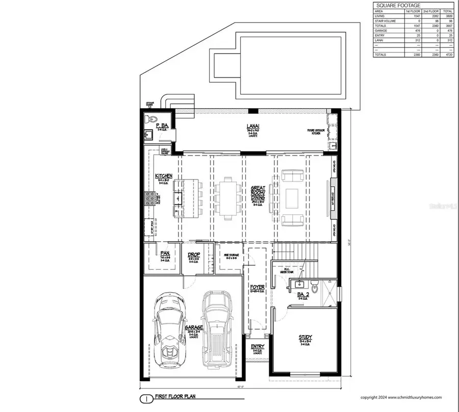
Located in the highly desirable Boulevard Heights neighborhood within the acclaimed Plant school district, 3209 W Bay Vista Avenue is a state-of-the-art preconstruction, luxury single-family home that boasts outstanding features designed with both hurricane hardening and climate resilience in mind. The entire home is built to meet or exceed the latest wind and FEMA flood requirements, with masonry exterior walls on both the first and second floors. It features "Impact Rated" insulated Lo-E windows and sliding glass doors, a hurricane wind zone (W6) rated "Modern Grooved" insulated garage door, and open cell foam insulation. Additionally, it has a generator switch prewire and gas plumbing for the generator, range, and tankless water heater, as well as a hardwired security system with camera-ready prewire points at all four outside corners.
The contemporary modern architecture and design of the home include a modern exterior with clean lines and multiple mixed design surfaces, complemented by opulent contemporary interior design selections and fixtures. Inside, you'll find a custom horizontal cable railing for the interior stairs, a modern linear fireplace, and a stunning floor-to-ceiling double-sided glass wine enclosure. The lavish gourmet kitchen is equipped with Thermador appliances, including a built-in refrigerator and freezer, a commercial Thermador gas range and hood with a full-height quartz backsplash and pot filler, and a built-in espresso machine, wall oven, dishwasher, and microwave drawer. The spacious quartz island and kitchen layout provide plenty of room for culinary creations.
The extravagant resort-style master wing features spacious, coffered 11-foot ceilings in the dressing area, master bedroom, and master closet. It includes a full-length three-sided mirror, an ensuite dressing area, a private morning bar/wet bar, and a massive shower and tub wet area with frameless glass panels and floor-to-ceiling tile. Outstanding design features throughout the home include 11’4” first-floor ceilings and 10’-11’ second-floor ceilings with 8-foot-tall doors, private en-suite baths for all bedrooms, and custom-selected luxury flooring and bath tile. The flex space on the second-floor loft area can be customized as a second home office, in-law suite, or home theater.
The custom pool package completes the luxurious outdoor living experience, featuring a sun shelf, color LED lights, Pebble Tec interior, bubbler fountain, and bullnose coping. This home perfectly blends modern design with practical resilience, offering a safe and stylish living environment in a highly sought-after location in the Plant High school district.
Contact an agent
Home facts
- Year built:2025
- Listing ID #:TB8320232
- Added:395 day(s) ago
- Updated:December 14, 2025 at 01:00 PM
Rooms and interior
- Bedrooms:4
- Total bathrooms:5
- Full bathrooms:4
- Half bathrooms:1
- Living area:3,907 sq. ft.
Heating and cooling
- Cooling:Central Air
- Heating:Central, Heat Pump
Structure and exterior
- Year built:2025
- Building area:3,907 sq. ft.
- Lot area:0.23 Acres
Schools
- High school:Plant-HB
- Middle school:Coleman-HB
- Elementary school:Roosevelt-HB
Utilities
- Water:Public, Water Available
- Sewer:Public Sewer, Sewer Available
Finances and disclosures
- Price:$2,749,900
- Price per sq. ft.:$582.61
- Tax amount:$7,024 (2023)
New listings near 3209 W Bay Vista Avenue
- New
$284,900Active2 beds 1 baths648 sq. ft.2102 E Caracas Street, TAMPA, FL 33610
MLS# TB8456086Listed by: LA ROSA REALTY CENTRAL FLORIDA - New
$350,000Active4 beds 2 baths1,745 sq. ft.820 Ambassador Loop, TAMPA, FL 33613
MLS# TB8455830Listed by: COLDWELL BANKER REALTY - New
$265,000Active4 beds 2 baths1,134 sq. ft.1405 E Holland Avenue #A, TAMPA, FL 33612
MLS# TB8456396Listed by: RESULTS REAL ESTATE INC - New
$270,000Active3 beds 1 baths966 sq. ft.2119 W Chestnut Street, TAMPA, FL 33607
MLS# TB8456313Listed by: LPT REALTY, LLC - New
$650,000Active4 beds 2 baths2,849 sq. ft.10408 Reclinata Lane, TAMPA, FL 33618
MLS# TB8456087Listed by: FUTURE HOME REALTY INC - Open Sun, 12am to 2pmNew
$405,000Active3 beds 2 baths1,752 sq. ft.4129 Northmeadow Circle, TAMPA, FL 33618
MLS# TB8456319Listed by: EXIT SUNCOAST REALTY - New
$230,000Active2 beds 2 baths1,140 sq. ft.9088 Lake Chase Island Way #9088, TAMPA, FL 33626
MLS# TB8456334Listed by: MCBRIDE KELLY & ASSOCIATES
$380,000Pending3 beds 1 baths1,818 sq. ft.7812 N 57th Street, TAMPA, FL 33617
MLS# TB8456365Listed by: FLORIDA COMMERCIAL GROUP- New
$190,500Active2 beds 3 baths1,037 sq. ft.4010 Oak Limb Court, TAMPA, FL 33614
MLS# TB8455900Listed by: INTL. REALTY PLUS-TAMPA BAY - New
$169,000Active1 beds 1 baths631 sq. ft.1000 W Horatio Street #212, TAMPA, FL 33606
MLS# TB8456363Listed by: REAL ESTATE WITH AN ACCENT LLC