1032 Lakes Boulevard, Brunswick, GA 31525
Local realty services provided by:
Listed by: kathy ballowe, kristy theiling
Office: dr horton realty of georgia
MLS#:1659178
Source:GA_GIAR
Price summary
- Price:$363,990
- Price per sq. ft.:$165.22
- Monthly HOA dues:$66.67
About this home
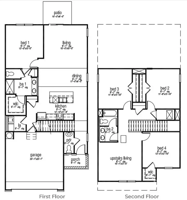
Coming soon a Lakeview home! Welcome to The Lakes at North Glynn in Brunswick, Georgia just minutes from shops, schools, and coastal attractions. The Lakes at North Glynn is an amenity-rich community with a planned swimming pool, clubhouse, and open-air pavilion for residents to enjoy. Sidewalk-lined streets make it easy to walk to nearby schools and the North Glynn Recreation Complex across the street complete with ball fields, tennis and pickleball courts, skate park, dog park, fishing lake, and walking trails. The Manning plan features a spacious, open floorplan with a chef’s kitchen, large central quartz island, and stainless-steel appliances. The kitchen opens to the dining area and a generous family room with sliding door access to the back patio perfect for indoor-outdoor living and entertaining. The primary suite is conveniently located on the main level and boasts a double vanity bath, large walk-in shower, and a huge walk-in closet. A convenient laundry room is located just off the two-car garage for everyday ease. Home is under construction. Pictures, photographs, colors, features, and sizes are for illustration purposes only and will vary from the home as built. Photos are not of the subject home. More information on programs and options are available for this home....
Contact an agent
Home facts
- Year built:2026
- Listing ID #:1659178
- Added:75 day(s) ago
- Updated:April 03, 2026 at 03:04 PM
Rooms and interior
- Bedrooms:4
- Total bathrooms:3
- Full bathrooms:2
- Half bathrooms:1
- Rooms Total:9
- Flooring:Vinyl
- Kitchen Description:Breakfast Bar, Dishwasher, Disposal, Kitchen Island, Microwave, Oven, Pantry, Range
- Living area:2,203 sq. ft.
Heating and cooling
- Cooling:Central Air, Electric
- Heating:Central, Electric
- Central air:Yes
Structure and exterior
- Year built:2026
- Building area:2,203 sq. ft.
- Lot area:0.15 Acres
- Architectural Style:Ranch
- Construction Materials:Vinyl Siding
- Foundation Description:Slab
- Levels:2 Story
Schools
- High school:Brunswick High School
- Middle school:Needwood Middle
- Elementary school:C. B. Greer
Utilities
- Water:Public
- Sewer:Public Sewer
Finances and disclosures
- Price:$363,990
- Price per sq. ft.:$165.22
Features and amenities
- Laundry features:Dryer Hookup, Laundry Room, Washer Hookup
- Amenities:Pull Down Attic Stairs
Parking
- Parking description:Attached
- Garage:Yes
- Garage spaces:2
New listings near 1032 Lakes Boulevard
- New
$444,900Active4 beds 2 baths1,915 sq. ft.23 Clover Mill Point, Brunswick, GA 31525
MLS# 10725406Listed by: Driggers Realty Inc. - New
$445,000Active4 beds 3 baths2,848 sq. ft.140 Clearwater Drive, Brunswick, GA 31523
MLS# 1660972Listed by: SOUTHERN CLASSIC, REALTORS - New
$129,900Active3 beds 1 baths836 sq. ft.2416 Union Street, Brunswick, GA 31520
MLS# 10725312Listed by: Homecoin.com - New
$64,900Active0.41 Acres415/417 Holmes Road, Brunswick, GA 31523
MLS# 1661032Listed by: KELLER WILLIAMS REALTY GOLDEN ISLES - New
$44,900Active0.28 Acres411 Holmes Road, Brunswick, GA 31523
MLS# 1661033Listed by: KELLER WILLIAMS REALTY GOLDEN ISLES - New
$54,900Active0.31 Acres408 Holmes Road, Brunswick, GA 31523
MLS# 1661035Listed by: KELLER WILLIAMS REALTY GOLDEN ISLES - New
$65,000Active0.63 Acres324 Salt Creek Way E, Brunswick, GA 31523
MLS# 1661029Listed by: BHHS HODNETT COOPER REAL ESTATE - New
$67,500Active0.61 Acres270 Salt Creek Way E, Brunswick, GA 31523
MLS# 1661030Listed by: BHHS HODNETT COOPER REAL ESTATE - New
$92,500Active1.65 Acres469 Salt Creek Way E, Brunswick, GA 31523
MLS# 1661031Listed by: BHHS HODNETT COOPER REAL ESTATE - New
$54,000Active0.48 Acres214 Harbor Pointe Drive, Brunswick, GA 31523
MLS# 10724919Listed by: BHHS Hodnett Cooper Real Estate