5360 Memento Trace, Cumming, GA 30040
Local realty services provided by:CENTURY 21 Novus
5360 Memento Trace,Cumming, GA 30040
$927,667
- 4 Beds
- 4 Baths
- 3,600 sq. ft.
- Single family
- Active
Listed by: kristen triplett gideon770-541-5250
Office: eah brokerage, lp
MLS#:7714833
Source:FIRSTMLS
Price summary
- Price:$927,667
- Price per sq. ft.:$257.69
- Monthly HOA dues:$300
About this home
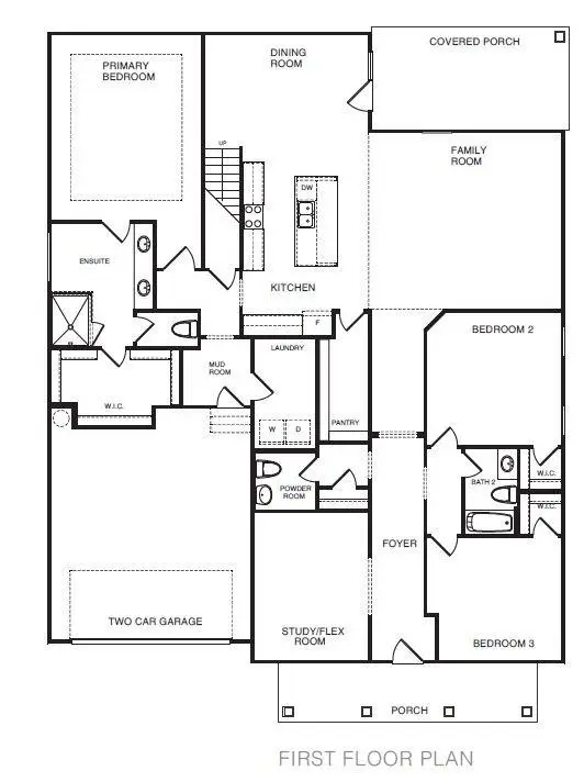
Discover unmatched value and lifestyle with Lot 147, featuring the spacious Ashland floor plan on a desirable basement homesite in a private cul-de-sac within the sought-after Heirloom by Empire Homes community in Cumming. This thoughtfully designed home offers approx. 3,600 sq ft of elevated living space, including a main-level owner’s suite, expansive open-concept living areas, and flexible upstairs bonus/bedroom options—ideal for multigenerational living or entertaining.
The Ashland blends timeless architecture with modern convenience: a large chef’s kitchen with island and walk-in pantry, generous covered outdoor living, and designer-curated finishes throughout. The basement provides abundant storage and future expansion potential.
Set in a resort-style community, Heirloom offers a lifestyle beyond compare with scenic walking trails, a clubhouse, resort-style pool, pickleball courts, and thoughtfully preserved green space—all just minutes from top-rated Forsyth County schools, dining, shopping, and GA-400.
Lot 147 is one of the most private and premium homesites available—don’t miss your chance to personalize this home and enjoy everything Heirloom has to offer at a price point that delivers exceptional value in today’s market! 1/2 off design up to 50K. closing cost incentives with preferred lenders....
Contact an agent
Home facts
- Year built:2025
- Listing ID #:7714833
- Updated:April 05, 2026 at 01:21 PM
Rooms and interior
- Bedrooms:4
- Total bathrooms:4
- Full bathrooms:3
- Half bathrooms:1
- Bathrooms Description:Separate Tub/Shower
- Kitchen Description:Cabinets Stain, Cabinets White, Dishwasher, Disposal, Eat-in Kitchen, Gas Cooktop, Kitchen Island, Microwave, Pantry Walk-In, Range Hood, Solid Surface Counters, View to Family Room
- Bedroom Description:Master on Main, Oversized Master, Sitting Room
- Basement Description:Bath/Stubbed, Daylight, Exterior Entry, Full, Unfinished
- Living area:3,600 sq. ft.
Heating and cooling
- Cooling:Central Air, Zoned
- Heating:Natural Gas, Zoned
- Central air:Yes
Structure and exterior
- Roof:Composition
- Year built:2025
- Building area:3,600 sq. ft.
- Lot area:0.38 Acres
- Lot Features:Cul-De-Sac, Front Yard, Landscaped, Mountain Frontage
- Architectural Style:Cottage, Farmhouse, Ranch
- Construction Materials:Brick 3 Sides, Concrete
- Exterior Features:Covered, Deck, Front Porch, Private Yard
- Levels:3+ Story
Schools
- High school:Forsyth Central
- Middle school:Otwell
- Elementary school:Sawnee
Utilities
- Water:Public, Water Available
- Sewer:Public Sewer, Sewer Available
Finances and disclosures
- Price:$927,667
- Price per sq. ft.:$257.69
Features and amenities
- Appliances:Irrigation Equipment
- Laundry features:Laundry Room, Main Level
- Amenities:Entrance Foyer, High Ceilings 9 ft Main, High Ceilings 9 ft Upper, Low Flow Plumbing Fixtures, Tray Ceiling(s), Walk-In Closet(s)
Parking
- Parking description:Attached, Garage, Garage Door Opener, Garage Faces Front
- Garage spaces:2
New listings near 5360 Memento Trace
- Coming Soon
$872,000Coming Soon6 beds 5 baths4610 Hereford Court, Cumming, GA 30041
MLS# 7723043Listed by: S4 LABS MORTGAGE & REAL ESTATE, LLC - New
$729,900Active4 beds 4 baths3,100 sq. ft.3875 Montvale Crossing, Cumming, GA 30041
MLS# 7747530Listed by: VIRTUAL PROPERTIES REALTY.NET, LLC. - New
$320,000Active2 beds 3 baths1,639 sq. ft.257 Azalea Circle, Cumming, GA 30040
MLS# 7747537Listed by: KELLER WILLIAMS REALTY ATLANTA PARTNERS - New
$935,000Active6 beds 5 baths2,963 sq. ft.4425 Sugar Creek Lane, Cumming, GA 30041
MLS# 7747474Listed by: MOSS REAL ESTATE, INC. - Coming Soon
$849,000Coming Soon5 beds 4 baths2540 Maple Ridge Lane, Cumming, GA 30041
MLS# 10725537Listed by: Sekhars Realty, Inc. - Coming Soon
$650,000Coming Soon4 beds 3 baths5840 Palmtree Pass, Cumming, GA 30040
MLS# 10725541Listed by: Sekhars Realty, Inc. - New
$425,000Active3 beds 3 baths2,755 sq. ft.2740 Stratfield Way, Cumming, GA 30041
MLS# 10725515Listed by: Realty Professionals - New
$589,000Active5 beds 5 baths2,970 sq. ft.5860 Stargazer Way, Cumming, GA 30028
MLS# 7747427Listed by: REALTY PROFESSIONALS, INC. - New
$180,000Active2 Acres8935 Saddle Trail, Cumming, GA 30040
MLS# 10725398Listed by: Keller Williams Community Partners - Coming Soon
$585,000Coming Soon3 beds 3 baths1650 Archstone Drive, Cumming, GA 30041
MLS# 7731243Listed by: KELLER WILLIAMS NORTH ATLANTA